← Cannock Chase District Council
CH/25/0090
Cannock Chase District Council
Status
Decision made
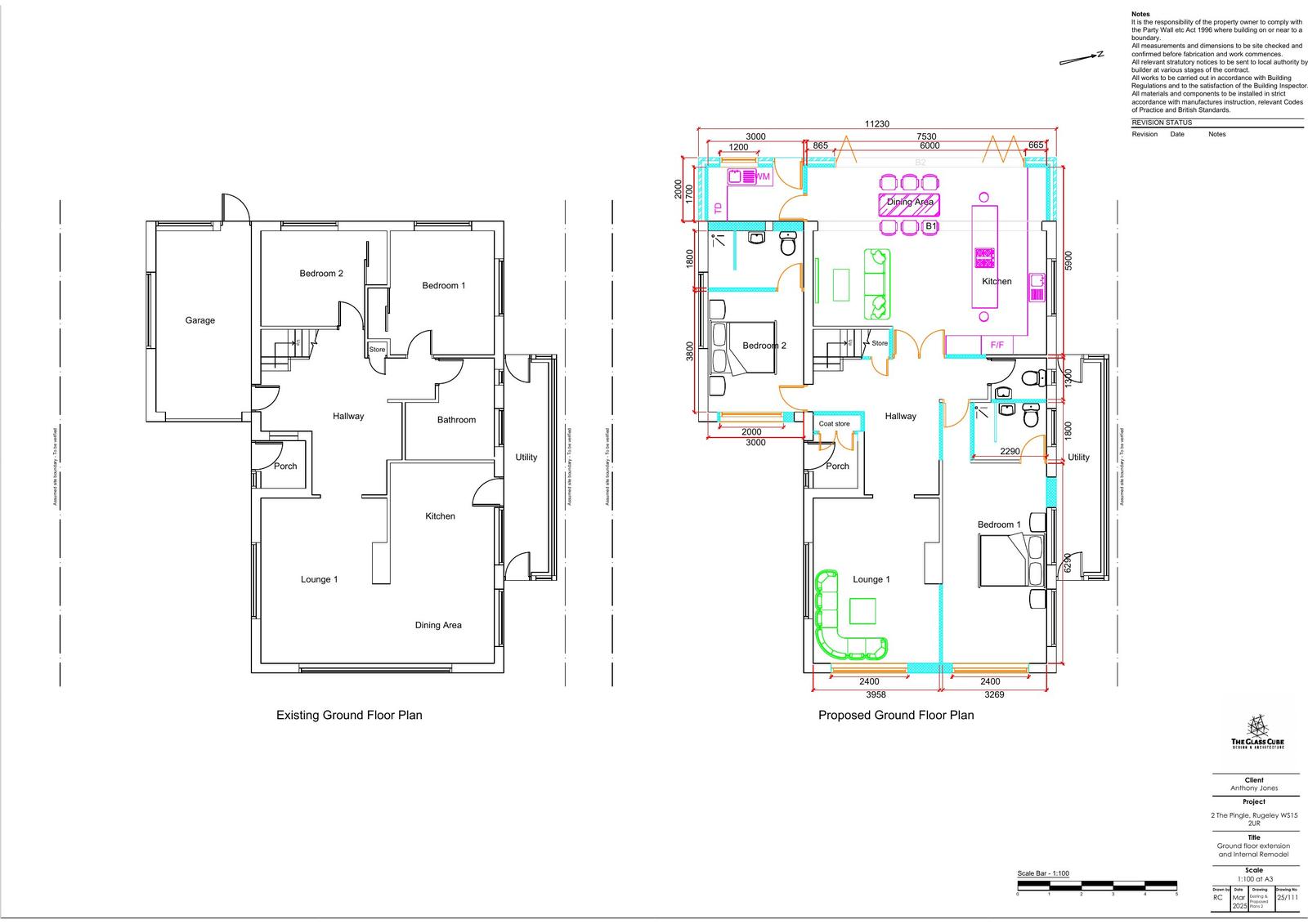
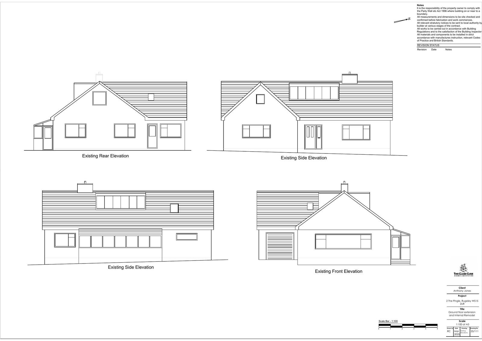
House extension
Received
25 Mar 2025
New homes
0
Full proposal
Erection of a single storey rear extension and internal alterations
Documents
Have your say
Your comment matters. Councils must consider every representation that raises material planning considerations.