← Cannock Chase District Council
CH/25/0101
Cannock Chase District Council
Status
Decision made
Change of use
Received
28 Mar 2025
New homes
0
Summary
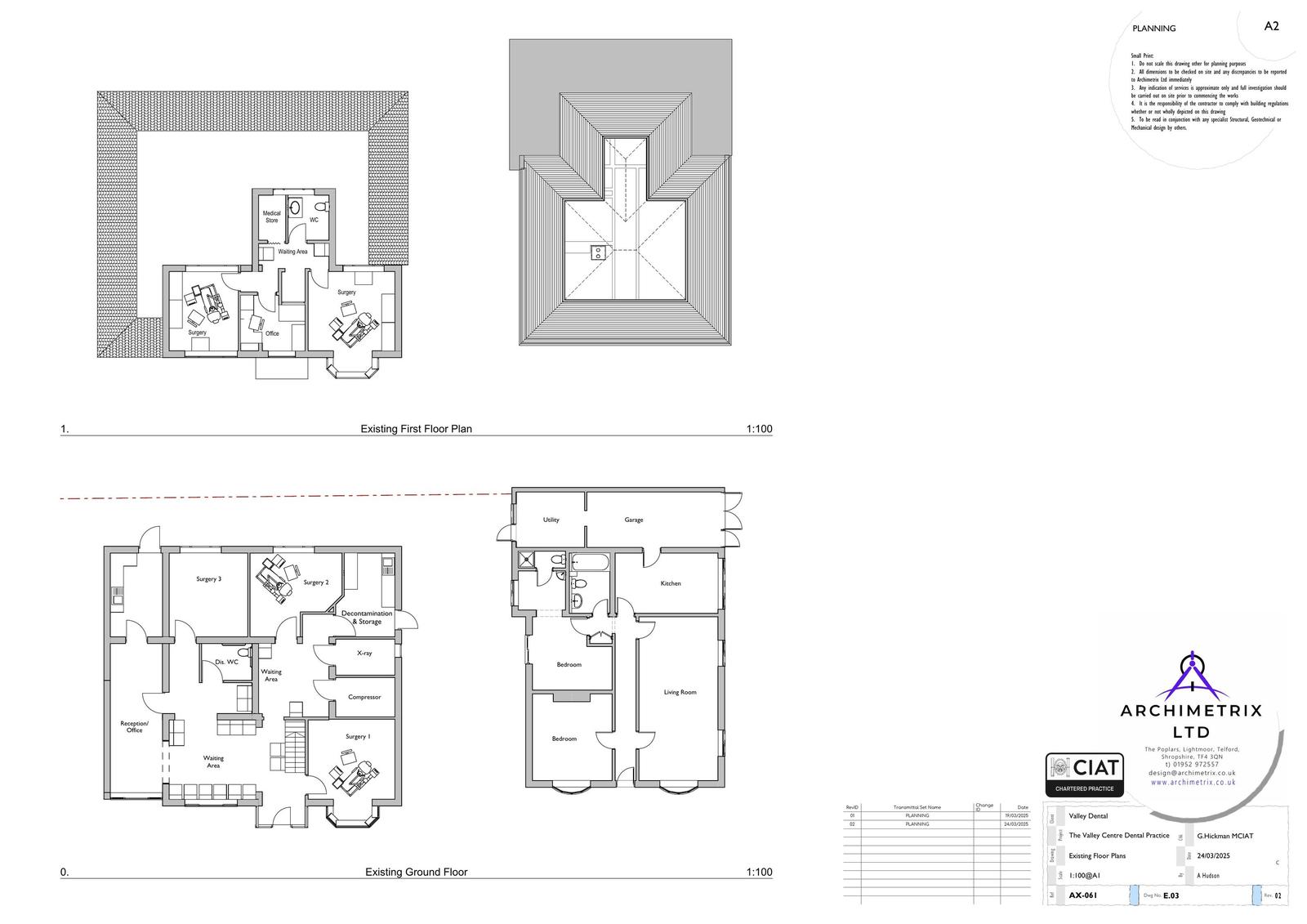
Change of use of bungalow to additional dental surgery with single-storey link extension.
Full proposal
Change of use of existing residential bungalow to form additional dental surgery including erection of a single storey link extension
Documents
Have your say
Your comment matters. Councils must consider every representation that raises material planning considerations.