← Cannock Chase District Council
CH/25/0102
Cannock Chase District Council
Status
Decision made
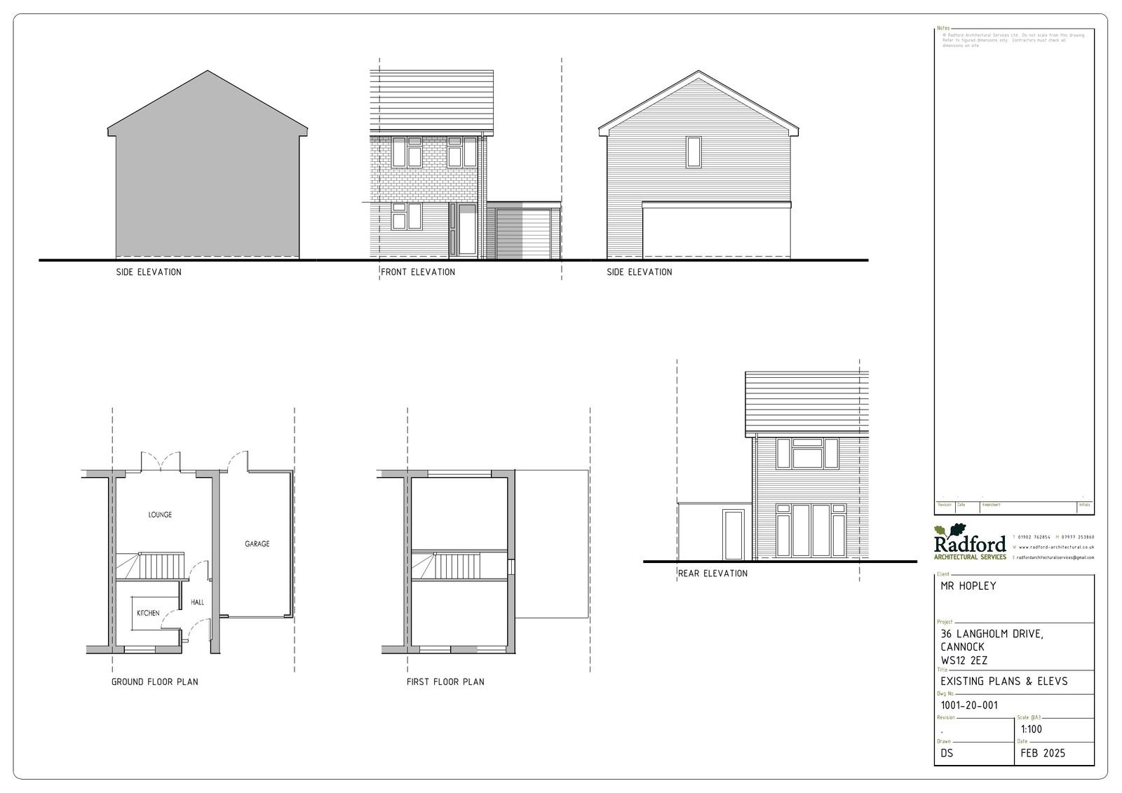
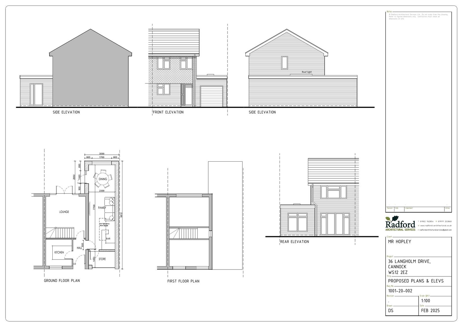
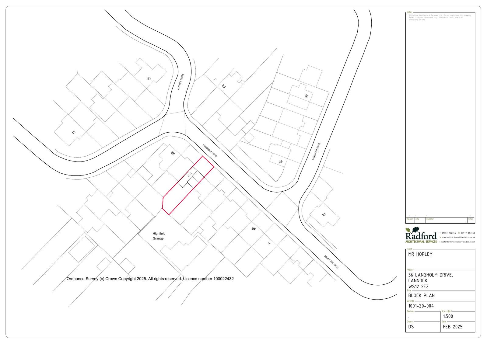
House extension
Received
31 Mar 2025
New homes
0
Full proposal
Erection of a single storey side extension following demolition of existing garage
Documents
Have your say
Your comment matters. Councils must consider every representation that raises material planning considerations.