← Cannock Chase District Council
CH/25/0113
Cannock Chase District Council
Status
Decision made
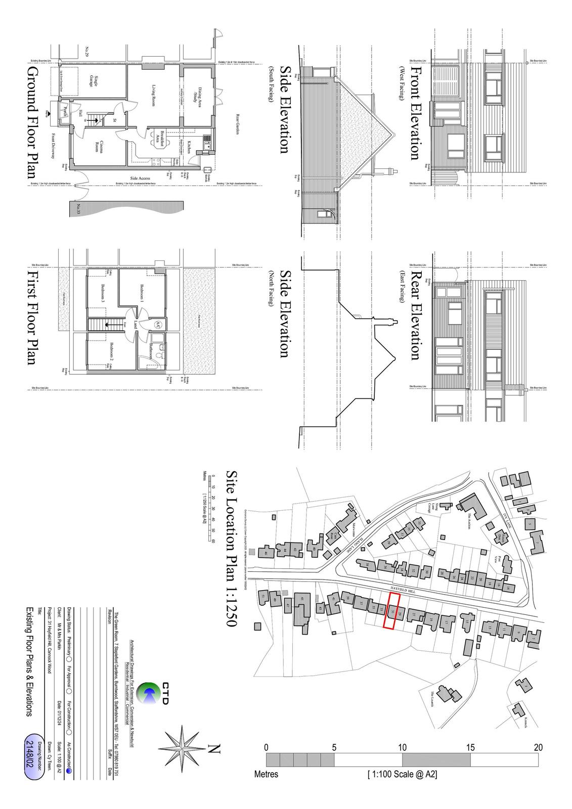
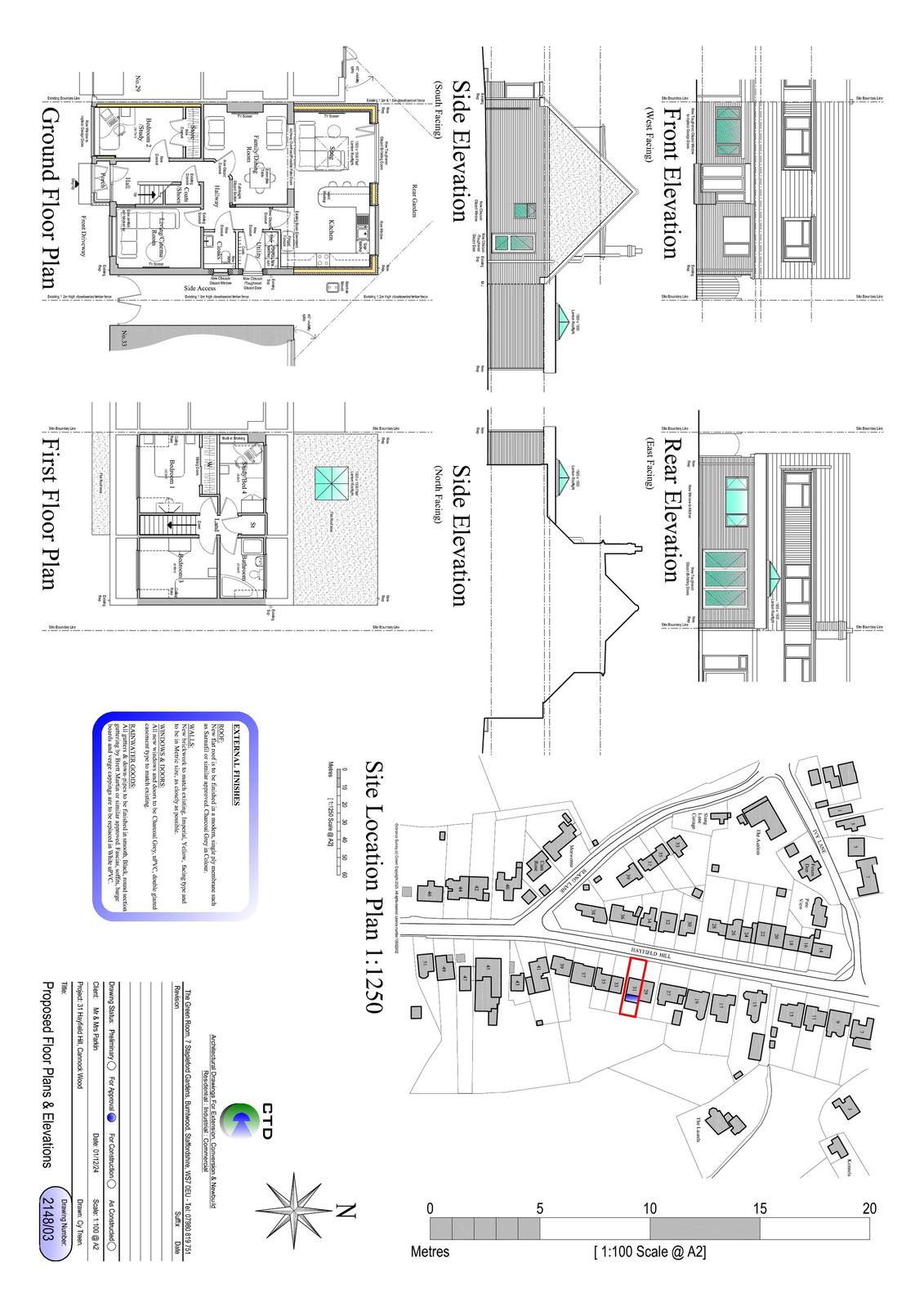
House extension
Received
08 Apr 2025
New homes
0
Full proposal
Erection of a single storey rear extension and conversion of existing garage into habitable room
Documents
Have your say
Your comment matters. Councils must consider every representation that raises material planning considerations.