← Cannock Chase District Council
CH/25/0116
Cannock Chase District Council
Status
Decision made
New housing
Received
07 Apr 2025
New homes
1
Summary
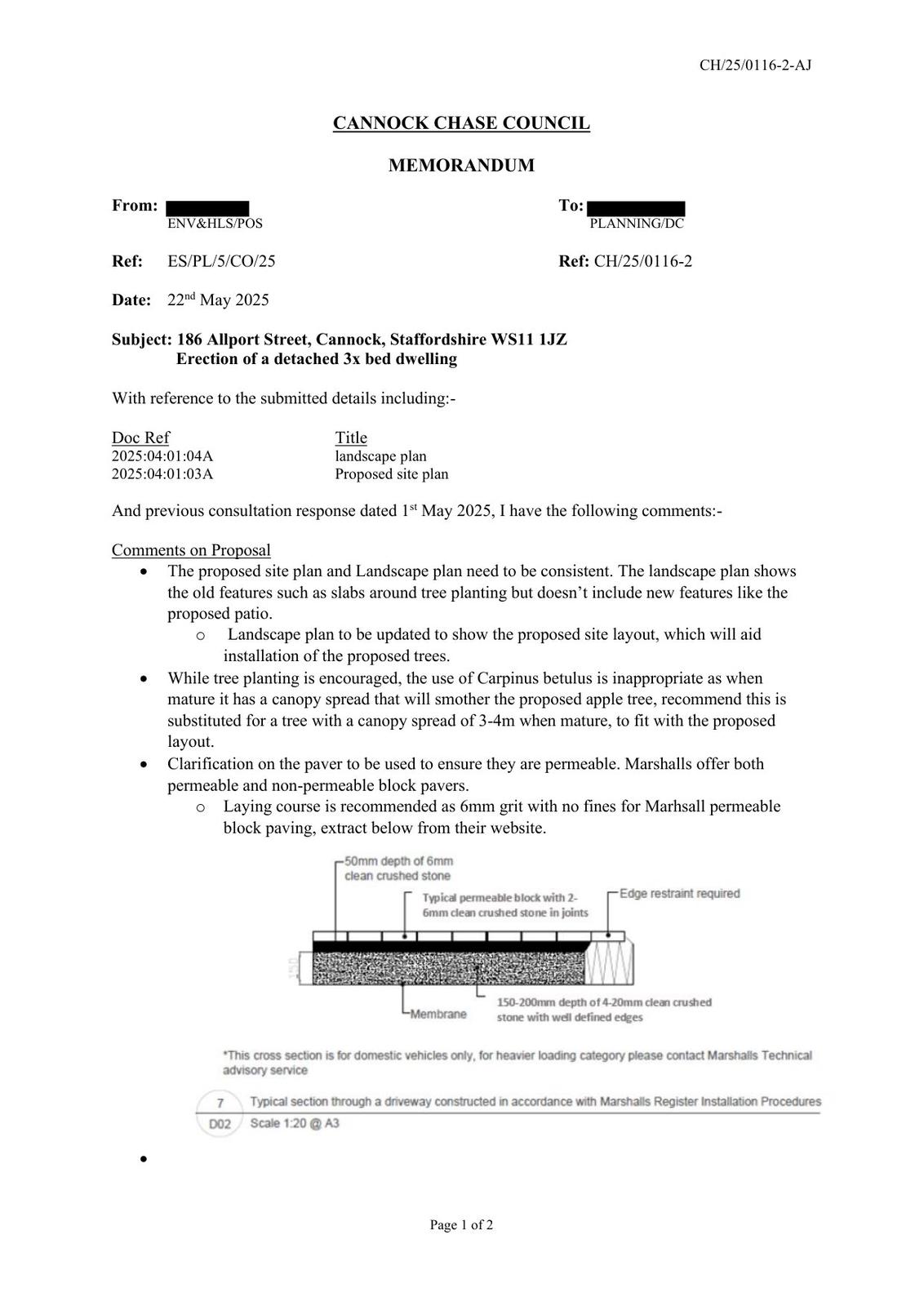
Erection of a detached three-bedroom dwelling.
Full proposal
Erection of a detached 3x bed dwelling
Documents
Have your say
Your comment matters. Councils must consider every representation that raises material planning considerations.