← Cannock Chase District Council
CH/25/0118
Cannock Chase District Council
Status
Decision made
Change of use
Received
09 Apr 2025
New homes
1
Full proposal
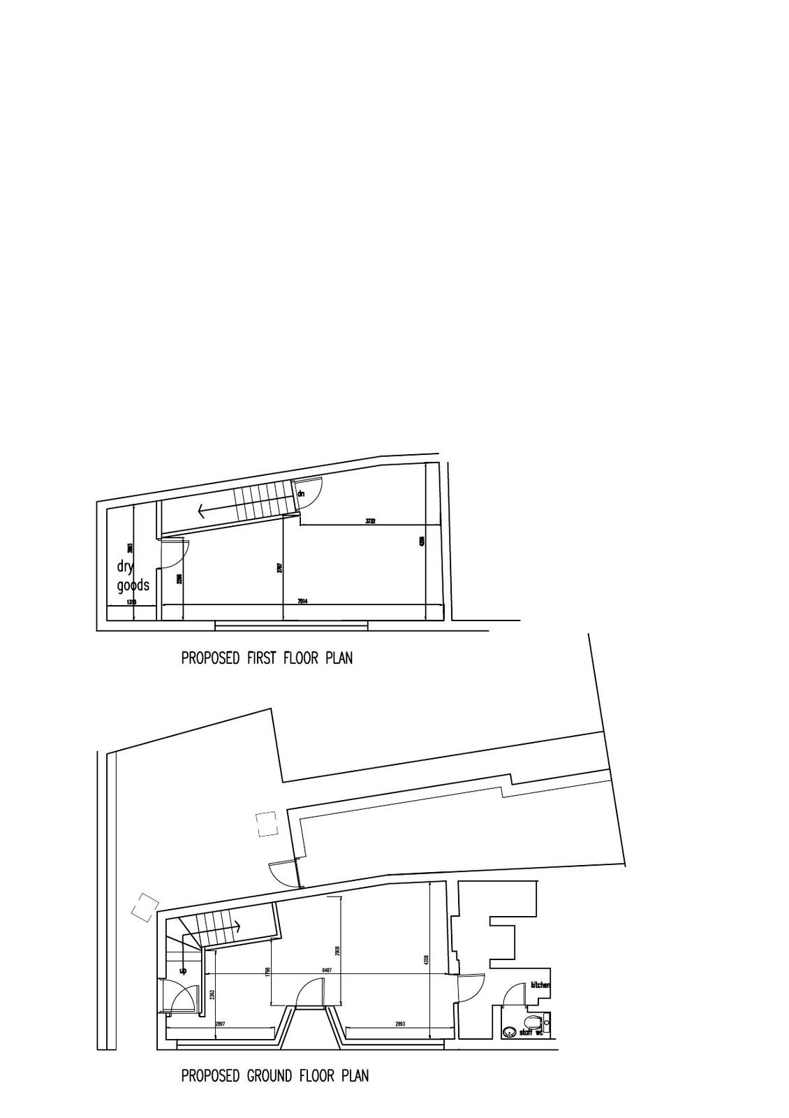
Prior approval for the change of use of a commercial space at first floor level of apartment and conversion of loft space to self-contained flat
Documents
Have your say
Your comment matters. Councils must consider every representation that raises material planning considerations.