← Cannock Chase District Council
CH/26/044
Cannock Chase District Council
Status
Registered application
House extension
Received
06 Feb 2026
New homes
0
Full proposal
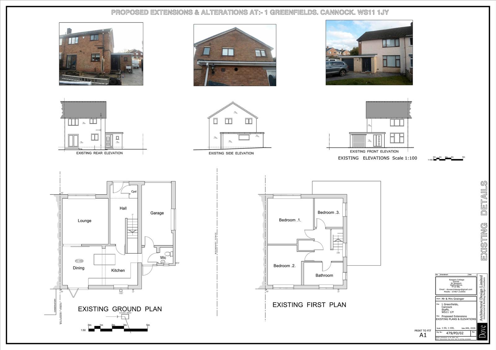
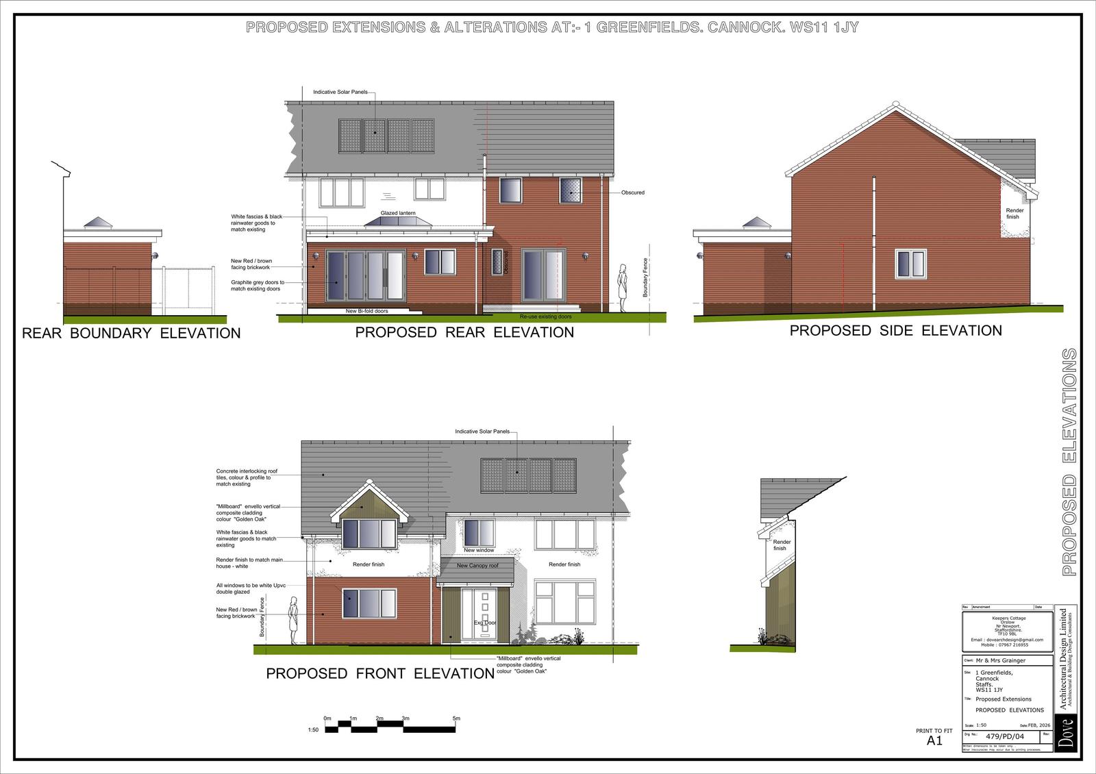
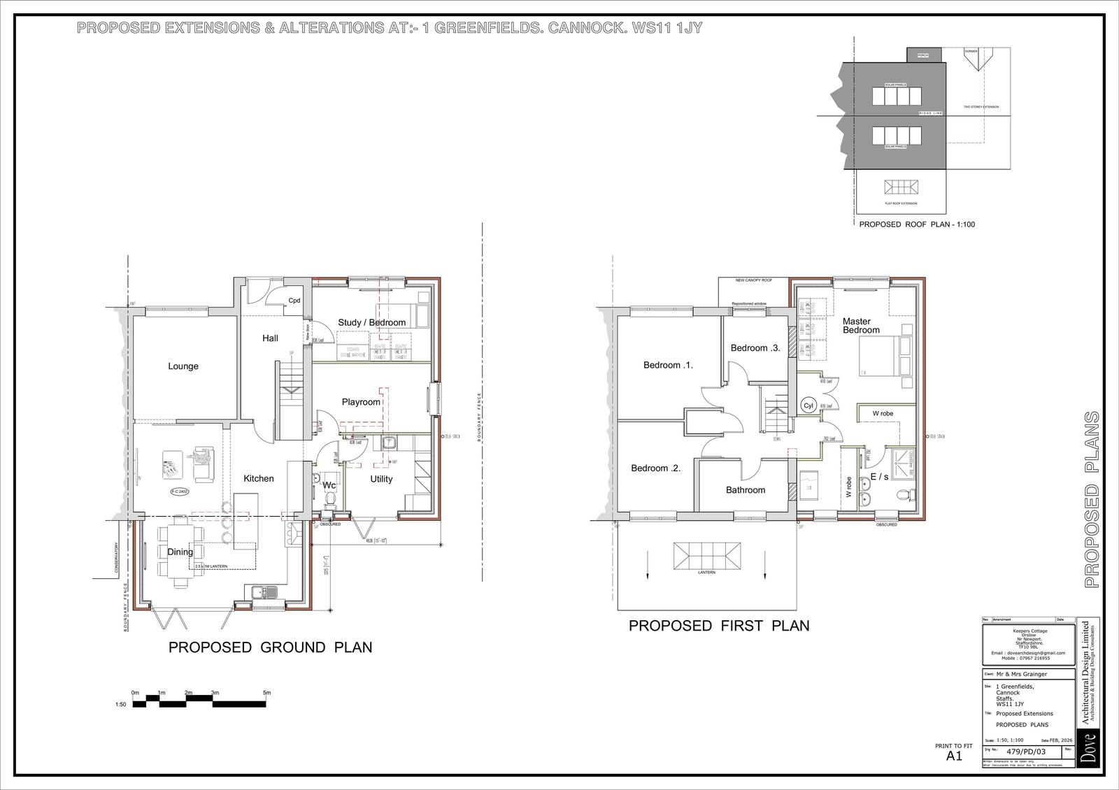
Two storey side extension following demolition of existing garage, single storey rear extension, alterations to porch roof and installation of solar panels to roof
Documents
Have your say
Your comment matters. Councils must consider every representation that raises material planning considerations.