← Cannock Chase District Council
CH/26/055
Cannock Chase District Council
Status
Registered application
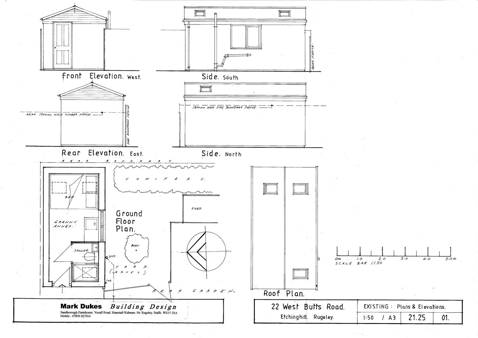
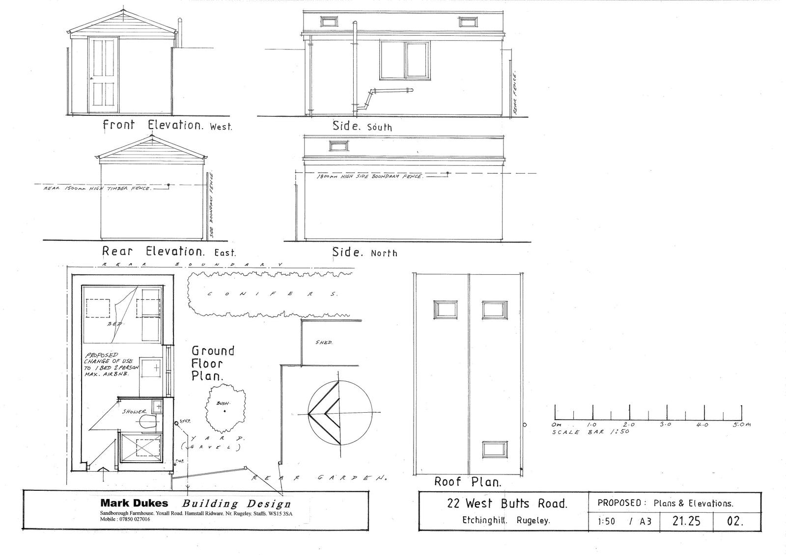
Change of use
Received
Last month
New homes
0
Full proposal
Proposed change of use of residential annex to holiday accommodation
Documents
Have your say
Your comment matters. Councils must consider every representation that raises material planning considerations.