← Canterbury City Council

Status

Awaiting decision Change of use
Received
Not recorded
New homes
1

Full proposal

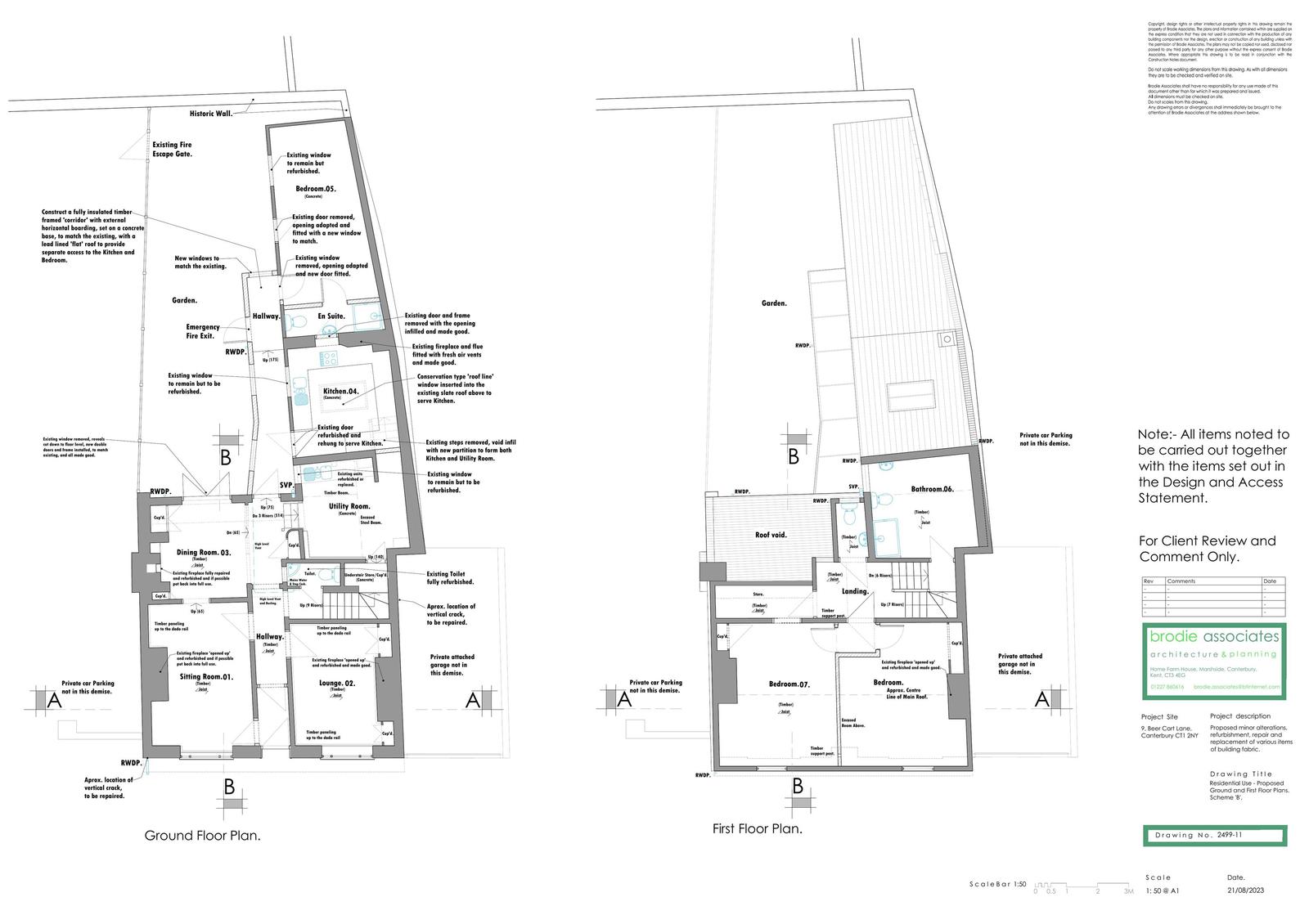
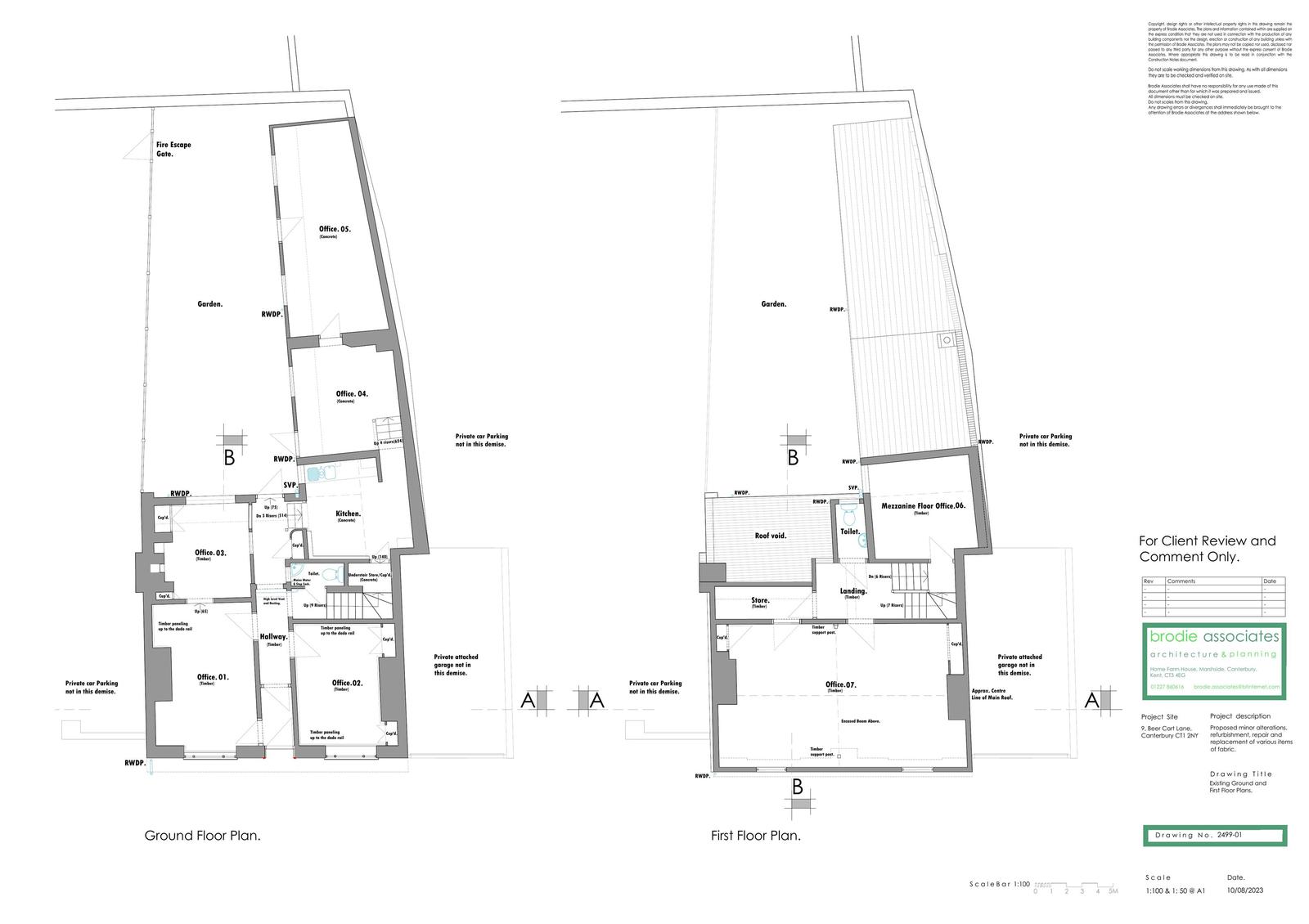
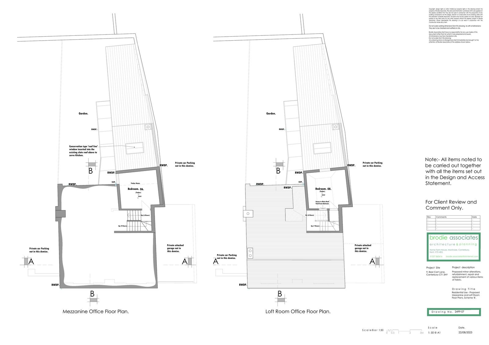
Change of use from offices to one dwelling together with weatherboarding to side elevations together with 2 rooflights.

Have your say

Your comment matters. Councils must consider every representation that raises material planning considerations.

Write a comment