← Canterbury City Council

Status

Awaiting decision Change of use
Received
Not recorded
New homes
1

Full proposal

Change of use of barn to residential dwelling.

Documents

APPLICATION FORM - WITHOUT PERSONAL DATA
Application Form
Not yet archived · Original link
BIODIVERSITY NET GAIN REPORT
Associated Document
Not yet archived · Original link
BIODIVERSITY NET GAIN REPORT
Associated Document
Not yet archived · Original link
EXISTING EAST AND NORTH ELEVATIONS
Drawing
Not yet archived · Original link
EXISTING FLOOR PLANS.
Drawing
Not yet archived · Original link
Drawing
Archived · Original link
EXISTING WEST AND SOUTH ELEVATIONS
Drawing
Not yet archived · Original link
FORM 1
CIL
Not yet archived · Original link
HABITAT REGULATION ASSESSMENT
Associated Document
Not yet archived · Original link
HIGHWAYS AND TRANSPORTATION
Consultee Comment
Not yet archived · Original link
KCC ECOLOGY
Consultee Comment
Not yet archived · Original link
MARKETING EVIDENCE
Associated Document
Not yet archived · Original link
MARKETING INFORMATION
Associated Document
Not yet archived · Original link
MISS JACKIE LOMAS
Public Comment
Not yet archived · Original link
MR NIGEL HARGREAVES
Public Comment
Not yet archived · Original link
NATURAL ENGLAND
Consultee Comment
Not yet archived · Original link
NATURAL ENGLAND
Consultee Comment
Not yet archived · Original link
NATURAL ENGLAND
Consultee Comment
Not yet archived · Original link
NATURAL ENGLAND ANNEX A
Consultee Comment
Not yet archived · Original link
Planning Statement
Planning Statement
Not yet archived · Original link
POTENTIAL BAT ROOST ASSESSMENT
Associated Document
Not yet archived · Original link
PRELIMINARY ECOLOGICAL APPRAISAL
Associated Document
Not yet archived · Original link
PROPOSED BAT ROOST ELEVATIONS
Associated Document
Not yet archived · Original link
PROPOSED BAT ROOST PLANS
Associated Document
Not yet archived · Original link
PROPOSED BLOCK PLAN
Superseded
Not yet archived · Original link
Revised Drawing
Archived · Original link
Drawing
Archived · Original link
PROPOSED NE AND SW ELEVATIONS
Drawing
Not yet archived · Original link
PROPOSED ROOF PLAN
Drawing
Not yet archived · Original link
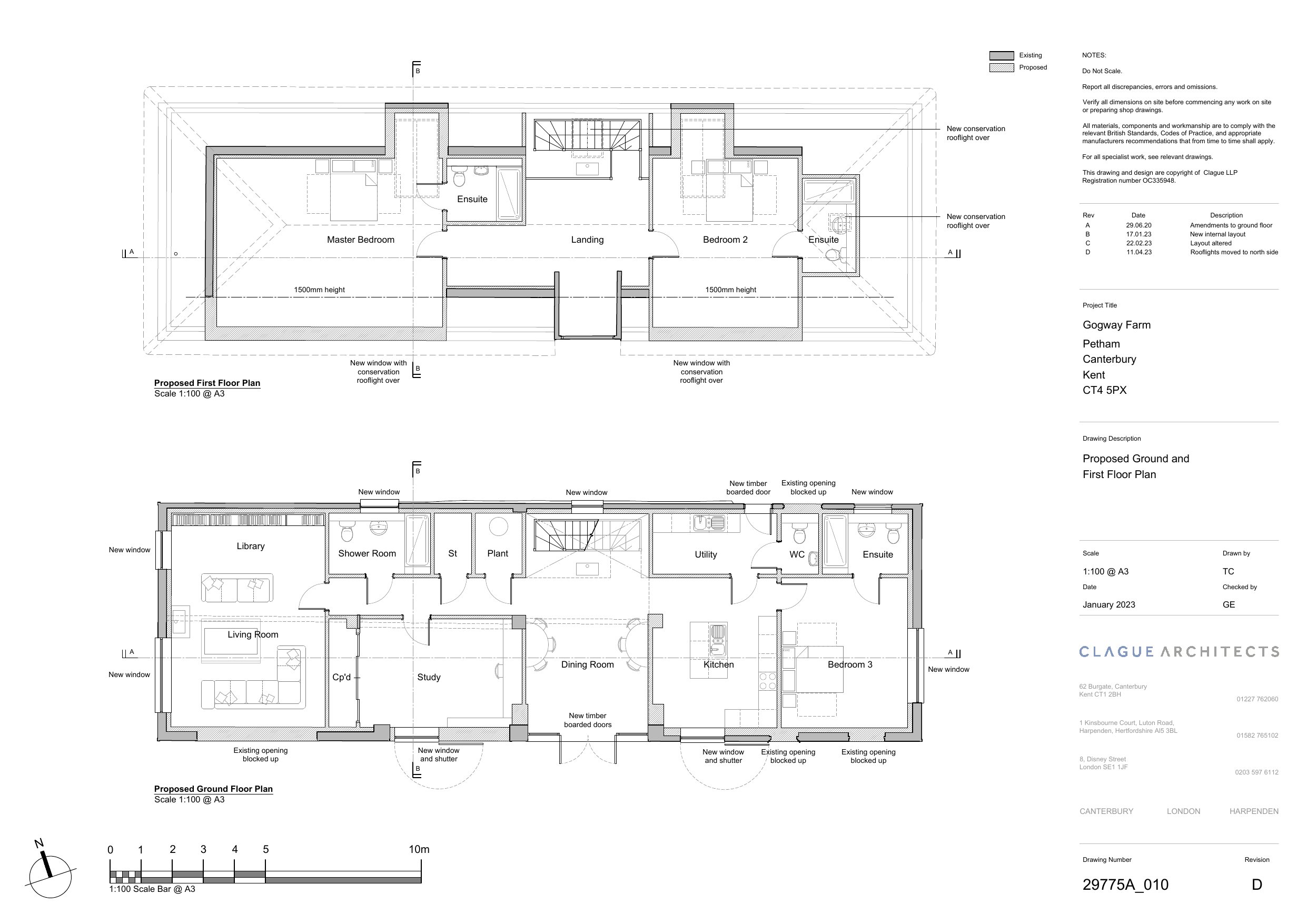
PROPOSED SECTIONS
Drawing
Not yet archived · Original link
PROPOSED WEST AND SOUTH ELEVATIONS
Drawing
Not yet archived · Original link
PROW
Consultee Comment
Not yet archived · Original link
PROW
Consultee Comment
Not yet archived · Original link
PROW MAP
Consultee Comment
Not yet archived · Original link
PROW MAP
Consultee Comment
Not yet archived · Original link
REVISED NUTRIENT NEUTRALITY ASSESSMENT AND MITIGATION STRATEGY
Associated Document
Not yet archived · Original link
Revised Drawing
Archived · Original link
SOUTHERN WATER
Consultee Comment
Not yet archived · Original link
SOUTHERN WATER
Consultee Comment
Not yet archived · Original link
SOUTHERN WATER MAPS
Consultee Comment
Not yet archived · Original link

Have your say

Your comment matters. Councils must consider every representation that raises material planning considerations.

Write a comment