← Canterbury City Council

Status

Awaiting decision Change of use
Received
Not recorded
New homes
1

Full proposal

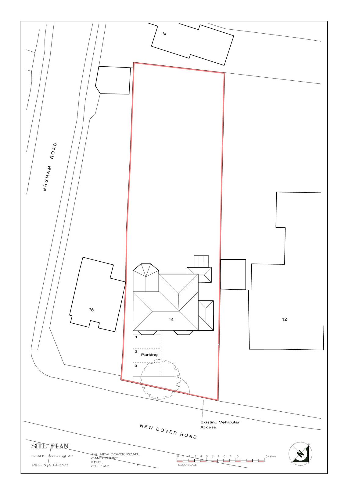
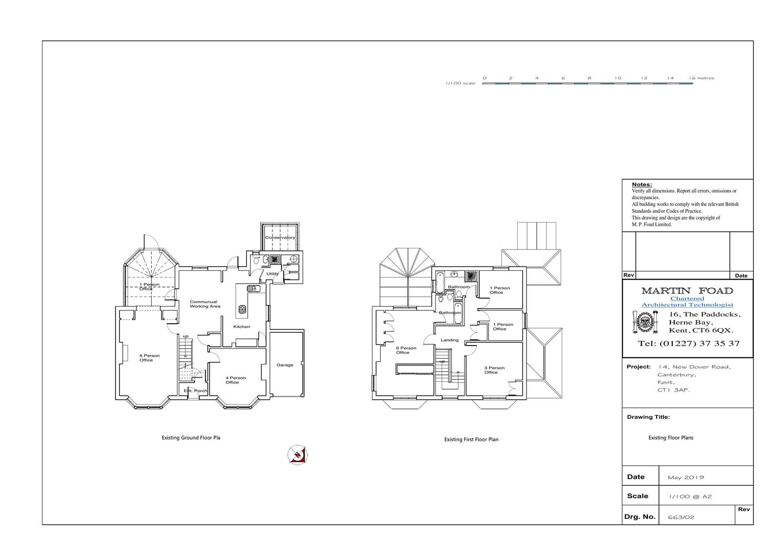
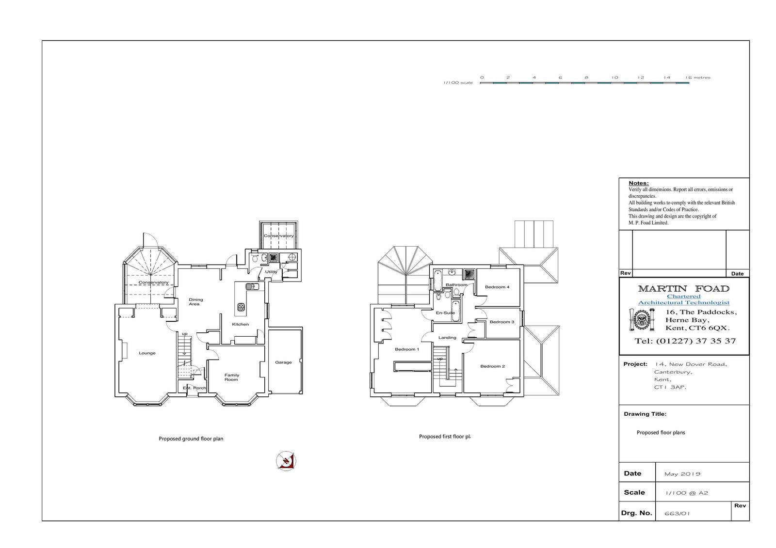
Prior approval for a change of use from office use to residential dwelling.

Documents

ENVIRONMENTAL HEALTH
Consultee Comment
Not yet archived · Original link
Drawing
Archived · Original link
Drawing
Archived · Original link
HSE
Consultee Comment
Archived · Original link
Consultee Comment
Archived · Original link
Associated Document
Archived · Original link
Associated Document
Archived · Original link
OS Extract
Archived · Original link

Have your say

Your comment matters. Councils must consider every representation that raises material planning considerations.

Write a comment