← Canterbury City Council

Status

Awaiting decision House extension
Received
Not recorded
New homes
0

Full proposal

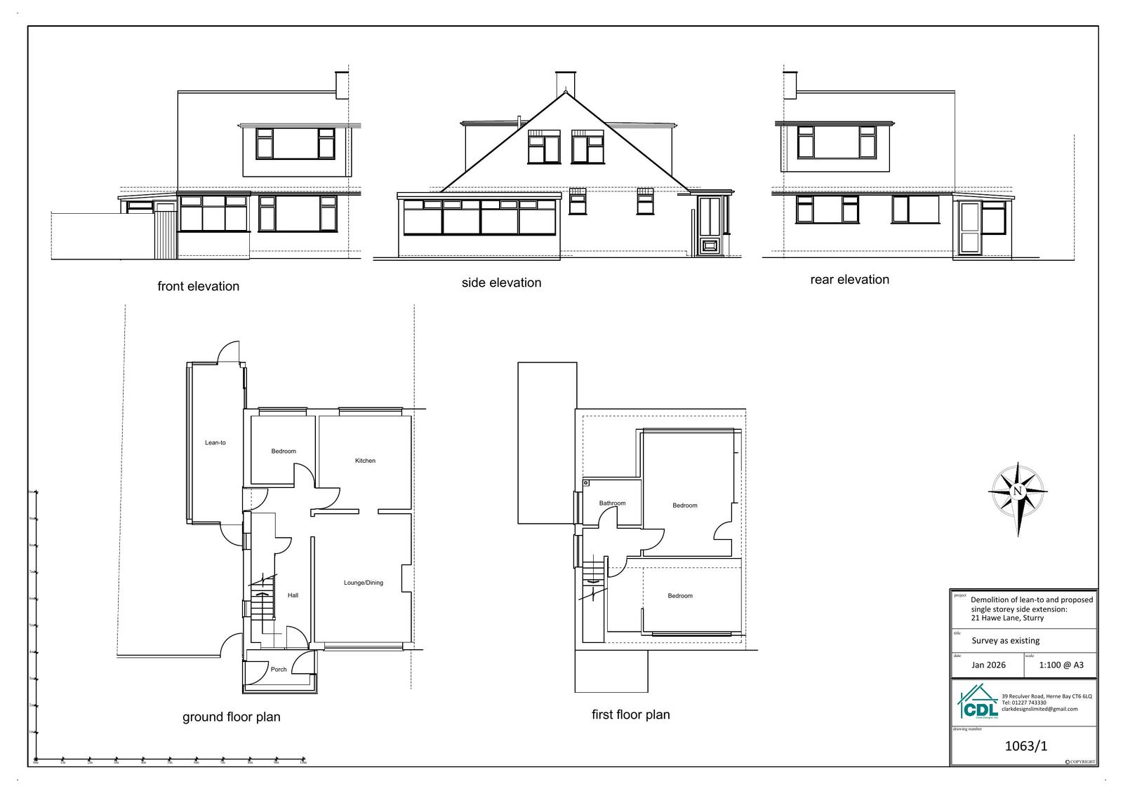
Single-storey side extension following the demolition of existing side lean-to.

Have your say

Your comment matters. Councils must consider every representation that raises material planning considerations.

Write a comment