← Canterbury City Council

Status

Awaiting decision New housing
Received
Not recorded
New homes
1

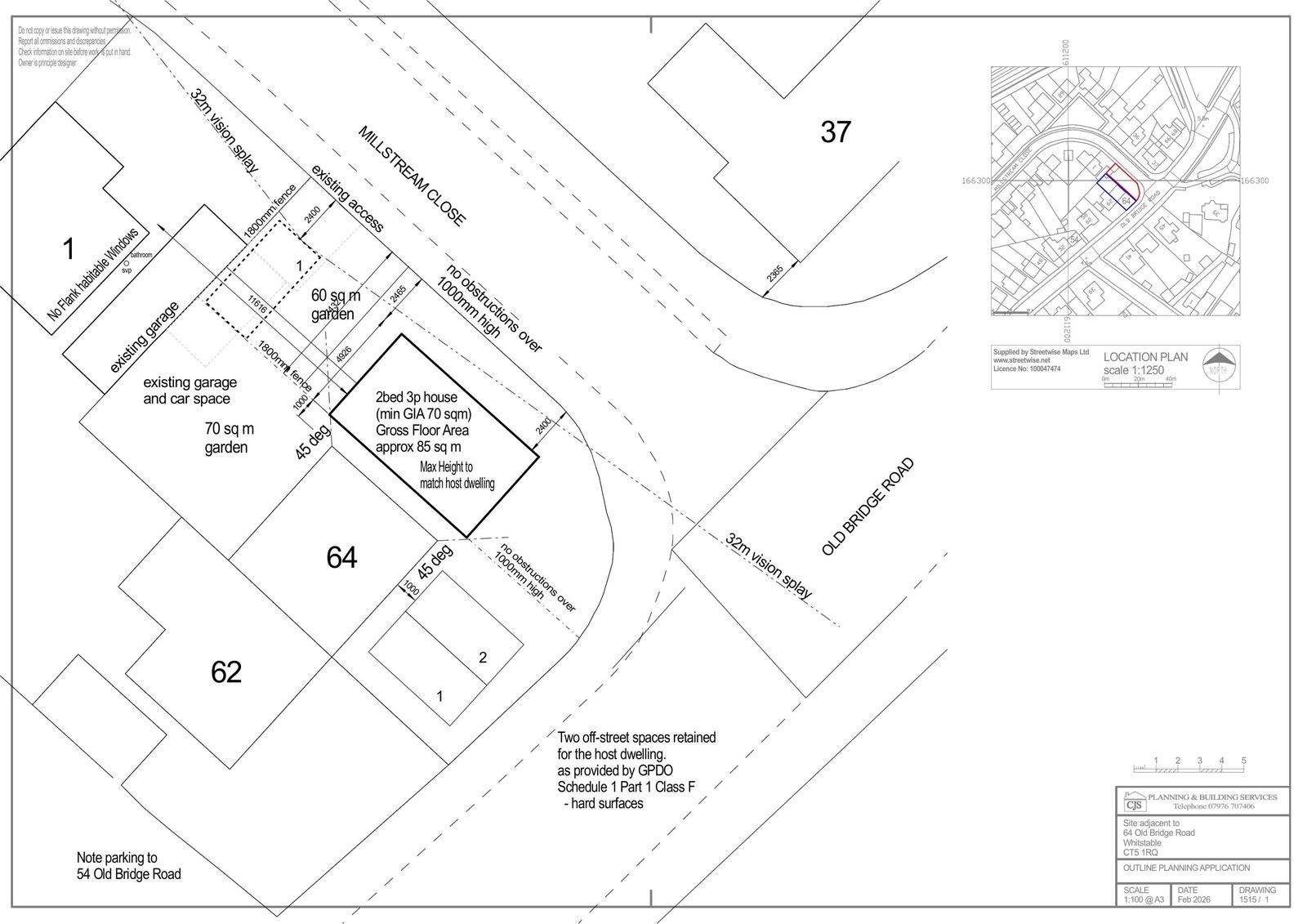
Full proposal

Outline Application with all matters reserved except access for 1 dwelling.

Documents

CIL
Archived · Original link
Associated Document
Archived · Original link
Consultee Comment
Archived · Original link
Consultee Comment
Archived · Original link
Associated Document
Archived · Original link
Public Comment
Archived · Original link
Public Comment
Archived · Original link
Public Comment
Archived · Original link
Planning Statement
Archived · Original link
OS Extract
Archived · Original link

Have your say

Your comment matters. Councils must consider every representation that raises material planning considerations.

Write a comment