← Canterbury City Council

Status

Awaiting decision House extension
Received
Not recorded
New homes
0

Full proposal

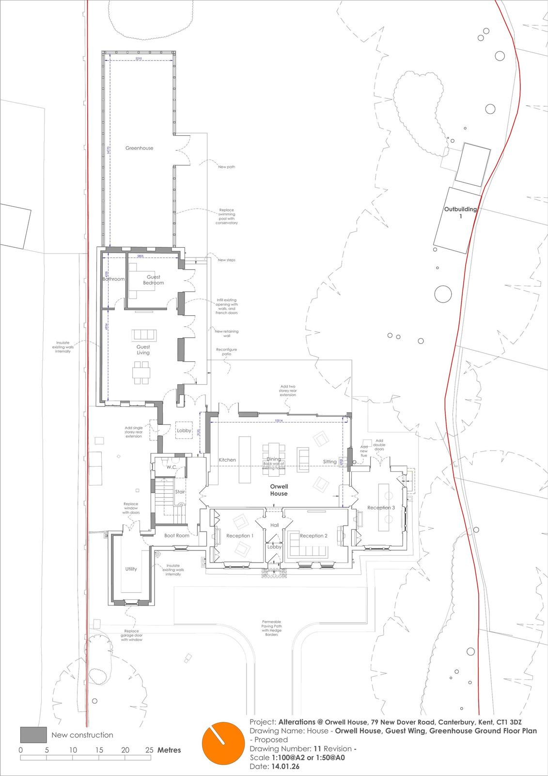
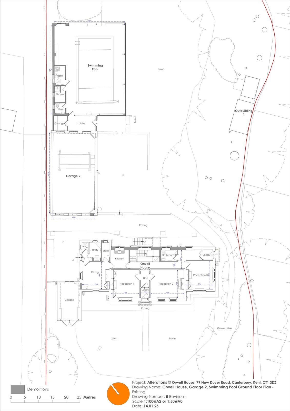
Two-storey and single-storey rear extension, single storey detached garage following the demolition of existing garage, conversion of the second garage to guest accommodation, replacement of the existing swimming pool with a greenhouse together with replacing the existing close boarded fence on front boundary, with a brick plinth and black metal railings above, brick piers and a black metal gate and reinstated brick wall with black metal railings above on the West side boundary and replacing the existing gravel drive with a new permeable paving drive.

Have your say

Your comment matters. Councils must consider every representation that raises material planning considerations.

Write a comment