← Canterbury City Council

Status

Awaiting decision House extension
Received
Not recorded
New homes
0

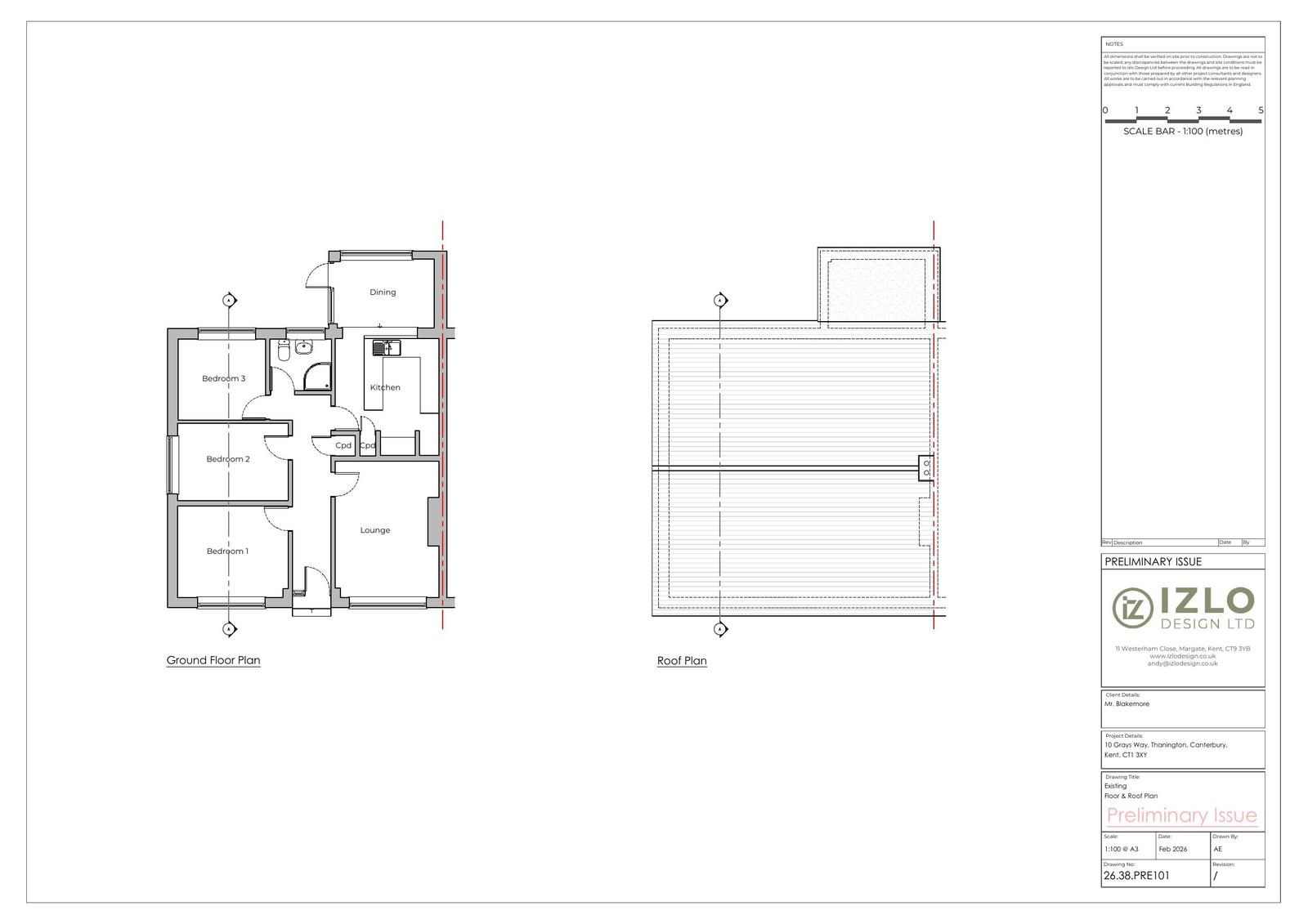
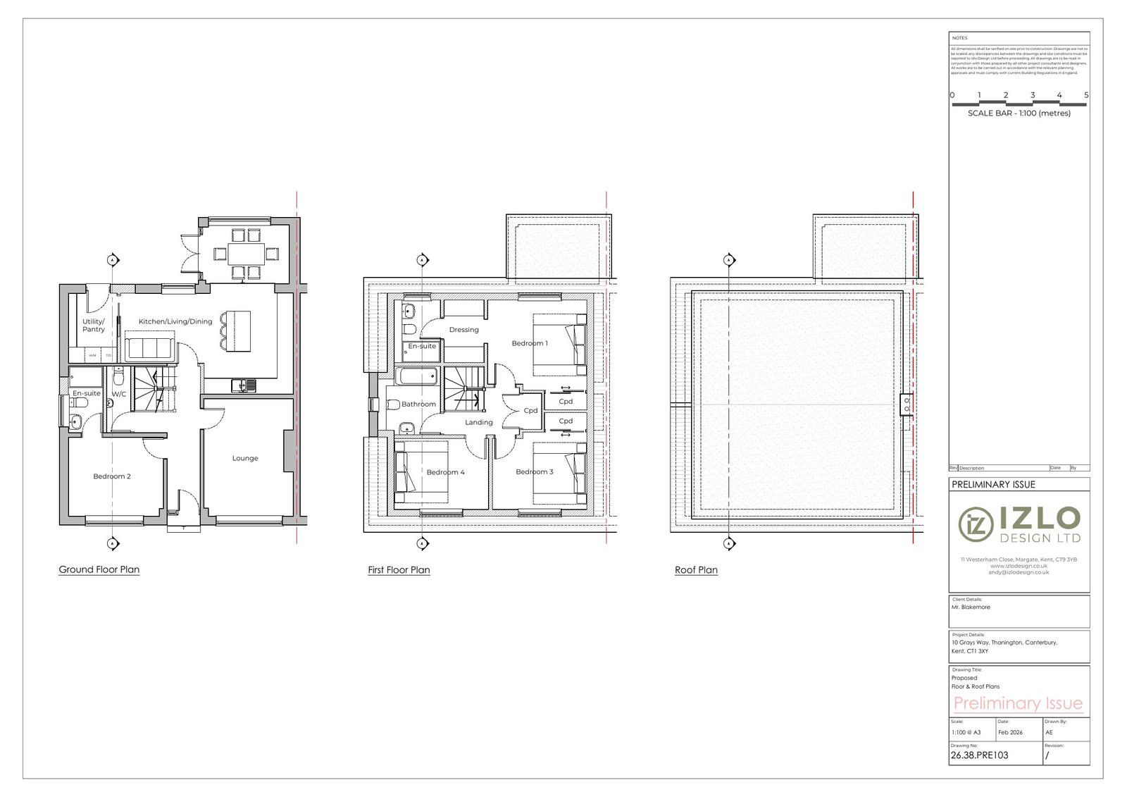
Full proposal

Erection of front and rear dormers together with the installation of window to first floor side elevation.

Have your say

Your comment matters. Councils must consider every representation that raises material planning considerations.

Write a comment