← Canterbury City Council

Status

Awaiting decision House extension
Received
Not recorded
New homes
0

Full proposal

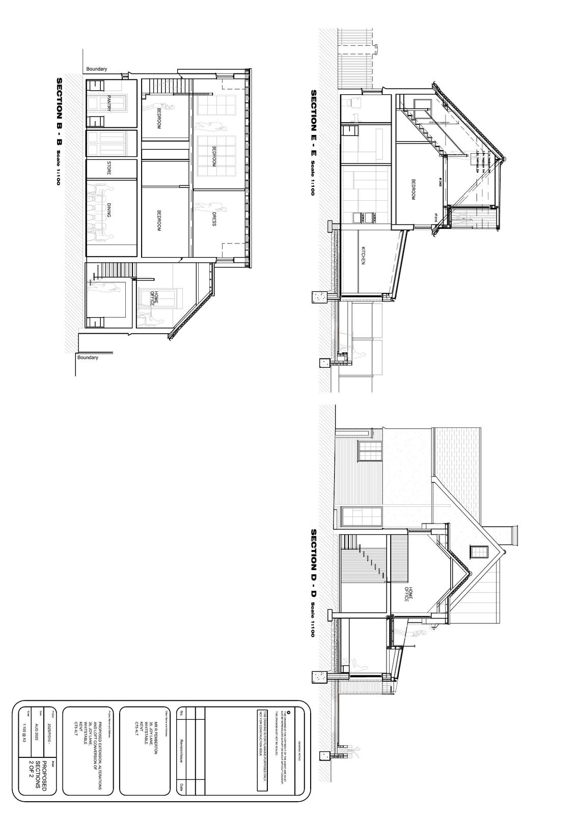
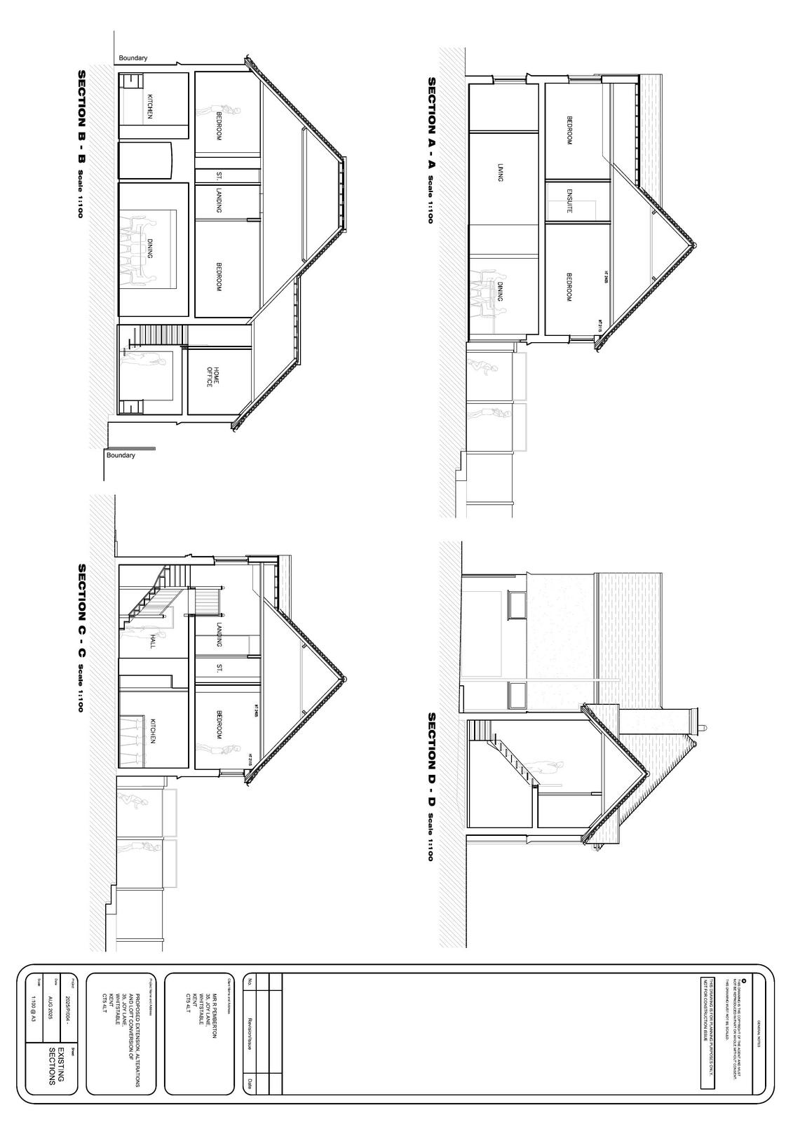
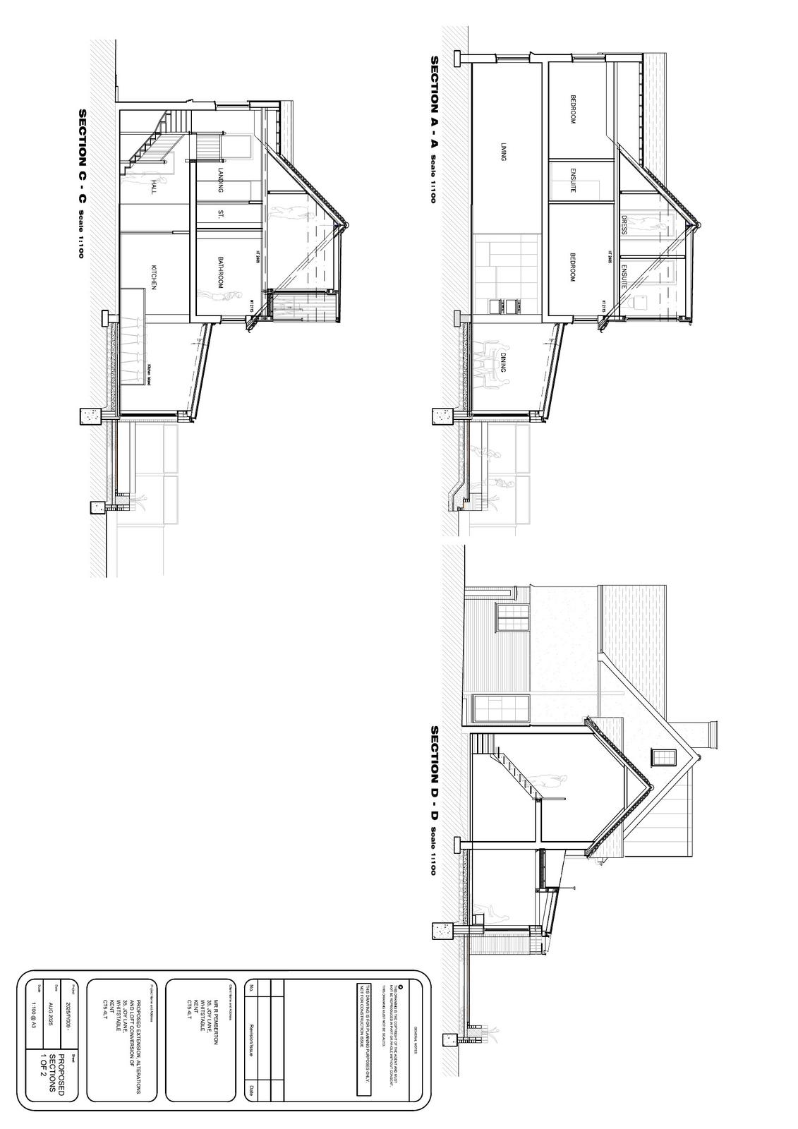
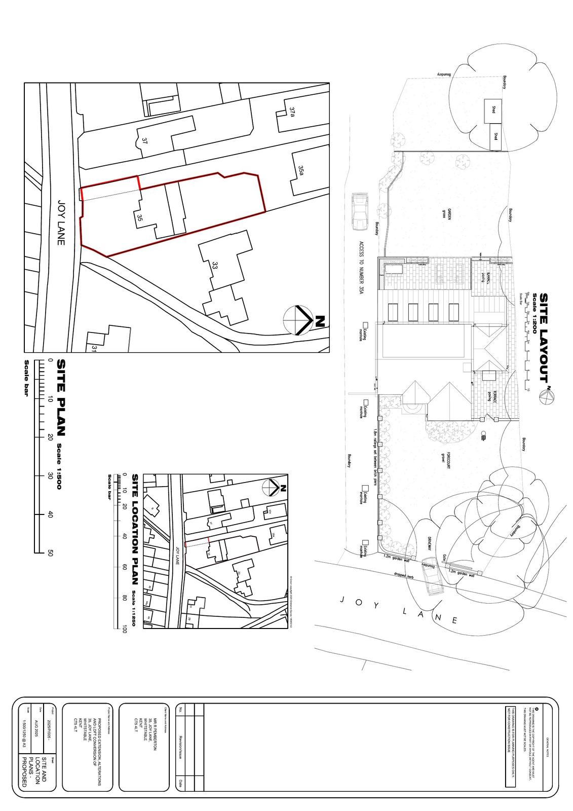
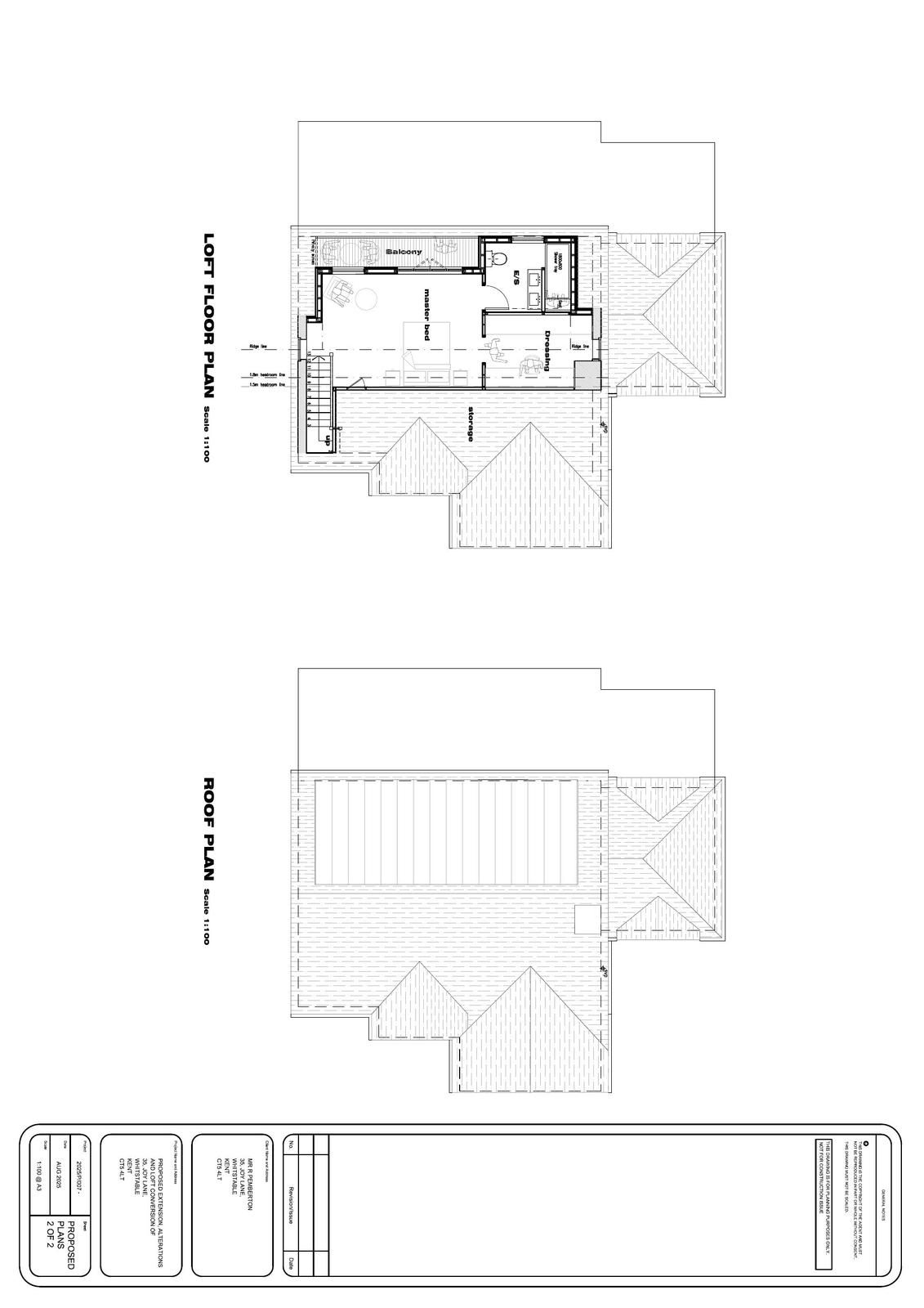
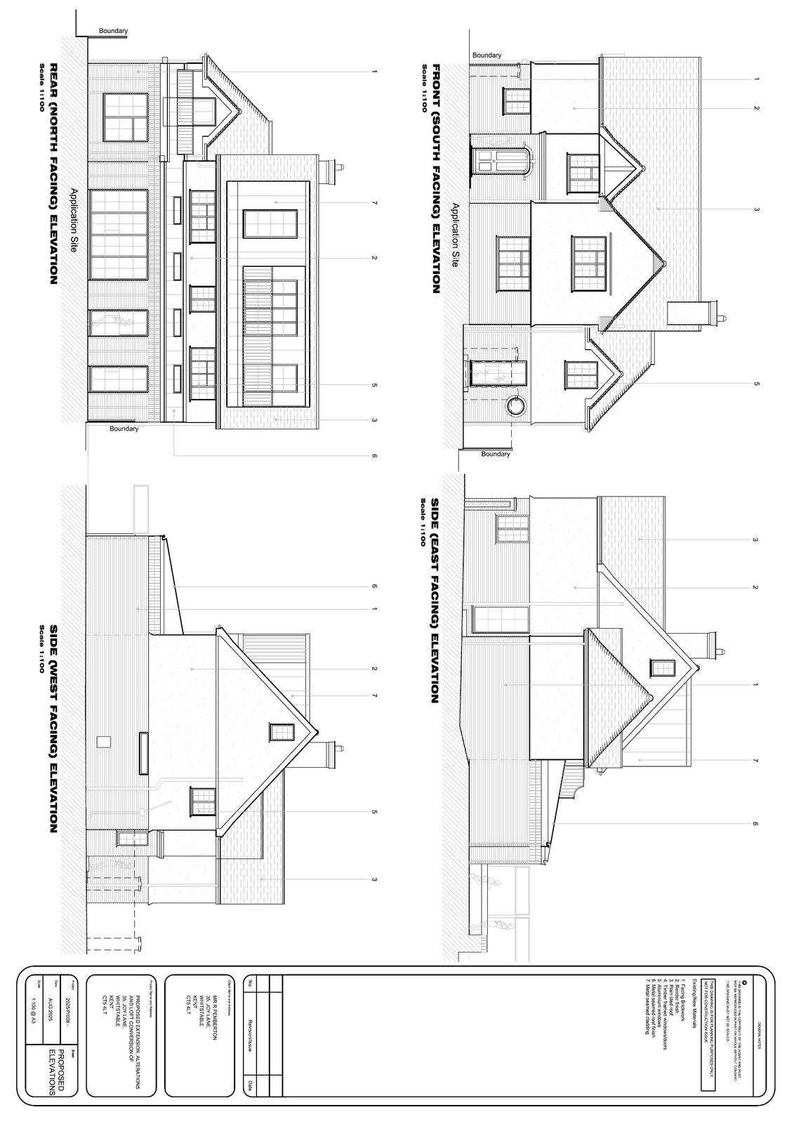
Single-storey rear extension, hip to gable roof extension, rear dormer with inset balcony together with gated and brick wall entrance following removal of fencing.

Documents

OS Extract
Archived · Original link
Design and Access
Archived · Original link
Drawing
Archived · Original link
Drawing
Archived · Original link
Drawing
Archived · Original link
CIL
Archived · Original link
Consultee Comment
Archived · Original link
Drawing
Archived · Original link
Drawing
Archived · Original link
Drawing
Archived · Original link
Drawing
Archived · Original link
Drawing
Archived · Original link
Drawing
Archived · Original link

Have your say

Your comment matters. Councils must consider every representation that raises material planning considerations.

Write a comment