← Canterbury City Council

Status

Awaiting decision New housing
Received
Not recorded
New homes
630

Full proposal

Application for the approval of appearance, landscaping, layout, scale for the outline application (with all matters reserved) for the development of up to 630 houses and associated community infrastructure comprising primary school, community building, public car park and associated amenity space, access, parking and landscaping; and detailed/full application for the construction of part of the Sturry Link Road and a local road from the Sturry Link Road to Shalloak Road pursuant to outline planning permission CA/20/02826/OUT for the erection of 89 dwellings within Phase 2 with associated public open space, cycle and vehicular parking and other associated infrastructure.

Documents

Associated Document
Archived · Original link
Associated Document
Archived · Original link
Associated Document
Archived · Original link
Associated Document
Archived · Original link
Associated Document
Archived · Original link
Associated Document
Archived · Original link
Associated Document
Archived · Original link
Associated Document
Archived · Original link
Associated Document
Archived · Original link
Associated Document
Archived · Original link
Associated Document
Archived · Original link
Associated Document
Archived · Original link
Associated Document
Archived · Original link
Associated Document
Archived · Original link
Associated Document
Archived · Original link
Design and Access
Archived · Original link
Associated Document
Archived · Original link
Associated Document
Archived · Original link
Associated Document
Archived · Original link
Associated Document
Archived · Original link
Associated Document
Archived · Original link
Associated Document
Archived · Original link
Associated Document
Archived · Original link
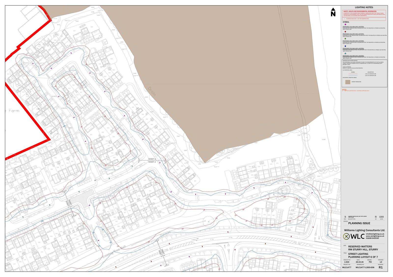
Drawing
Archived · Original link
Associated Document
Archived · Original link
Consultee Comment
Archived · Original link
Drawing
Archived · Original link
Associated Document
Archived · Original link
Associated Document
Archived · Original link
Associated Document
Archived · Original link
Associated Document
Archived · Original link
OS Extract
Archived · Original link
Drawing
Archived · Original link
Planning Statement
Archived · Original link
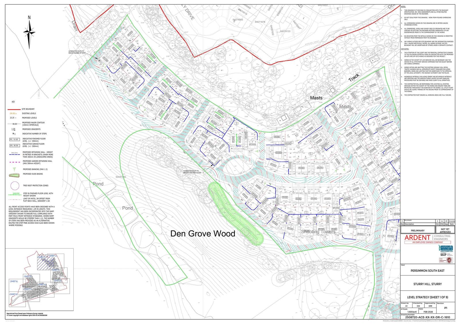
Drawing
Archived · Original link
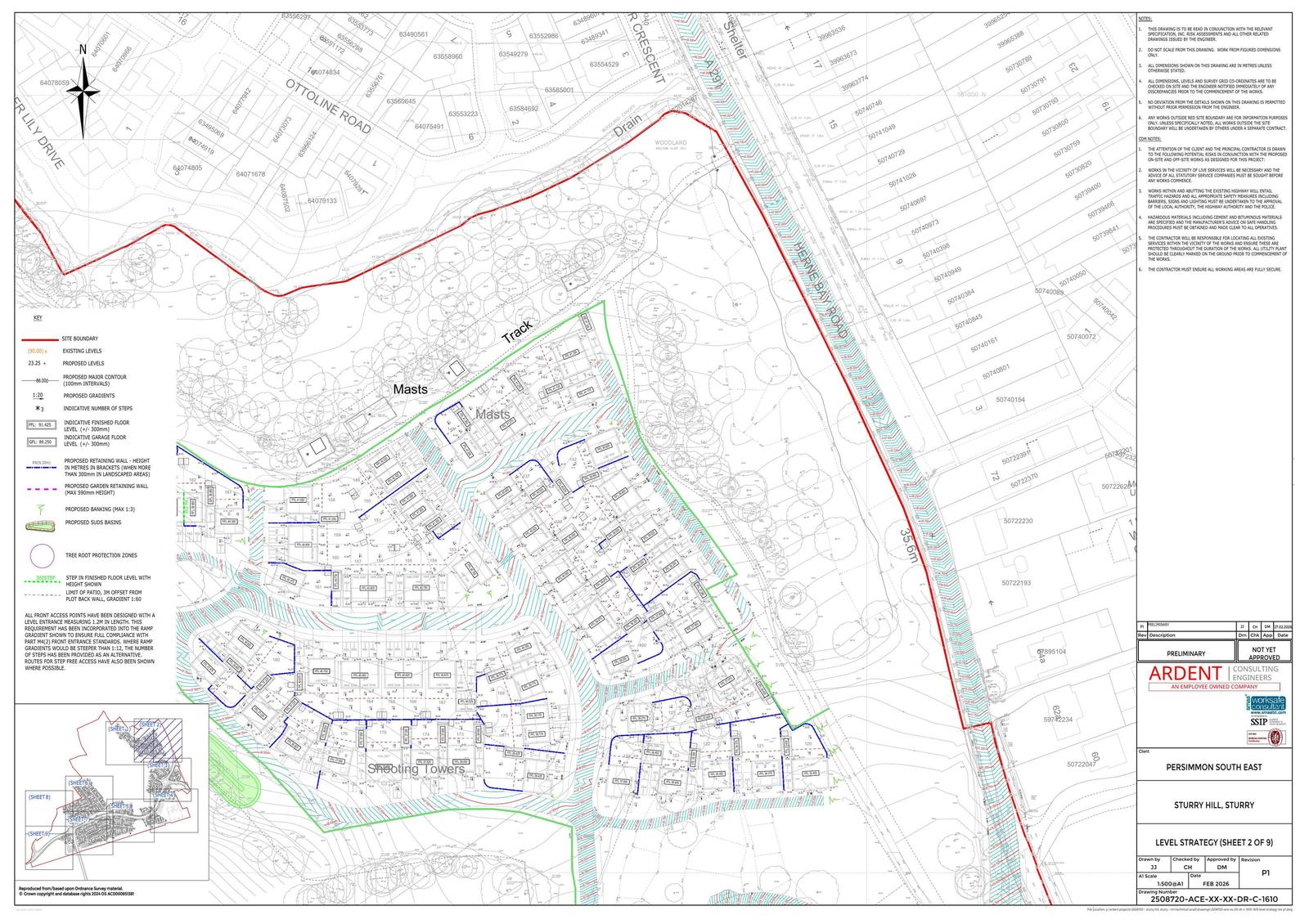
Drawing
Archived · Original link
Drawing
Archived · Original link
Drawing
Archived · Original link
Drawing
Archived · Original link
Drawing
Archived · Original link
Drawing
Archived · Original link
Drawing
Archived · Original link
Drawing
Archived · Original link
Associated Document
Archived · Original link
Associated Document
Archived · Original link
Consultee Comment
Archived · Original link
Consultee Comment
Archived · Original link
Drawing
Archived · Original link
Drawing
Archived · Original link
Drawing
Archived · Original link

Have your say

Your comment matters. Councils must consider every representation that raises material planning considerations.

Write a comment