← Canterbury City Council

Status

Awaiting decision House extension
Received
Not recorded
New homes
0

Full proposal

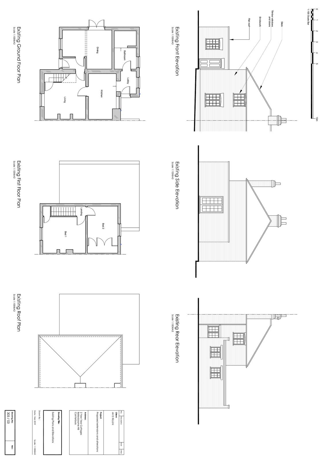
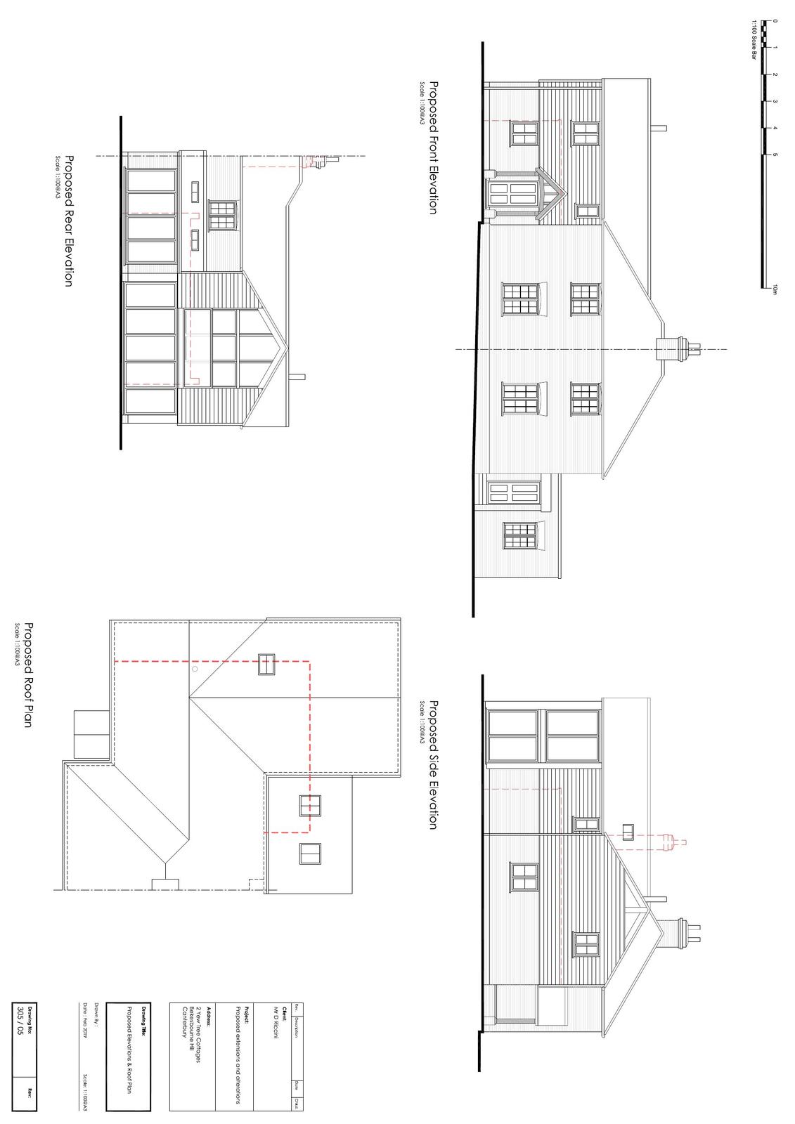
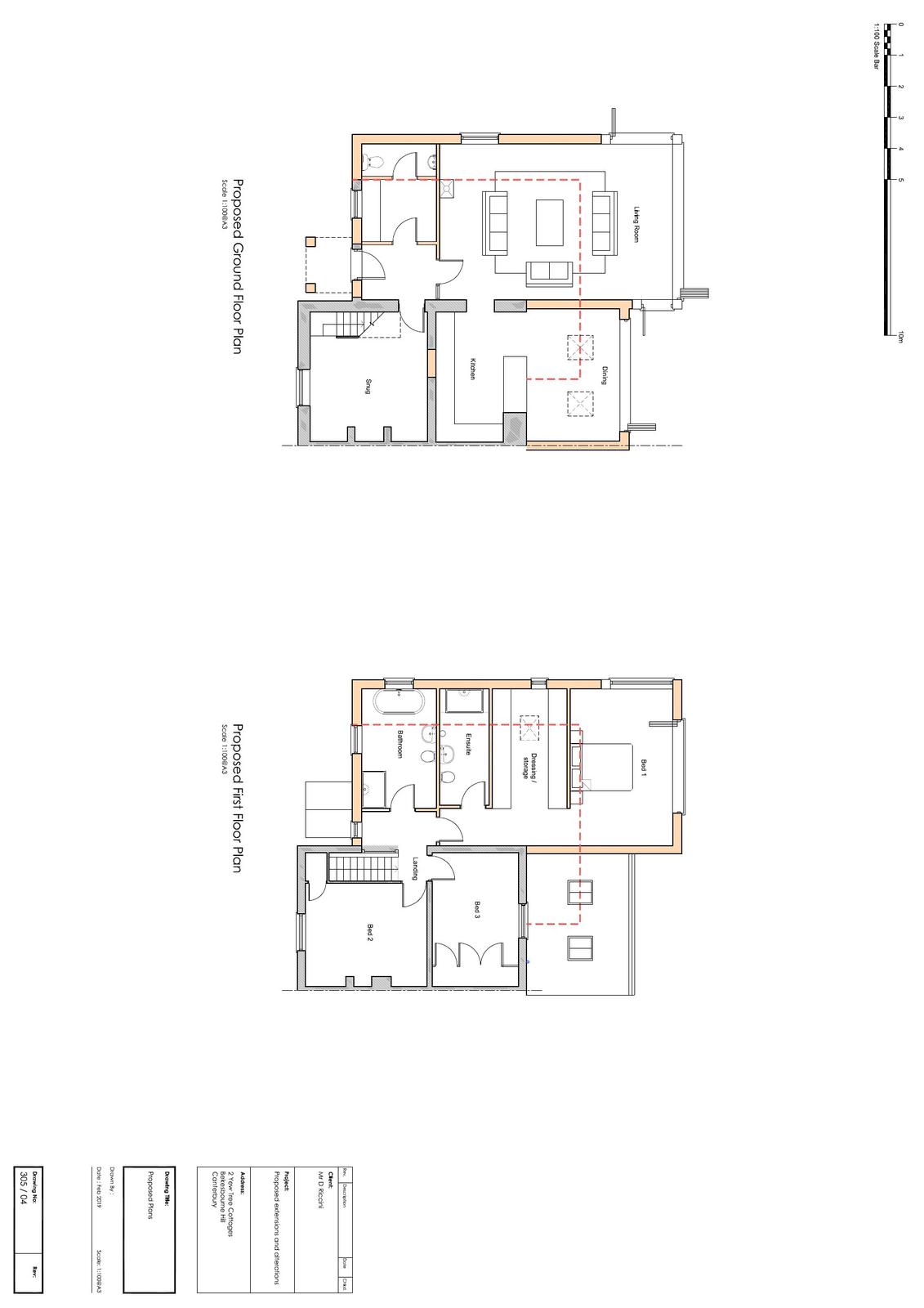
Two-storey side & rear extension following demolition of existing side & rear extension.

Documents

Design and Access
Archived · Original link
Drawing
Archived · Original link
Drawing
Archived · Original link
Drawing
Archived · Original link

Have your say

Your comment matters. Councils must consider every representation that raises material planning considerations.

Write a comment