← Cardiff Council

Status

Registered Commercial
Received
21 Jan 2025
New homes
0

Full proposal

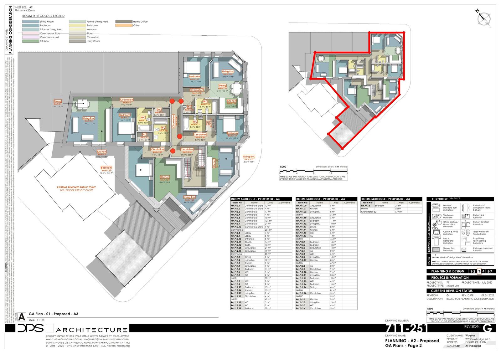
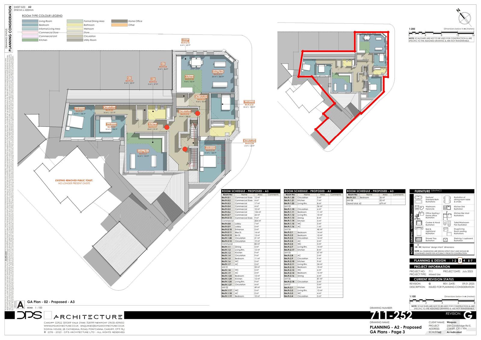
Renovation and extension of an existing commercial building and the creation of new apartments. Revised Commercial area to include for A1, A2 and A3.

Documents

APPLICATIONFORMREDACTED
Application Form
Not yet archived · Original link
DESIGN STATEMENT
Supporting Documents
Not yet archived · Original link
EXISTING ELEVATIONS
Plans/Drawings
Not yet archived · Original link
EXISTING FLOOR PLANS - 1
Plans/Drawings
Not yet archived · Original link
EXISTING FLOOR PLANS - 2
Plans/Drawings
Not yet archived · Original link
EXISTING STREETSCENE ELEVATION
Plans/Drawings
Not yet archived · Original link
FLOOD CONSEQUENCE ASSESSMENT
Flood Consequence Assessment
Not yet archived · Original link
GREEN INFRASTRUCTURE STATEMENT
Supporting Documents
Not yet archived · Original link
PROPOSED ELEVATIONS
Plans/Drawings
Not yet archived · Original link
Plans/Drawings
Archived · Original link
Plans/Drawings
Archived · Original link
Plans/Drawings
Archived · Original link
Plans/Drawings
Archived · Original link
PROPOSED STREETSCENE ELEVATION
Plans/Drawings
Not yet archived · Original link
Site Location Plan
Archived · Original link

Have your say

Your comment matters. Councils must consider every representation that raises material planning considerations.

Write a comment