← Cardiff Council

Status

Registered New housing
Received
11 Mar 2025
New homes
2

Full proposal

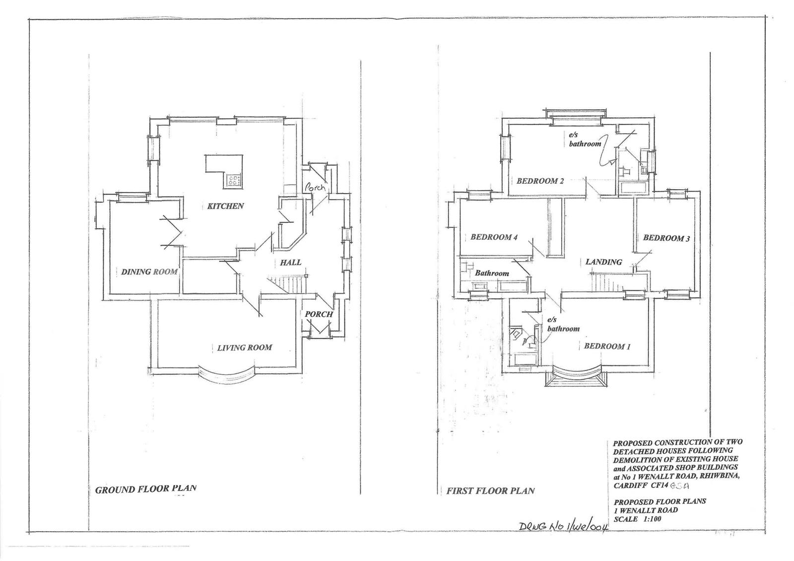
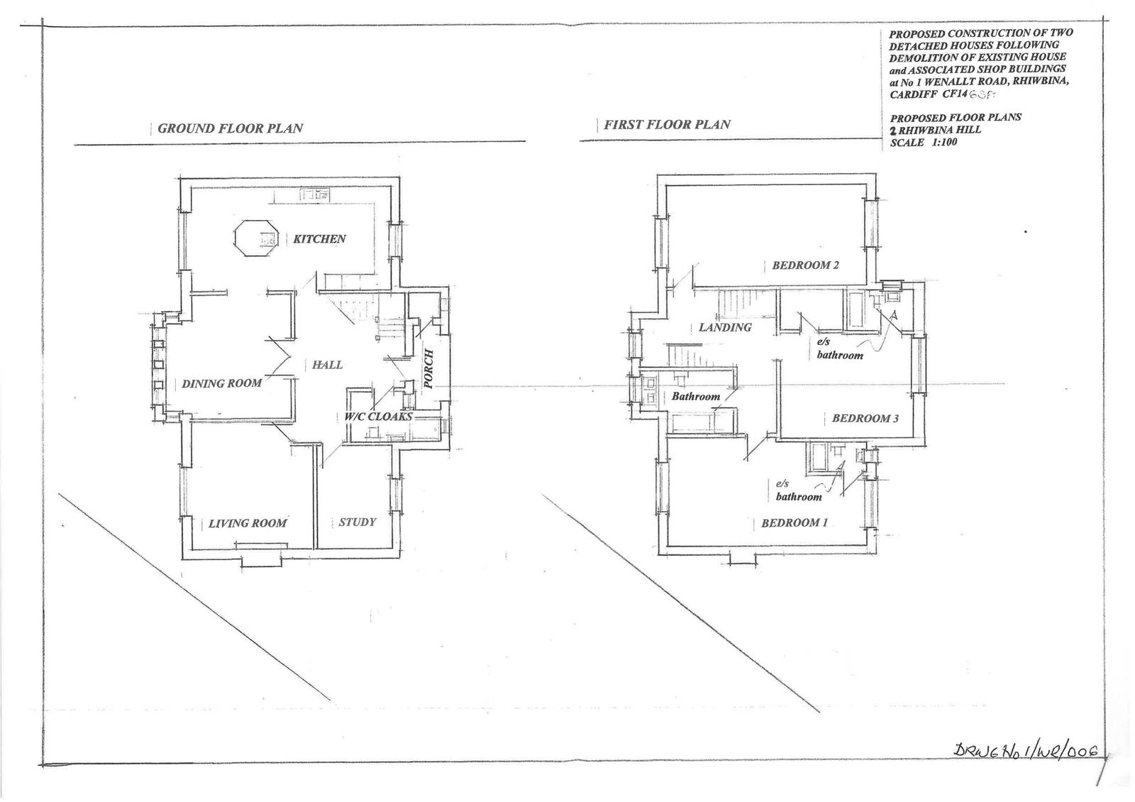
Demolition of all buildings on site, comprising shop with residential flat above and adjacent shop building, and construction of two detached dwellings.

Documents

APPLICATION FORM
Application Form
Not yet archived · Original link
COVER LETTER
Correspondence
Not yet archived · Original link
ECOLOGICAL APPRAISAL
Supporting Documents
Not yet archived · Original link
EXISTING SITE LAYOUT
Plans/Drawings
Not yet archived · Original link
PROPOSED ELEVATIONS - 1 WENALLT ROAD
Plans/Drawings
Not yet archived · Original link
PROPOSED ELEVATIONS - 2 RHIWBINA HILL
Plans/Drawings
Not yet archived · Original link
Plans/Drawings
Archived · Original link
PROPOSED SITE LAYOUT
Plans/Drawings
Not yet archived · Original link
TREE SURVEY (INCL. AIA & AMS)
Supporting Documents
Not yet archived · Original link

Have your say

Your comment matters. Councils must consider every representation that raises material planning considerations.

Write a comment