← Cardiff Council

Status

Awaiting decision New housing
Received
02 May 2025
New homes
0

Full proposal

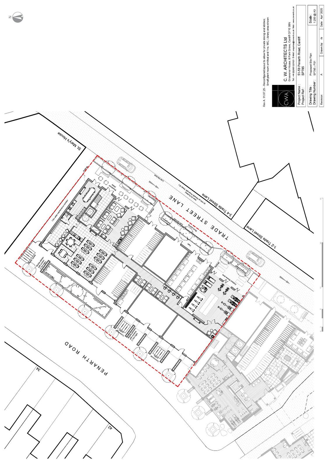
Demolition of existing buildings and construction of Co-Living Accommodation Units in a single building of up to nine storeys, commercial floorspace on the ground floor and the provision of indoor and outdoor amenity space, cycle parking and associated works.

Documents

AIR QUALITY ASSESSMENT
Supporting Documents
Not yet archived · Original link
APPLICATIONFORMREDACTED
Application Form
Not yet archived · Original link
ASSET HOUSE 2 SOFT LANDSCAPE SPECIFICATION AND MANAGEMENT PLAN
Supporting Documents
Not yet archived · Original link
ASSET-HOUSE-2-DAYLIGHT-SUNLIGHT-REPORT
Supporting Documents
Not yet archived · Original link
BROADBAND INFRASTRUCTURE STATEMENT
Supporting Documents
Not yet archived · Original link
COMMITTEE LATE REPS
Report
Not yet archived · Original link
COMMITTEE REPORT
Report
Not yet archived · Original link
CONTAMINATED LAND
Consultee Comment
Not yet archived · Original link
COVER LETTER
Correspondence
Not yet archived · Original link
DESIGN AND ACCESS STATEMENT
Design and Access Statement
Not yet archived · Original link
DETAILED PLANTING PLAN
Amended Plans
Not yet archived · Original link
DETAILED PLANTING PLAN
Superseded
Not yet archived · Original link
DRAINAGE TECH NOTE
Supporting Documents
Not yet archived · Original link
ENERGY STRATEGY
Supporting Documents
Not yet archived · Original link
Plans/Drawings
Archived · Original link
EXTERNAL LIGHTING ASSESSMENT
Supporting Documents
Not yet archived · Original link
FIRE SAFETY STRATEGY
Supporting Documents
Not yet archived · Original link
FLOOD CONSEQUENCE ASSESSMENT
Supporting Documents
Not yet archived · Original link
GEOTECH REPORT PART 1
Supporting Documents
Not yet archived · Original link
GEOTECH REPORT PART 2
Supporting Documents
Not yet archived · Original link
GEOTECH REPORT PART 3
Supporting Documents
Not yet archived · Original link
GEOTECH REPORT PART 4
Supporting Documents
Not yet archived · Original link
GEOTECH REPORT PART 5
Supporting Documents
Not yet archived · Original link
GEOTECH REPORT PART 6
Supporting Documents
Not yet archived · Original link
GREEN INFRASTRUCTURE STATEMENT
Supporting Documents
Not yet archived · Original link
HARD MATERIALS PLAN
Amended Plans
Not yet archived · Original link
HARD MATERIALS PLAN
Superseded
Not yet archived · Original link
LANDSCAPE MASTERPLAN
Amended Plans
Not yet archived · Original link
LANDSCAPE MASTERPLAN
Plans/Drawings
Not yet archived · Original link
NOISE IMPACT ASSESSMENT
Supporting Documents
Not yet archived · Original link
PAC REPORT
Supporting Documents
Not yet archived · Original link
PLANNING STATEMENT FOR PAC
Supporting Documents
Not yet archived · Original link
PRELIMINARY ROOST ASSESSMENT
Supporting Documents
Not yet archived · Original link
PROPOSED 1ST FLOOR PLAN
Plans/Drawings
Not yet archived · Original link
PROPOSED 2ND TO 6TH FLOOR PLAN
Amended Plans
Not yet archived · Original link
PROPOSED 2ND TO 6TH FLOOR PLAN
Superseded
Not yet archived · Original link
PROPOSED 7TH FLOOR PLAN
Amended Plans
Not yet archived · Original link
PROPOSED 7TH FLOOR PLAN
Superseded
Not yet archived · Original link
PROPOSED 8TH FLOOR PLAN
Amended Plans
Not yet archived · Original link
PROPOSED 8TH FLOOR PLAN
Superseded
Not yet archived · Original link
PROPOSED ACCESS CONTROL PLAN
Superseded
Not yet archived · Original link
PROPOSED ACCESS CONTROL PLAN
Amended Plans
Not yet archived · Original link
PROPOSED CCTV PLAN
Amended Plans
Not yet archived · Original link
PROPOSED CCTV PLAN
Superseded
Not yet archived · Original link
PROPOSED CONTEXTUAL ELEVATIONS
Plans/Drawings
Not yet archived · Original link
PROPOSED CYCLE PARKING STRATEGY
Superseded
Not yet archived · Original link
PROPOSED CYCLE PARKING STRATEGY
Amended Plans
Not yet archived · Original link
PROPOSED CYCLE PARKING STRATEGY
Superseded
Not yet archived · Original link
PROPOSED DEMOLITION PLAN
Plans/Drawings
Not yet archived · Original link
PROPOSED FRONT ELEVATION
Superseded
Not yet archived · Original link
PROPOSED FRONT ELEVATION
Amended Plans
Not yet archived · Original link
PROPOSED FRONT ELEVATION (NORTH-WEST)
Superseded
Not yet archived · Original link
PROPOSED GROUND FLOOR PLAN
Superseded
Not yet archived · Original link
PROPOSED GROUND FLOOR PLAN
Superseded
Not yet archived · Original link
PROPOSED GROUND FLOOR PLAN
Amended Plans
Not yet archived · Original link
PROPOSED OVERLOOKING PLAN
Amended Plans
Not yet archived · Original link
PROPOSED OVERLOOKING PLAN
Superseded
Not yet archived · Original link
PROPOSED REAR ELEVATION
Amended Plans
Not yet archived · Original link
PROPOSED REAR ELEVATION
Superseded
Not yet archived · Original link
PROPOSED REAR ELEVATION (SOUTH-EAST)
Superseded
Not yet archived · Original link
PROPOSED ROOF PLAN
Superseded
Not yet archived · Original link
PROPOSED ROOF PLAN
Amended Plans
Not yet archived · Original link
PROPOSED SECTION A-A
Plans/Drawings
Not yet archived · Original link
PROPOSED SECTION B-B
Plans/Drawings
Not yet archived · Original link
PROPOSED SECURITY PLAN
Amended Plans
Not yet archived · Original link
PROPOSED SECURITY PLAN
Superseded
Not yet archived · Original link
PROPOSED SHADOW ANALYSIS (APRIL AND OCTOBER)
Plans/Drawings
Not yet archived · Original link
PROPOSED SHADOW ANALYSIS (JUNE)
Plans/Drawings
Not yet archived · Original link
PROPOSED SHADOW ANALYSIS (MARCH)
Plans/Drawings
Not yet archived · Original link
PROPOSED SHADOW ANALYSIS (SEPTEMBER)
Plans/Drawings
Not yet archived · Original link
PROPOSED SIDE ELEVATION
Amended Plans
Not yet archived · Original link
PROPOSED SIDE ELEVATION
Superseded
Not yet archived · Original link
PROPOSED SIDE ELEVATION (NORTH-EAST)
Superseded
Not yet archived · Original link
Superseded
Archived · Original link
Amended Plans
Archived · Original link
Superseded
Archived · Original link
PROPOSED TRANSPORT PLAN
Amended Plans
Not yet archived · Original link
PROPOSED TRANSPORT PLAN
Superseded
Not yet archived · Original link
PROPOSED TRANSPORT PLAN
Superseded
Not yet archived · Original link
PROPOSED WASTE MANAGEMENT STRATEGY
Amended Plans
Not yet archived · Original link
PROPOSED WASTE MANAGEMENT STRATEGY
Superseded
Not yet archived · Original link
REVISED
Flood Consequence Assessment
Not yet archived · Original link
Site Location Plan
Archived · Original link
SOFT LANDSCAPE SPECIFICATION & MANAGEMENT PLAN
Amended Information
Not yet archived · Original link
SOIL STRATEGY
Superseded
Not yet archived · Original link
SOILING STRATEGY
Amended Plans
Not yet archived · Original link
TRANSPORT STATEMENT
Supporting Documents
Not yet archived · Original link
TREE PIT DETAILS
Superseded
Not yet archived · Original link
TREE PIT DETAILS
Amended Plans
Not yet archived · Original link
WASTE MANAGEMENT STRATEGY
Supporting Documents
Not yet archived · Original link
WIND MICROCLIMATE CFD STUDY
Supporting Documents
Not yet archived · Original link

Have your say

Your comment matters. Councils must consider every representation that raises material planning considerations.

Write a comment