← Cardiff Council

Status

Registered New housing
Received
27 May 2025
New homes
1

Full proposal

Proposed demolition of existing bungalow and erection of new build development to form two dwellings

Documents

APPLICATIONFORMREDACTED
Application Form
Not yet archived · Original link
ELEVATIONS 1 OF 2 AS PROPOSED
Plans/Drawings
Not yet archived · Original link
ELEVATIONS 2 OF 2 AS PROPOSED
Plans/Drawings
Not yet archived · Original link
EXISTING ELEVATIONS 1/2
Plans/Drawings
Not yet archived · Original link
EXISTING ELEVATIONS 2/2
Plans/Drawings
Not yet archived · Original link
EXISTING GROUND FLOOR PLAN
Plans/Drawings
Not yet archived · Original link
Plans/Drawings
Archived · Original link
FIRST FLOOR PLAN AS PROPOSED
Plans/Drawings
Not yet archived · Original link
GREEN INFRASTRUCTURE STATEMENT
Supporting Documents
Not yet archived · Original link
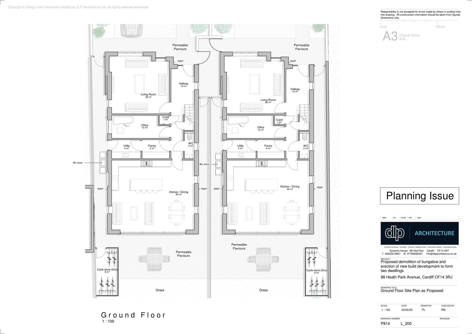
GROUND FLOOR PLAN AS PROPOSED
Plans/Drawings
Not yet archived · Original link
LANDSCAPE MANAGEMENT PLAN
Additional Information
Not yet archived · Original link
LANDSCAPE PROPOSALS
Additional Information
Not yet archived · Original link
PERSPECTIVE VIEWS 1 OF 2 AS PROPOSED
Plans/Drawings
Not yet archived · Original link
PERSPECTIVE VIEWS 2 OF 2 AS PROPOSED
Plans/Drawings
Not yet archived · Original link
REVISED GROUND FLOOR PLAN
Amended Plans
Not yet archived · Original link
REVISED LAYOUT
Amended Plans
Not yet archived · Original link
SECOND FLOOR PLAN AS PROPOSED
Plans/Drawings
Not yet archived · Original link
SECTIONS AS PROPOSED
Plans/Drawings
Not yet archived · Original link
SITE ELEVATION 3 OF 3 AS PROPOSED
Plans/Drawings
Not yet archived · Original link
SITE ELEVATIONS 1 OF 3 AS PROPOSED
Plans/Drawings
Not yet archived · Original link
SITE ELEVATIONS 2 OF 3 AS PROPOSED
Plans/Drawings
Not yet archived · Original link
Site Location Plan
Archived · Original link
Plans/Drawings
Archived · Original link
Plans/Drawings
Archived · Original link

Have your say

Your comment matters. Councils must consider every representation that raises material planning considerations.

Write a comment