← Cardiff Council

Status

Registered Change of use
Received
11 Aug 2025
New homes
3

Full proposal

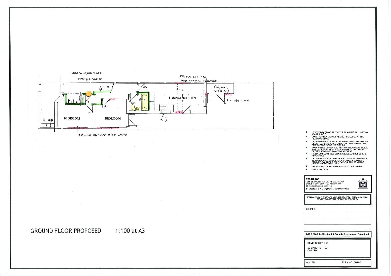
Conversion to 3 flats and attic conversion with rear dormer.

Documents

APPLICATIONFORMREDACTED
Application Form
Not yet archived · Original link
DESIGN STATEMENT
Supporting Documents
Not yet archived · Original link
EXISTING PLANS
Drawing
Not yet archived · Original link
GREEN INFRASTRUCTURE STATEMENT
Supporting Documents
Not yet archived · Original link
Amended Plans
Archived · Original link
Drawing
Archived · Original link
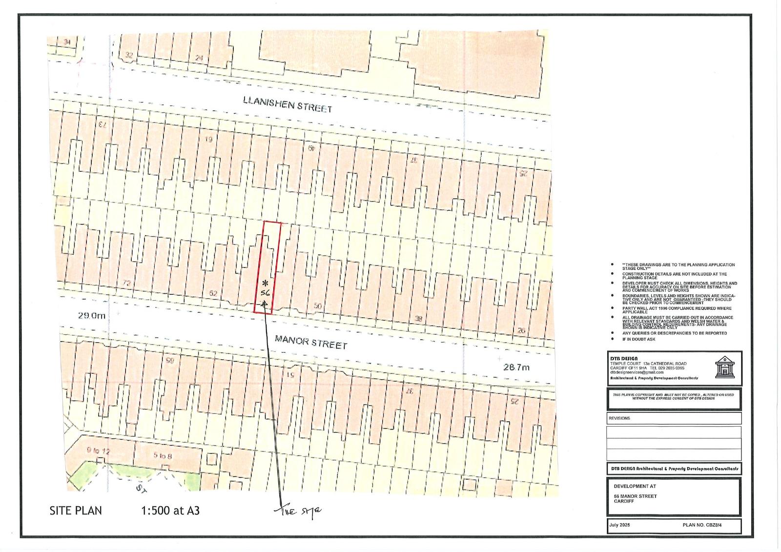
Site Location Plan
Archived · Original link
Drawing
Archived · Original link

Have your say

Your comment matters. Councils must consider every representation that raises material planning considerations.

Write a comment