← Cardiff Council

Status

Registered Other
Received
17 Sep 2025
New homes
0

Full proposal

Partial demolition and re-build including upward extension to create additional storey and ground floor extension including first floor roof terrace to east facing elevation, replacement and new window openings, new entrance doors, new railings, painting of elevations.

Documents

APPLICATIONFORMREDACTED
Application Form
Not yet archived · Original link
DESIGN AND ACCESS STATEMENT
Supporting Documents
Not yet archived · Original link
EXISTING ELEVATIONS
Plans/Drawings
Not yet archived · Original link
EXISTING FLOOR PLANS
Plans/Drawings
Not yet archived · Original link
EXISTING WEST ELEVATION
Plans/Drawings
Not yet archived · Original link
PROPOSED ELEVATIONS - 1
Superseded
Not yet archived · Original link
PROPOSED ELEVATIONS - 2
Superseded
Not yet archived · Original link
PROPOSED ELEVATIONS 1 OF 2
Amended Plans
Not yet archived · Original link
PROPOSED ELEVATIONS 2 OF 2
Amended Plans
Not yet archived · Original link
Superseded
Archived · Original link
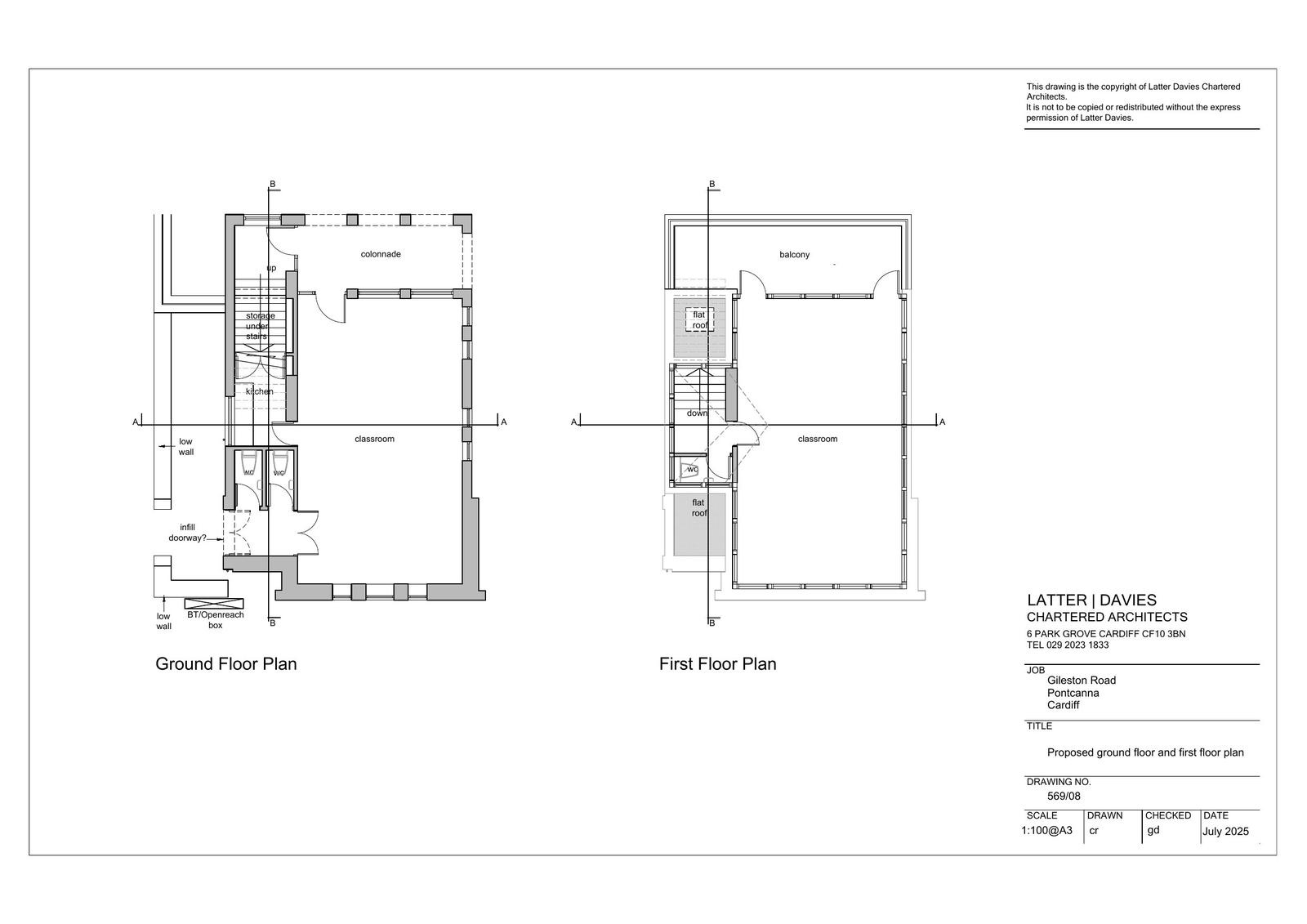
PROPOSED GROUND FLOOR AND FIRST FLOOR PLANS
Amended Plans
Not yet archived · Original link
PROPOSED SECTIONS
Superseded
Not yet archived · Original link
PROPOSED SECTIONS A-A AND B-B
Amended Plans
Not yet archived · Original link
Superseded
Archived · Original link
Amended Plans
Archived · Original link
PROPOSED SOUTH ELEVATION
Superseded
Not yet archived · Original link
PROPOSED WEST ELEVATION
Plans/Drawings
Not yet archived · Original link
SIDE ELEVATION AND FORMER CHURCH CONTEXT
Amended Plans
Not yet archived · Original link

Have your say

Your comment matters. Councils must consider every representation that raises material planning considerations.

Write a comment