← Cardiff Council

Status

Registered Commercial
Received
24 Sep 2025
New homes
0

Full proposal

Demolition of the front office block and partial demolition of the warehouse. Partial extension and new-build to provide a mixed-use scheme comprising of B1, B2, B8 and D2 uses with associated landscaping, car park and yard space.

Documents

APPLICATIONFORMREDACTED
Application Form
Not yet archived · Original link
DESIGN AND ACCESS STATEMENT (COMPRESSED)
Supporting Documents
Not yet archived · Original link
EXISTING ELEVATIONS
Plans/Drawings
Not yet archived · Original link
EXISTING ELEVATIONS
Plans/Drawings
Not yet archived · Original link
EXISTING ELEVATIONS
Plans/Drawings
Not yet archived · Original link
EXISTING FIRST FLOOR PLAN - PART 1
Plans/Drawings
Not yet archived · Original link
EXISTING FIRST FLOOR PLAN - PART 2
Plans/Drawings
Not yet archived · Original link
EXISTING FIRST FLOOR PLAN - WHOLE
Plans/Drawings
Not yet archived · Original link
EXISTING GROUND FLOOR PLAN - PART 1
Plans/Drawings
Not yet archived · Original link
EXISTING GROUND FLOOR PLAN - PART 2
Plans/Drawings
Not yet archived · Original link
EXISTING GROUND FLOOR PLAN - PART 3
Plans/Drawings
Not yet archived · Original link
EXISTING GROUND FLOOR PLAN - PART 4
Plans/Drawings
Not yet archived · Original link
EXISTING GROUND FLOOR PLAN - WHOLE
Plans/Drawings
Not yet archived · Original link
EXISTING ROOF PLAN
Plans/Drawings
Not yet archived · Original link
EXISTING SECTION A-A
Plans/Drawings
Not yet archived · Original link
EXISTING SECTION B-B
Plans/Drawings
Not yet archived · Original link
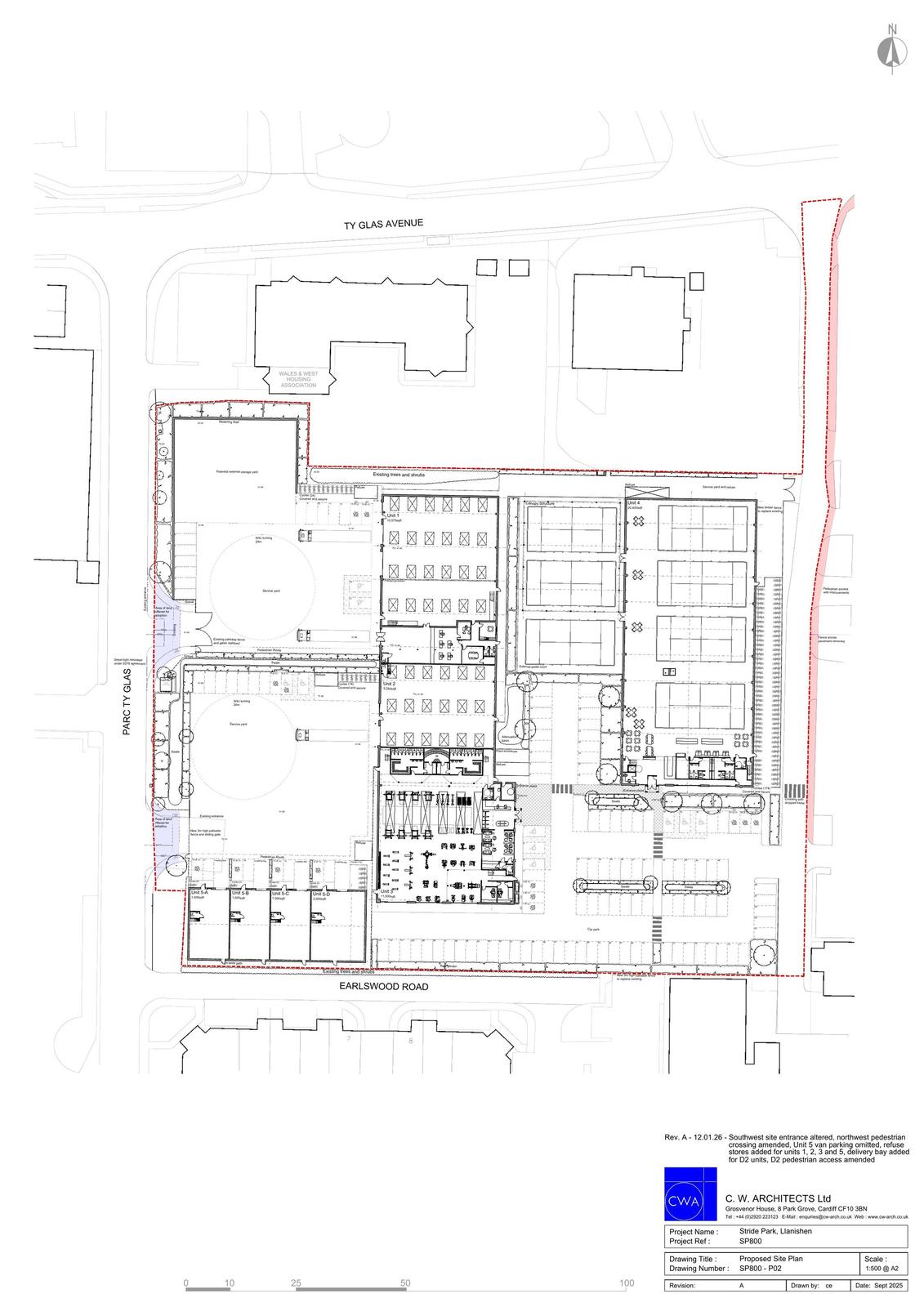
Plans/Drawings
Archived · Original link
FLOOD RISK ASSESSMENT
Supporting Documents
Not yet archived · Original link
GREEN INFRASTRUCTURE STATEMENT
Supporting Documents
Not yet archived · Original link
LANDSCAPE PROPOSALS
Plans/Drawings
Not yet archived · Original link
PERIMETER HEDGE GROUND PREPARATION
Plans/Drawings
Not yet archived · Original link
PLANT SCHEDULES
Plans/Drawings
Not yet archived · Original link
PLANT SPECIFICATION
Plans/Drawings
Not yet archived · Original link
PRE-APPLICATION CONSULTATION REPORT
Supporting Documents
Not yet archived · Original link
PRELIMINARY ECOLOGICAL ASSESSMENT
Supporting Documents
Not yet archived · Original link
PROPOSED ELEVATIONS
Plans/Drawings
Not yet archived · Original link
PROPOSED ELEVATIONS
Plans/Drawings
Not yet archived · Original link
PROPOSED ELEVATIONS
Plans/Drawings
Not yet archived · Original link
PROPOSED ELEVATIONS
Plans/Drawings
Not yet archived · Original link
PROPOSED FIRST FLOOR PLAN - PART 1
Plans/Drawings
Not yet archived · Original link
PROPOSED FIRST FLOOR PLAN - PART 2
Plans/Drawings
Not yet archived · Original link
PROPOSED FIRST FLOOR PLAN - WHOLE
Plans/Drawings
Not yet archived · Original link
PROPOSED GROUND FLOOR PLAN - PART 1
Plans/Drawings
Not yet archived · Original link
PROPOSED GROUND FLOOR PLAN - PART 2
Plans/Drawings
Not yet archived · Original link
PROPOSED GROUND FLOOR PLAN - PART 3
Plans/Drawings
Not yet archived · Original link
PROPOSED GROUND FLOOR PLAN - PART 4
Plans/Drawings
Not yet archived · Original link
PROPOSED GROUND FLOOR PLAN - WHOLE
Plans/Drawings
Not yet archived · Original link
PROPOSED ROOF PLAN
Plans/Drawings
Not yet archived · Original link
PROPOSED SECTION A-A
Plans/Drawings
Not yet archived · Original link
PROPOSED SECTION B-B
Plans/Drawings
Not yet archived · Original link
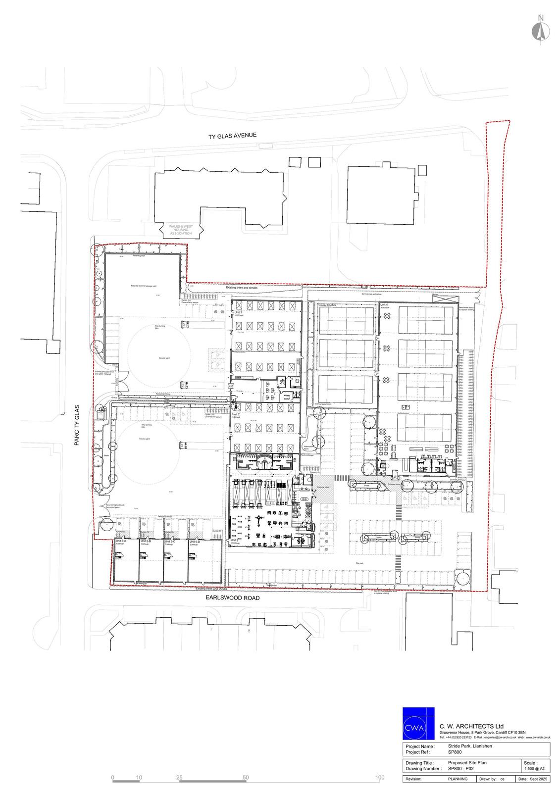
Plans/Drawings
Archived · Original link
Amended Plans
Archived · Original link
Site Location Plan
Archived · Original link
TRANSPORT STATEMENT
Supporting Documents
Not yet archived · Original link
TRANSPORT STATEMENT
Supporting Documents
Not yet archived · Original link
TREE CONSTRAINTS PLAN
Plans/Drawings
Not yet archived · Original link
TREE PIT IN RAIN GARDEN DETAIL
Plans/Drawings
Not yet archived · Original link
TREE SURVEY
Supporting Documents
Not yet archived · Original link

Have your say

Your comment matters. Councils must consider every representation that raises material planning considerations.

Write a comment