← Cardiff Council

Status

Registered Demolition
Received
26 Sep 2025
New homes
0

Full proposal

Partial demolition and replacement of existing dwelling.

Documents

APPLICATIONFORMREDACTED
Application Form
Not yet archived · Original link
EXISTING CONTEXTUAL ELEVATION
Drawing
Not yet archived · Original link
EXISTING ELEVATIONS - COLOURED
Drawing
Not yet archived · Original link
EXISTING FLOOR PLANS
Drawing
Not yet archived · Original link
EXISTING FRONT AND SIDE ELEVATIONS
Drawing
Not yet archived · Original link
EXISTING REAR AND SIDE ELEVATIONS
Drawing
Not yet archived · Original link
EXISTING ROOF PLAN
Drawing
Not yet archived · Original link
Drawing
Archived · Original link
FLOOD CONSEQUENCES ASSESSMENT
Flood Consequence Assessment
Not yet archived · Original link
PROPOSED CONTEXTUAL ELEVATION
Drawing
Not yet archived · Original link
PROPOSED DEMOLITION PLAN
Drawing
Not yet archived · Original link
PROPOSED ELEVATIONS - COLOURED
Drawing
Not yet archived · Original link
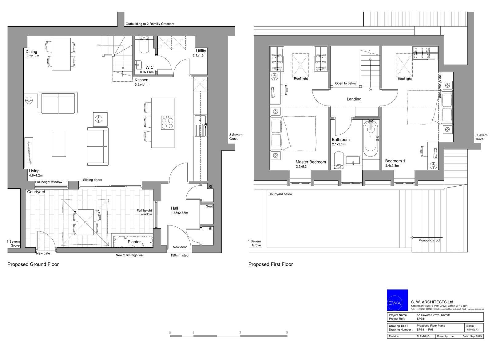
Drawing
Archived · Original link
PROPOSED FRONT AND SIDE ELEVATIONS
Drawing
Not yet archived · Original link
PROPOSED REAR AND SIDE ELEVATIONS
Drawing
Not yet archived · Original link
PROPOSED ROOF PLAN
Drawing
Not yet archived · Original link
PROPOSED SECTION A-A
Drawing
Not yet archived · Original link
Drawing
Archived · Original link
Site Location Plan
Archived · Original link
SP781 - DESIGN AND ACCESS STATEMENT
Design and Access Statement
Not yet archived · Original link
SP781 - FCA COVER LETTER
Correspondence
Not yet archived · Original link
SP781 - HEIRTAGE IMPACT STATEMENT
Supporting Documents
Not yet archived · Original link

Have your say

Your comment matters. Councils must consider every representation that raises material planning considerations.

Write a comment