← Cardiff Council

Status

Registered House extension
Received
10 Oct 2025
New homes
0

Full proposal

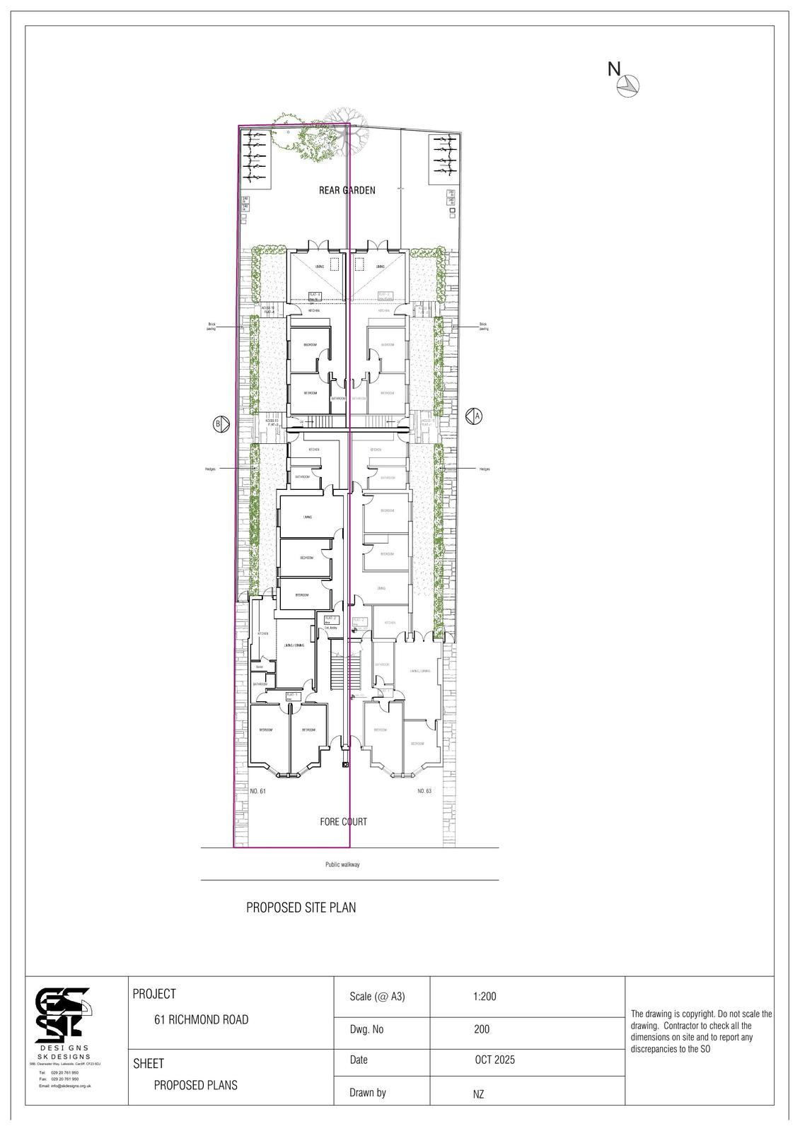
Two storey rear extension to create two flats with external alterations to the property.

Documents

APPLICATIONFORMREDACTED
Application Form
Not yet archived · Original link
DESIGN STATEMENT
Supporting Documents
Not yet archived · Original link
EXISTING ELEVATION - A
Plans/Drawings
Not yet archived · Original link
EXISTING ELEVATION - B
Plans/Drawings
Not yet archived · Original link
EXISTING FIRST FLOOR PLAN
Plans/Drawings
Not yet archived · Original link
EXISTING FRONT ELEVATION
Plans/Drawings
Not yet archived · Original link
EXISTING GROUND FLOOR PLAN
Plans/Drawings
Not yet archived · Original link
EXISTING REAR ELEVATION
Plans/Drawings
Not yet archived · Original link
EXISTING SECOND FLOOR PLAN
Plans/Drawings
Not yet archived · Original link
Plans/Drawings
Archived · Original link
GREEN INFRASTRUCTURE STATEMENT
Supporting Documents
Not yet archived · Original link
PROPOSED FIRST FLOOR PLAN
Plans/Drawings
Not yet archived · Original link
PROPOSED FRONT ELEVATION
Plans/Drawings
Not yet archived · Original link
PROPOSED GROUND FLOOR PLAN
Plans/Drawings
Not yet archived · Original link
PROPOSED REAR ELEVATION
Plans/Drawings
Not yet archived · Original link
PROPOSED ROOF PLAN
Plans/Drawings
Not yet archived · Original link
PROPOSED SIDE ELEVATION
Plans/Drawings
Not yet archived · Original link
Plans/Drawings
Archived · Original link
Site Location Plan
Archived · Original link

Have your say

Your comment matters. Councils must consider every representation that raises material planning considerations.

Write a comment