← Cardiff Council

Status

Registered New housing
Received
15 Oct 2025
New homes
1

Full proposal

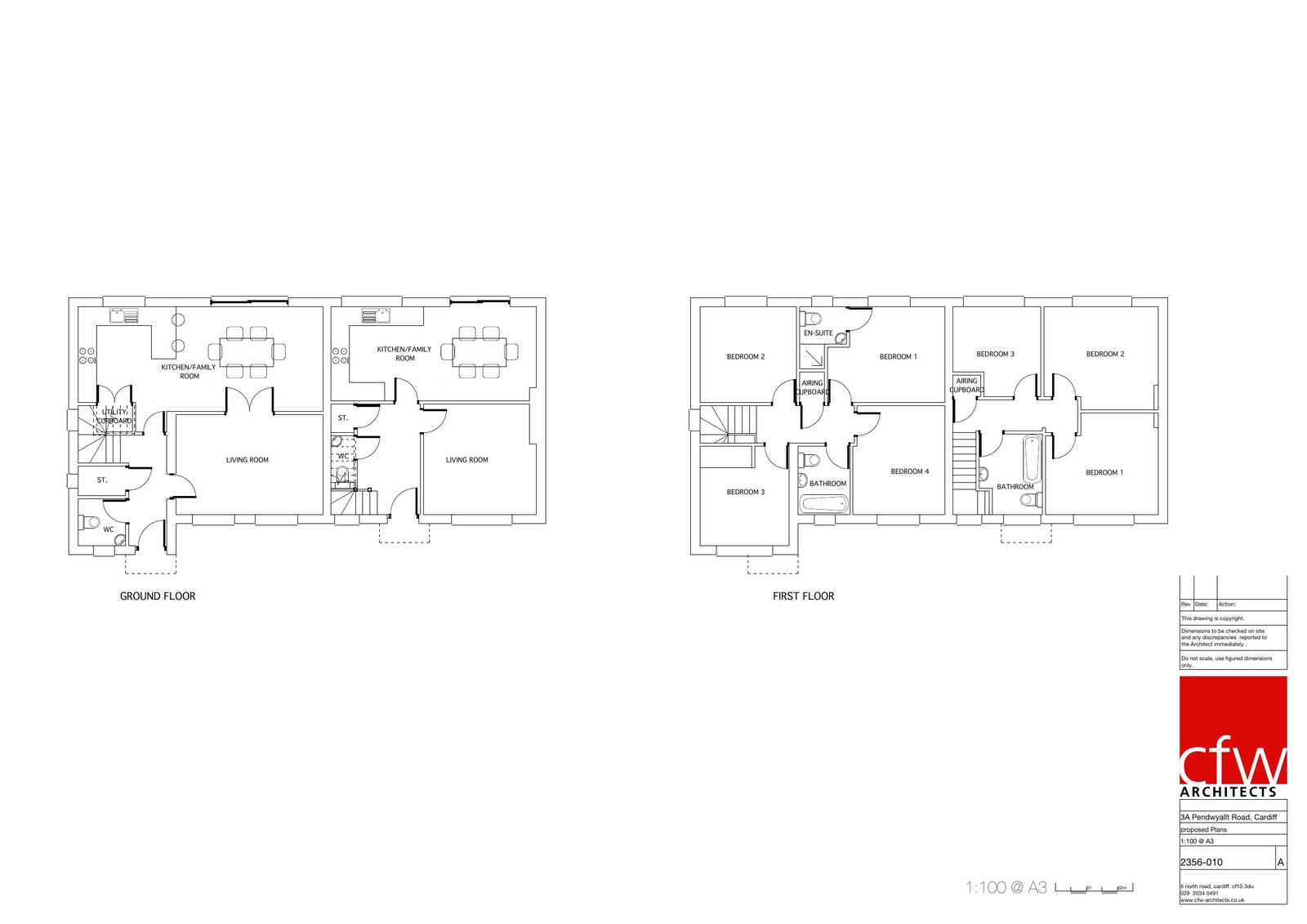
Separation of existing dwelling house to create two semi-detached properties, demolition of existing garage, creation of new first floor side extension and associated external works.

Documents

APPLICATIONFORMREDACTED
Application Form
Not yet archived · Original link
EXISTING ELEVATIONS
Plans/Drawings
Not yet archived · Original link
EXISTING FLOOR PLANS
Plans/Drawings
Not yet archived · Original link
Plans/Drawings
Archived · Original link
OBJECTION-JANICE HUGHES
Objection Comment
Not yet archived · Original link
PROPOSED ELEVATION
Plans/Drawings
Not yet archived · Original link
Plans/Drawings
Archived · Original link
Superseded
Archived · Original link
Site Location Plan
Archived · Original link

Have your say

Your comment matters. Councils must consider every representation that raises material planning considerations.

Write a comment