← Cardiff Council

Status

Registered House extension
Received
15 Oct 2025
New homes
0

Full proposal

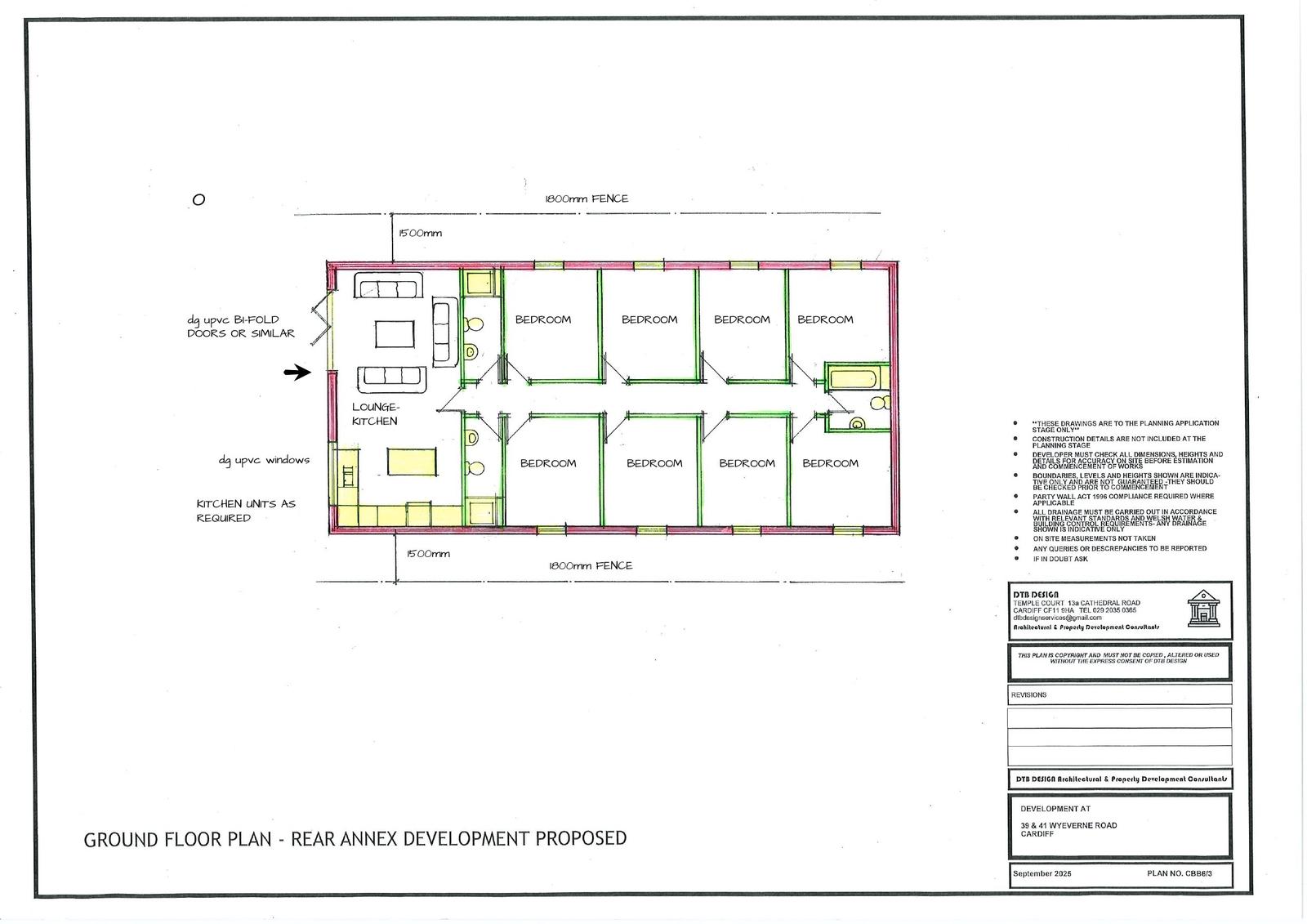
Erection of detached building to house additional bedrooms associated with the existing Sui Generis House in Multiple Occupation at 39 Wyeverne Road.

Documents

APPLICATIONFORMREDACTED
Application Form
Not yet archived · Original link
DESIGN STATEMENT
Supporting Documents
Not yet archived · Original link
EXISTING FLOOR PLANS
Plans/Drawings
Not yet archived · Original link
Plans/Drawings
Archived · Original link
GREEN INFRASTRUCTURE STATEMENT
Supporting Documents
Not yet archived · Original link
PROPOSED SITE LAYOUT
Plans/Drawings
Not yet archived · Original link
Site Location Plan
Archived · Original link

Have your say

Your comment matters. Councils must consider every representation that raises material planning considerations.

Write a comment