← Cardiff Council

Status

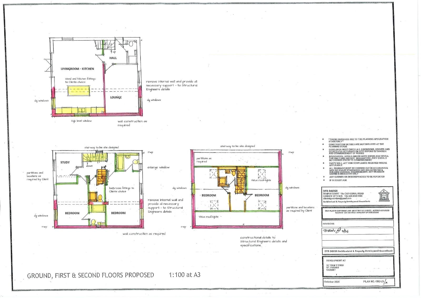
Registered House extension
Received
04 Nov 2025
New homes
0

Full proposal

Two storey side extension with raising of ridge and dormer extension to provide an additional storey.

Documents

APPLICATIONFORMREDACTED
Application Form
Not yet archived · Original link
EXISTING FLOOR PLANS & ELEVATIONS
Plans/Drawings
Not yet archived · Original link
GREEN INFRASTRUCTURE STATEMENT
Supporting Documents
Not yet archived · Original link
Amended Plans
Archived · Original link
Plans/Drawings
Archived · Original link
Site Location Plan
Archived · Original link

Have your say

Your comment matters. Councils must consider every representation that raises material planning considerations.

Write a comment