← Cardiff Council

Status

Registered House extension
Received
Last month
New homes
0

Full proposal

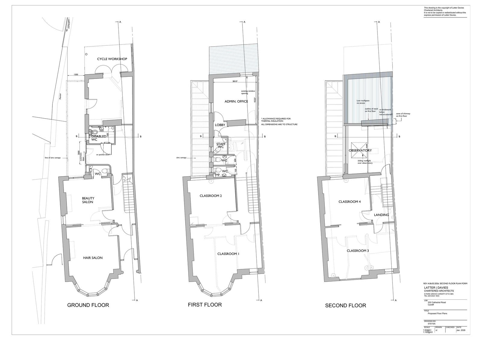
Side dormer roof extension, erection of railings and gate over front boundary walls, replacement of windows in existing openings at the front elevation, further external alterations to other elevations, new canopy alongside elevation, removal of rear & side boundary wall and erection of gate to rear alleyway. Demolition of existing garage and rear lean-to extension.

Documents

APPLICATIONFORMREDACTED
Application Form
Not yet archived · Original link
DESIGN AND ACCESS STATEMENT
Supporting Documents
Not yet archived · Original link
EXISTING FLOOR PLANS
Plans/Drawings
Not yet archived · Original link
EXISTING FRONT & REAR ELEVATIONS
Plans/Drawings
Not yet archived · Original link
EXISTING SECTION A-A
Plans/Drawings
Not yet archived · Original link
EXISTING SECTION B-B
Plans/Drawings
Not yet archived · Original link
EXISTING SIDE ELEVATION
Plans/Drawings
Not yet archived · Original link
Plans/Drawings
Archived · Original link
Plans/Drawings
Archived · Original link
PROPOSED FRONT & REAR ELEVATIONS
Plans/Drawings
Not yet archived · Original link
PROPOSED SECTION A-A
Plans/Drawings
Not yet archived · Original link
PROPOSED SECTION B-B
Plans/Drawings
Not yet archived · Original link
PROPOSED SIDE ELEVATION
Plans/Drawings
Not yet archived · Original link
Plans/Drawings
Archived · Original link
Site Location Plan
Archived · Original link
Site Location Plan
Archived · Original link

Have your say

Your comment matters. Councils must consider every representation that raises material planning considerations.

Write a comment