← Carlisle City Council (Legacy)

Status

Registered Change of use
Received
Last month
New homes
0

Full proposal

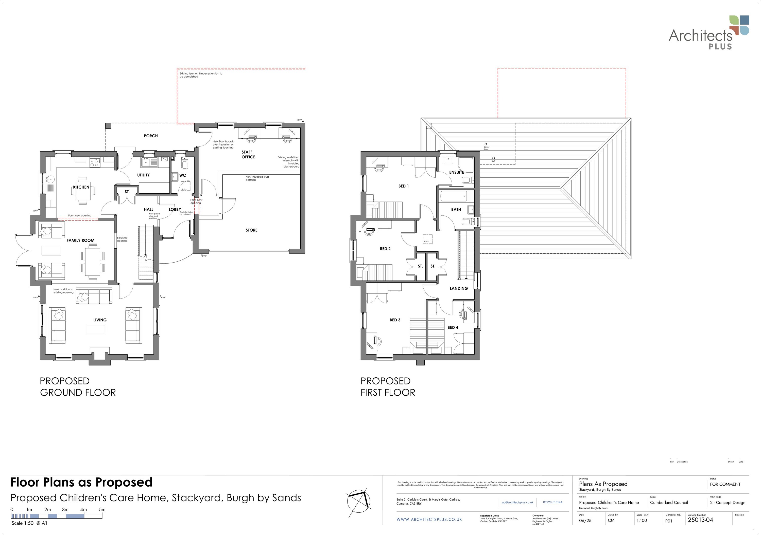
Change Of Use From C3 (Residential) To C2 (Residential Children's Home)

Documents

02 existing plans and elevations 25022026
Drawing
Not yet archived · Original link
Application form 03032026
Application Form
Not yet archived · Original link
Site notice 06.03.26
Other
Not yet archived · Original link
Supporting statement 03032026
BackGround Papers
Not yet archived · Original link

Have your say

Your comment matters. Councils must consider every representation that raises material planning considerations.

Write a comment