← Castle Point Borough Council

Status

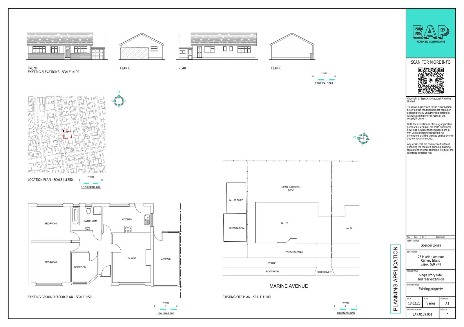
Registered House extension
Received
Last month
New homes
0

Full proposal

Construct single storey side/rear extension and partial garage conversion including raising garage roof

Documents

Application Form
Archived · Original link
Drawing
Archived · Original link
Drawing
Archived · Original link

Have your say

Your comment matters. Councils must consider every representation that raises material planning considerations.

Write a comment