← Castle Point Borough Council

Status

Registered House extension
Received
Last month
New homes
0

Full proposal

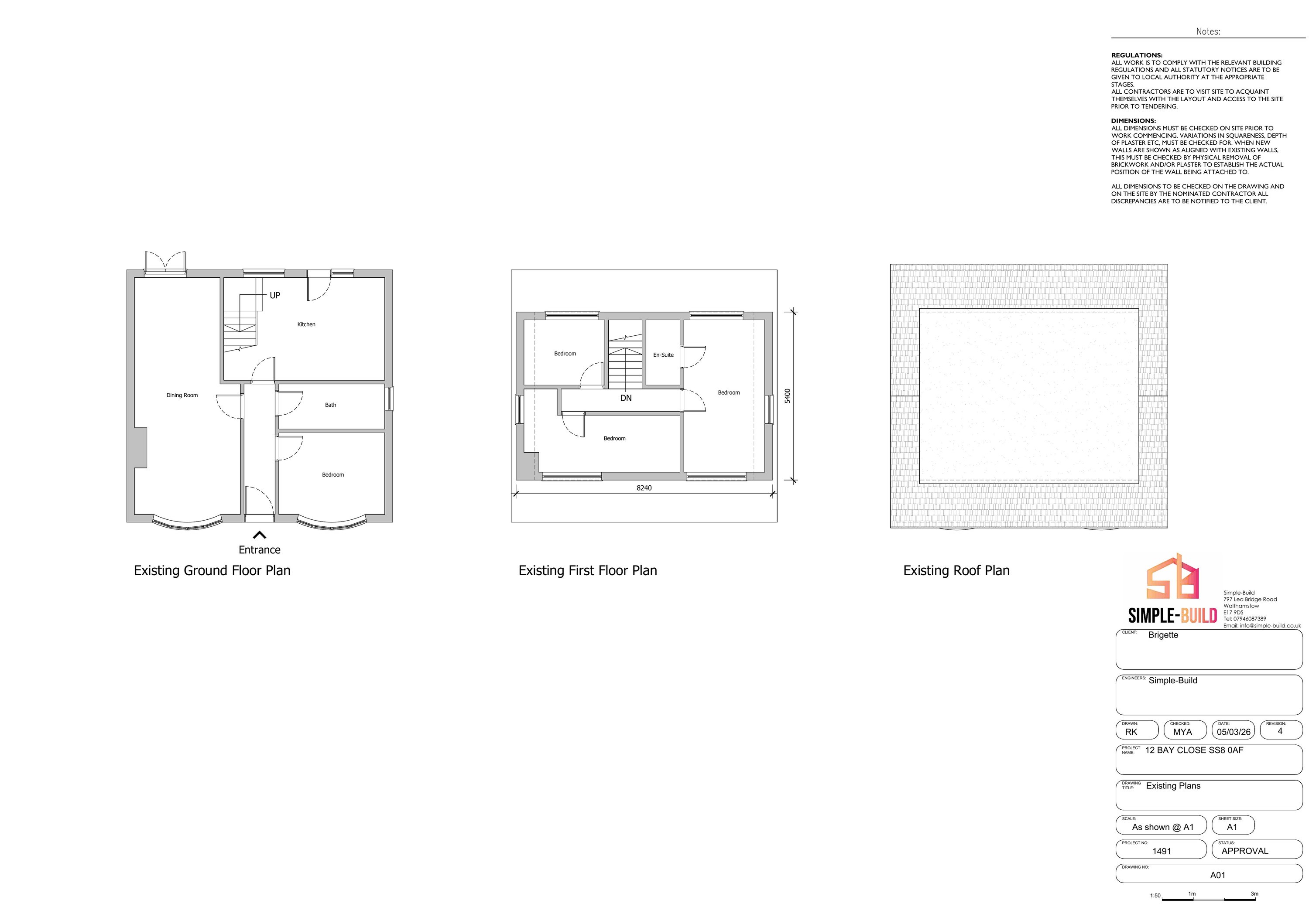
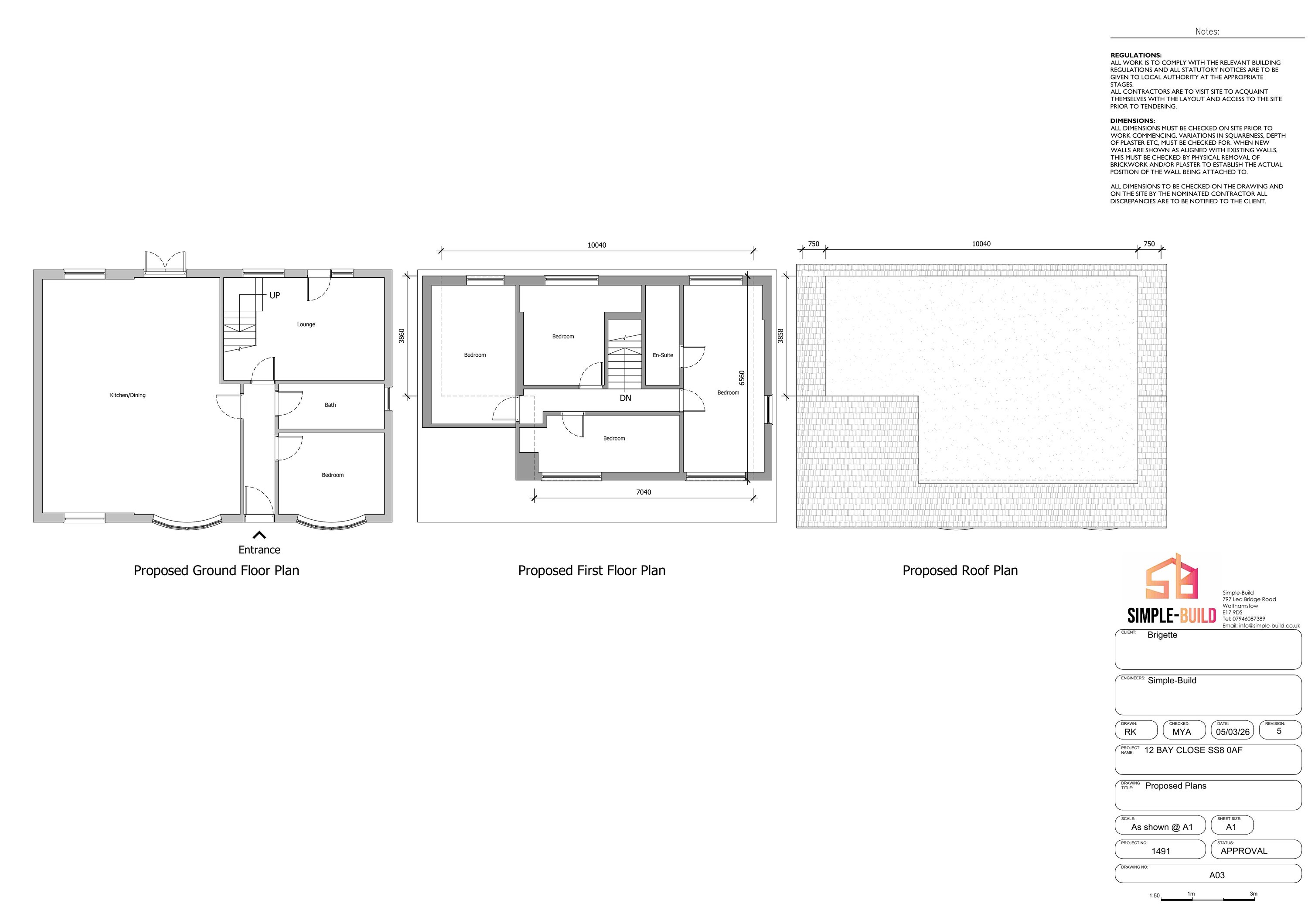
Construct single storey side extension and rear dormer extension

Documents

Application Form
Archived · Original link
CIL Document
Archived · Original link
Drawing
Archived · Original link
Drawing
Archived · Original link
Drawing
Archived · Original link
Supporting Documents
Archived · Original link
Drawing
Archived · Original link
Drawing
Archived · Original link
Drawing
Archived · Original link
Drawing
Archived · Original link

Have your say

Your comment matters. Councils must consider every representation that raises material planning considerations.

Write a comment