← Castle Point Borough Council
26/0127/FUL
Castle Point Borough Council
Status
Registered
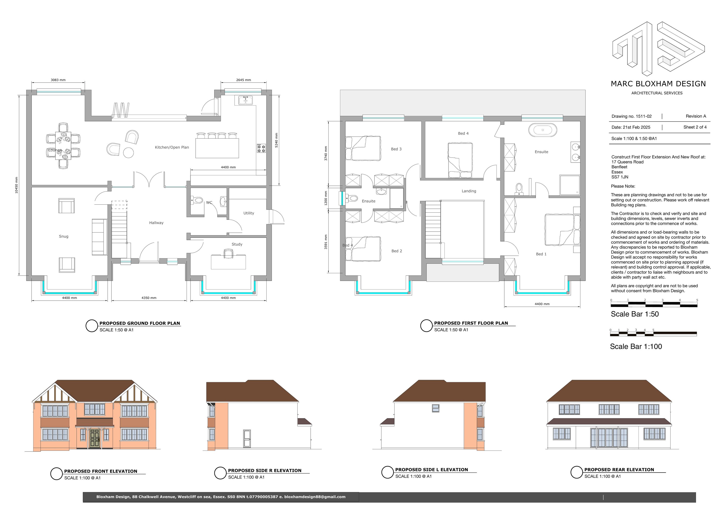
House extension
Received
Last month
New homes
0
Full proposal
Extensions and alterations to bungalow to form a house
Documents
Have your say
Your comment matters. Councils must consider every representation that raises material planning considerations.