← Castle Point Borough Council

Status

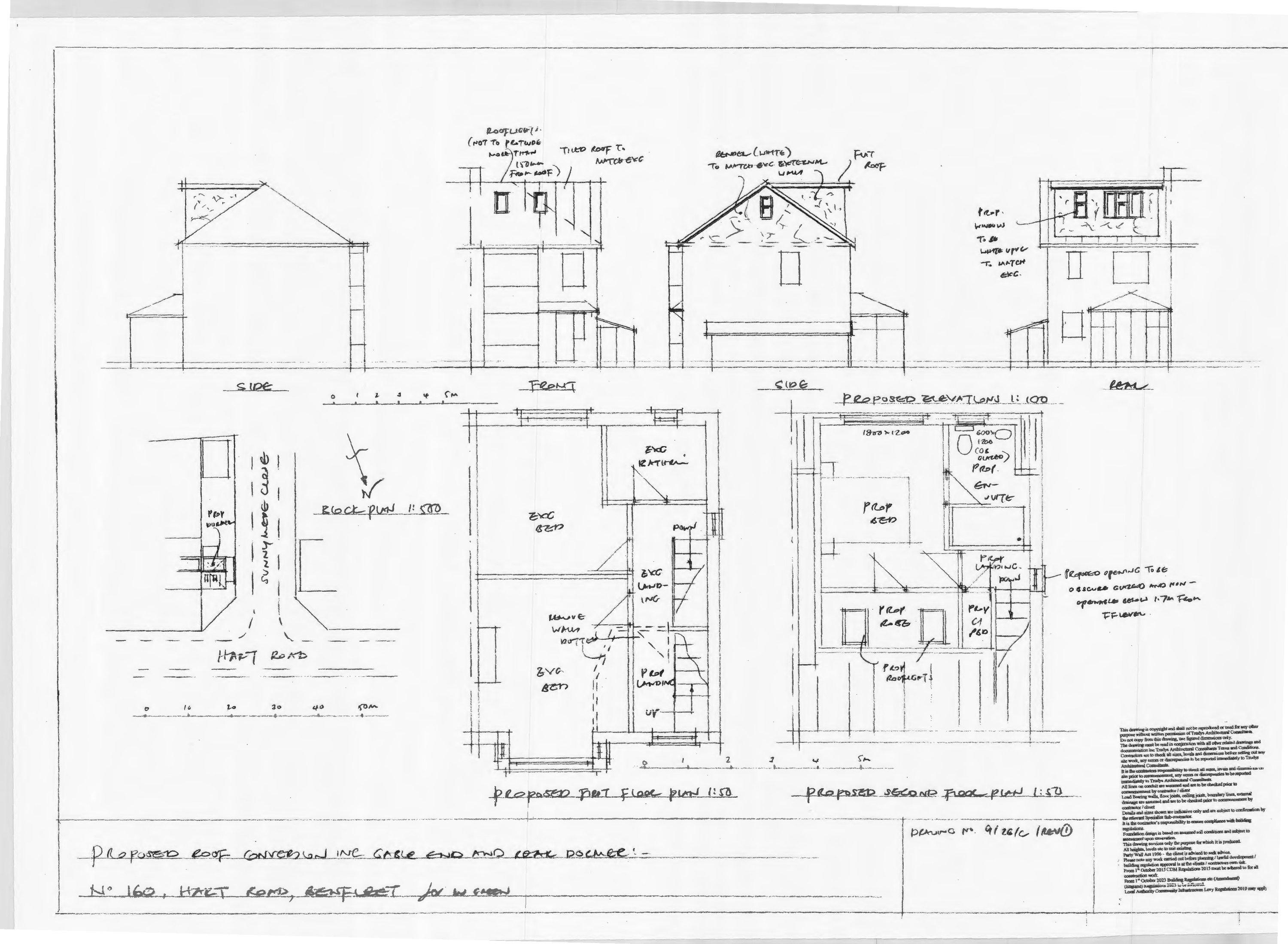
Registered House extension
Received
Last month
New homes
0

Full proposal

Proposed hip to gable and rear dormer to form roof conversion

Documents

Application Form
Archived · Original link
Drawing
Archived · Original link
Drawing
Archived · Original link
Drawing
Archived · Original link

Have your say

Your comment matters. Councils must consider every representation that raises material planning considerations.

Write a comment