← Back to Ceredigion County Council
Application
A250510
Ceredigion County Council · COUNCIL_DIRECT
Status
Unknown status
House extension
Received
n/a
New dwellings
0
What you can do
Take Action
Make your voice heard. Authorities need to hear from people who support new homes.
Summary
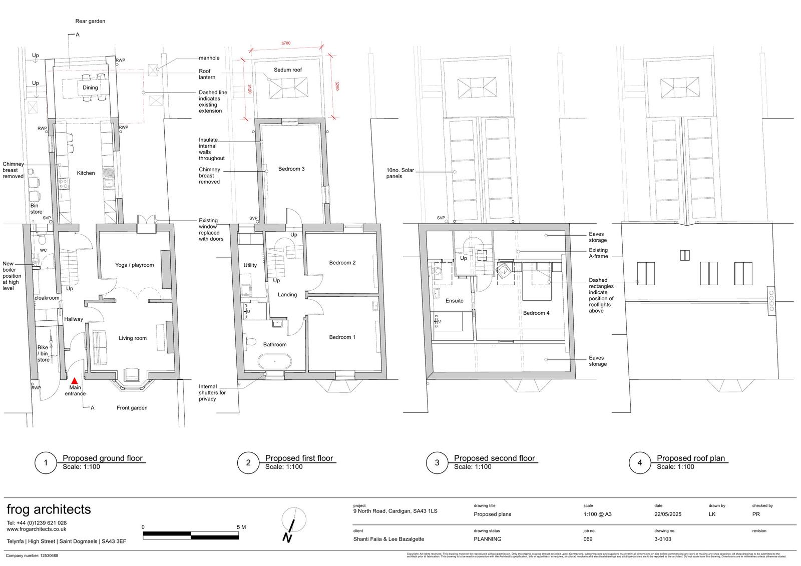
Replace single-storey extension, add roof solar panels and internal/external repairs.
Full Proposal
‘Demolition of existing single storey extension and replacement with new single storey extension with solar panels on the roof. Internal insulation in rear outshut, repair of windows, minor interior and exterior...
Detail pages
- View live detail on council site
- No archived detail page available.
Documents
069_3-0101 Location and block plans.pdf
Plans / Drawings
Not downloaded
· Council link
069_3-0102 Existing Plans.pdf
Plans / Drawings
Not downloaded
· Council link
069_3-0301 Existing Section and Elevations.pdf
Plans / Drawings
Not downloaded
· Council link
ApplicationFormRedacted.pdf
Application Form
Not downloaded
· Council link
Heritage Impact Assessment
Supporting Documents
Not downloaded
· Council link
Heritage Impact Statement Overview
Supporting Documents
Not downloaded
· Council link
Proposed Elevations
Plans / Drawings
Not downloaded
· Council link
Proposed Floor Plans
Plans / Drawings
Archived copy
· Council link
Section and Drainage
Plans / Drawings
Not downloaded
· Council link
SUPERSEDED 069 9101 Heritage Impact Assessment_compressed.pdf
Supporting Documents
Not downloaded
· Council link
SUPERSEDED 069 9102 Heritage Impact Statement schedule.pdf
Supporting Documents
Not downloaded
· Council link
SUPERSEDED 069_3-0103 Proposed Plans.pdf
Plans / Drawings
Archived copy
· Council link
SUPERSEDED 069_3-0302 Proposed Section and Elevations.pdf
Plans / Drawings
Not downloaded
· Council link