← Charnwood Borough Council

Status

Pending House extension
Received
12 Jan 2026
New homes
0

Full proposal

Demolition of garage. Increase roof height to create first floor with two storey extensions to north, south, and east elevation, with PV solar panels to south elevation and air sourced heat pump.

Documents

Application form
Archived · Original link
Supporting information
Archived · Original link
Comments - Ecology
Archived · Original link
Comemnts - Tree Officer
Archived · Original link
Comments - Parish Council
Archived · Original link
Ecology report
Archived · Original link
Block plan
Archived · Original link
Elevation plan
Archived · Original link
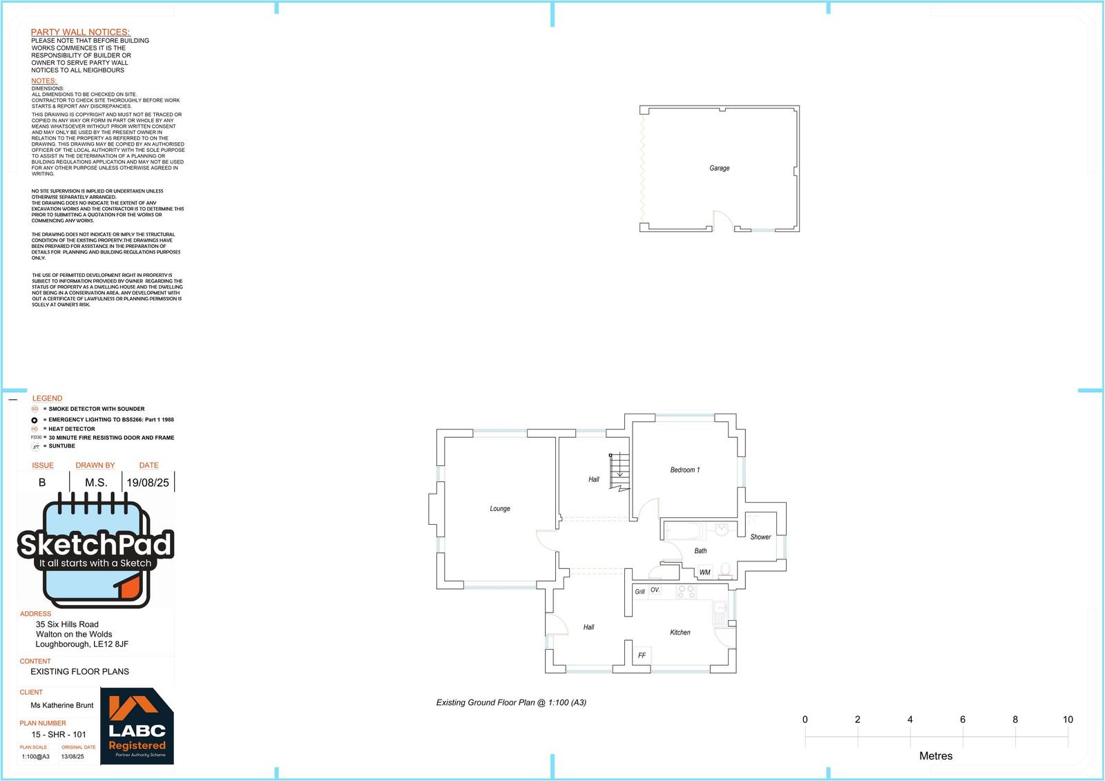
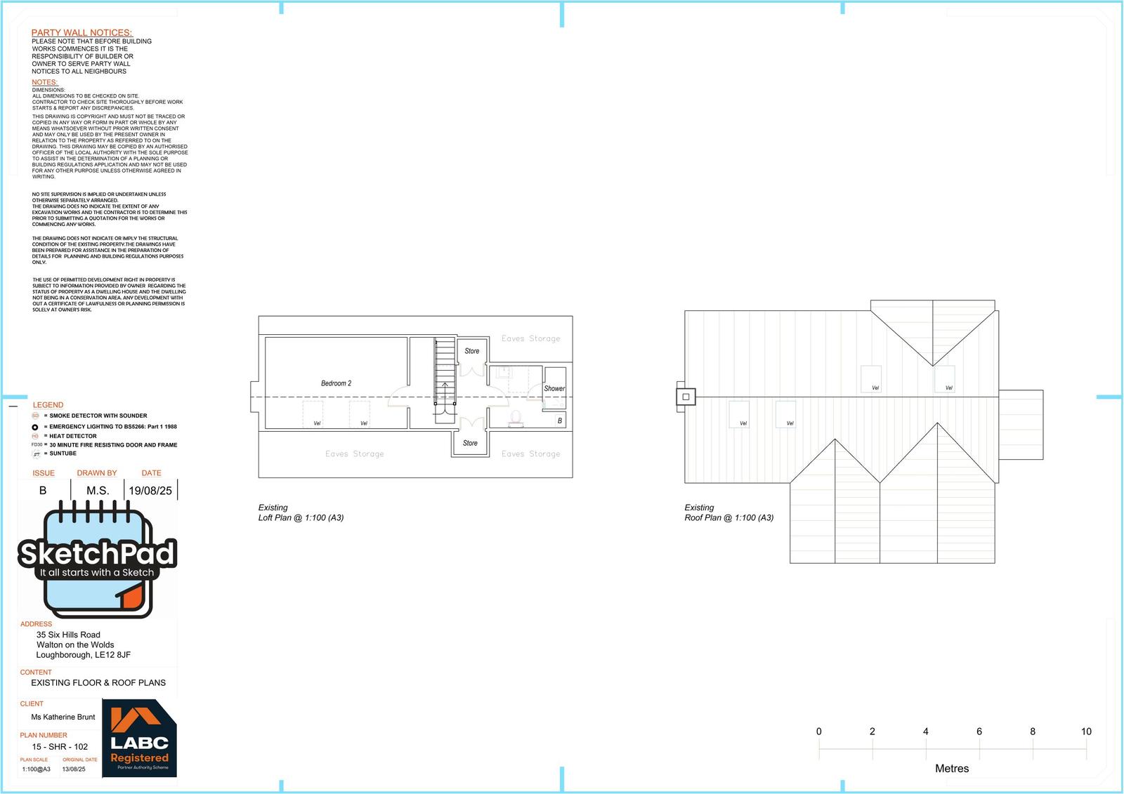
Floor plan
Archived · Original link
Application plans
Archived · Original link
Supporting information
Archived · Original link
Supporting information
Archived · Original link
Press advertisement
Archived · Original link
Block plan
Archived · Original link
Site location plan
Archived · Original link
Superseded plans
Archived · Original link
Superseded plans
Archived · Original link
Superseded plans
Archived · Original link
Superseded plans
Archived · Original link
Supporting information
Archived · Original link
Supporting information
Archived · Original link

Have your say

Your comment matters. Councils must consider every representation that raises material planning considerations.

Write a comment