← Charnwood Borough Council

Status

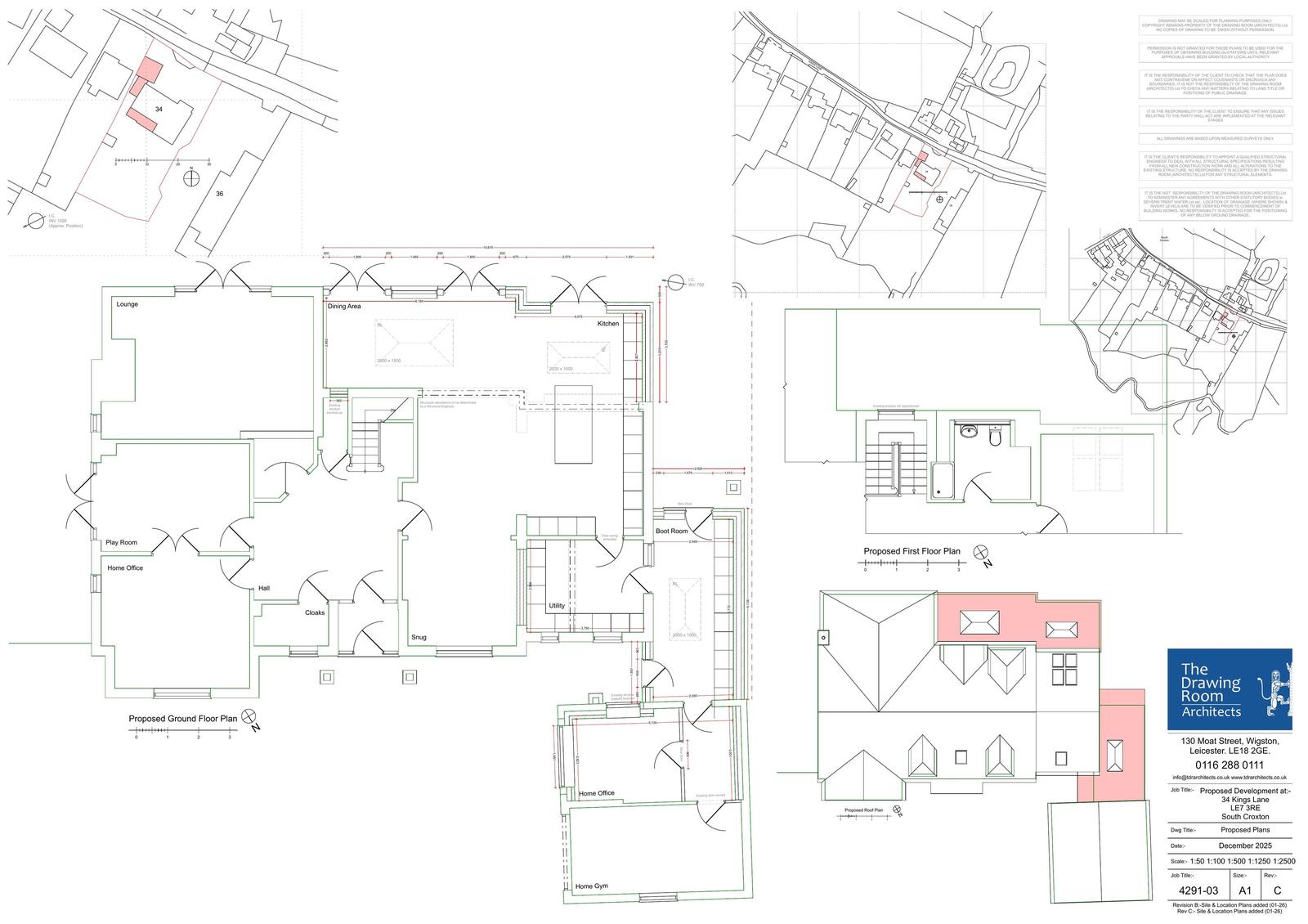
Pending House extension
Received
19 Jan 2026
New homes
0

Full proposal

Single Storey rear and side extensions and garage conversion.

Have your say

Your comment matters. Councils must consider every representation that raises material planning considerations.

Write a comment