← Charnwood Borough Council

Status

Pending House extension
Received
19 Jan 2026
New homes
0

Full proposal

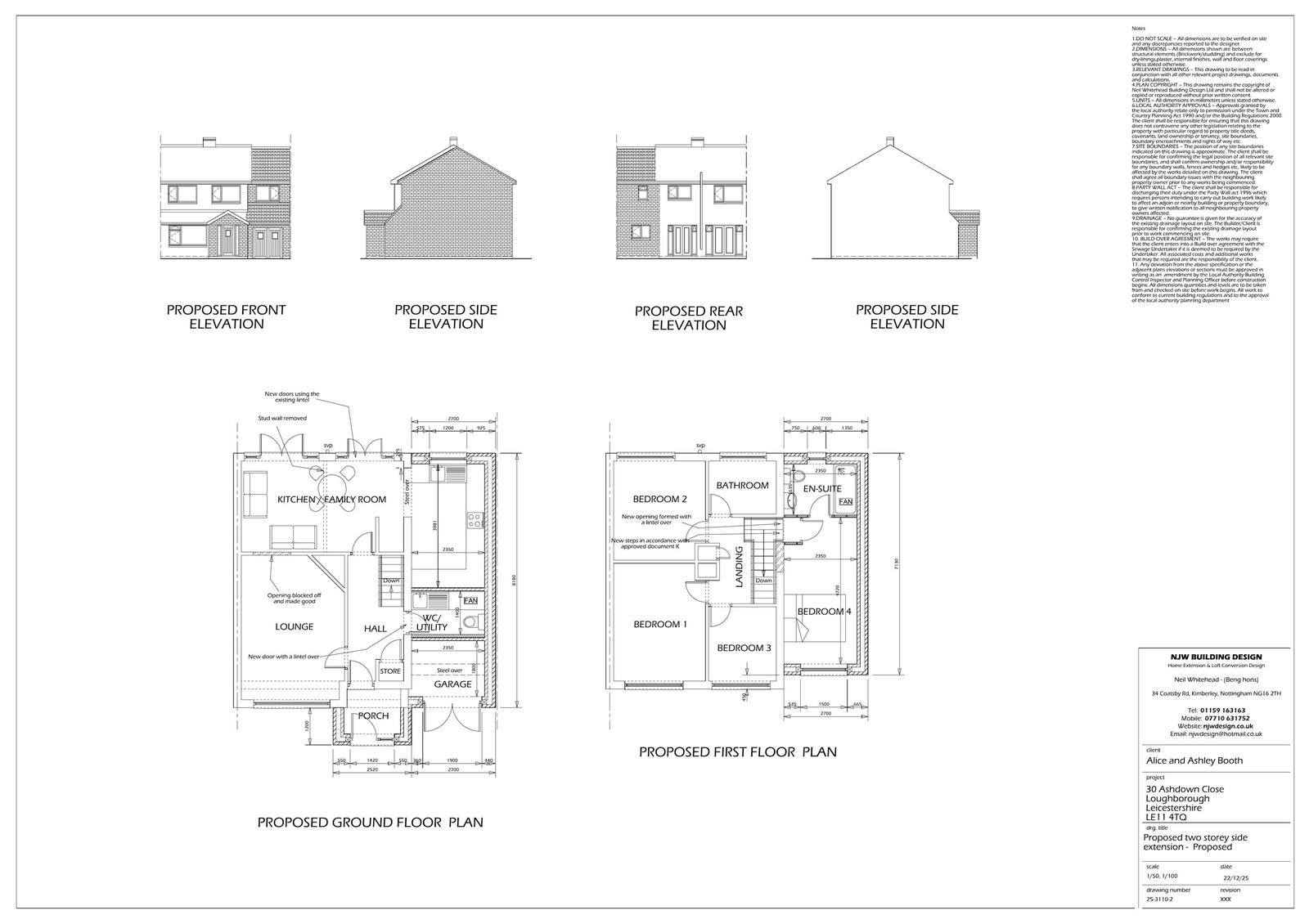
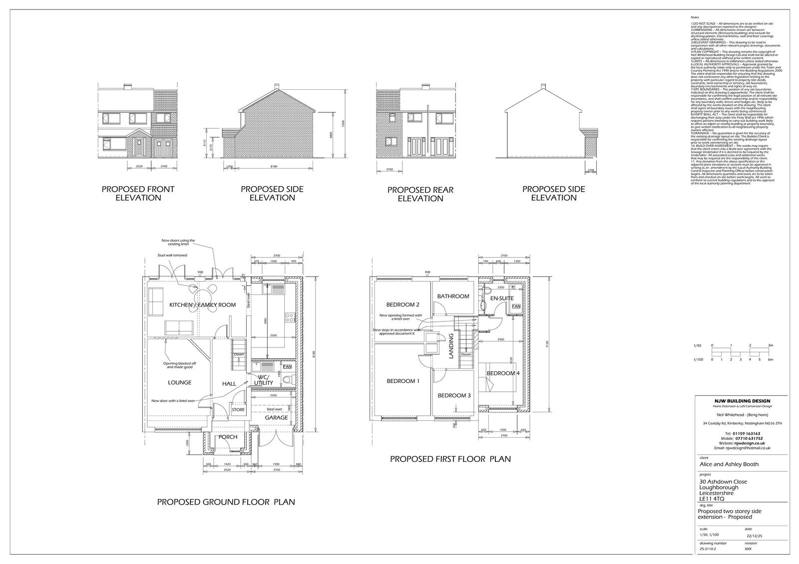
Erection of two storey side extension and front porch

Documents

Application plans - amended
Archived · Original link
Application form
Archived · Original link
Flood risk assessment
Archived · Original link
Site location plan
Archived · Original link
Site location plan
Archived · Original link

Have your say

Your comment matters. Councils must consider every representation that raises material planning considerations.

Write a comment