P/26/0128/2
Charnwood Borough Council
Status
Pending
House extension
Received
23 Jan 2026
New homes
0
Full proposal
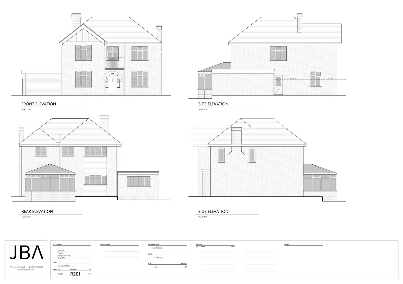
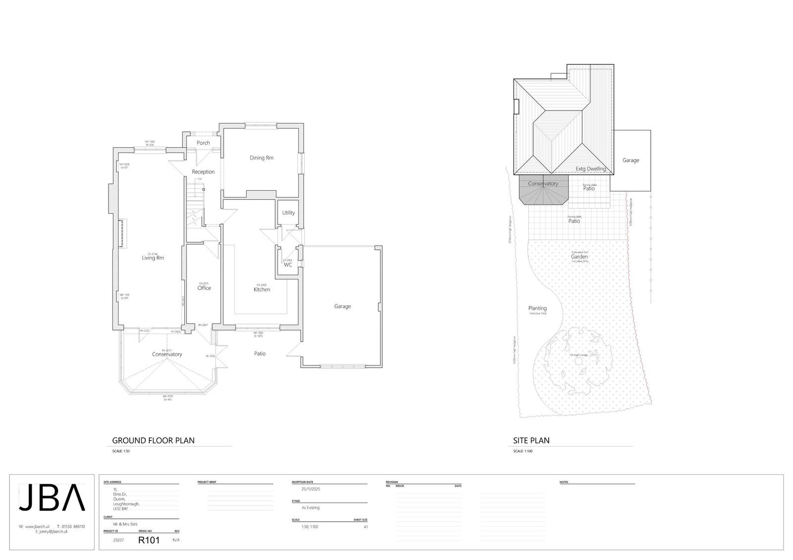
Erection of single storey rear extension, partial garage conversion to habitable space and associated works.
Documents
Application plans - amended
Archived
· Original link
Comments - Neighbour
Archived
· Original link
Superseded plans
Archived
· Original link
Have your say
Your comment matters. Councils must consider every representation that raises material planning considerations.