← Charnwood Borough Council

Status

Pending House extension
Received
Last month
New homes
0

Full proposal

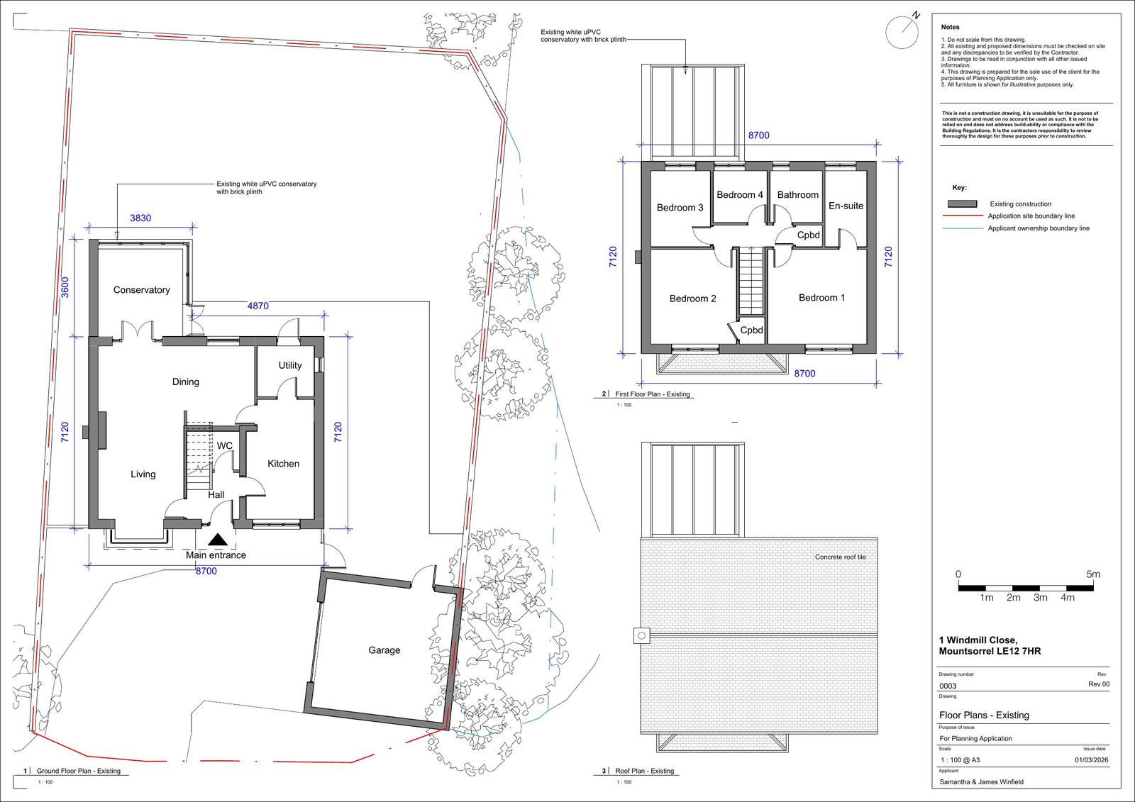
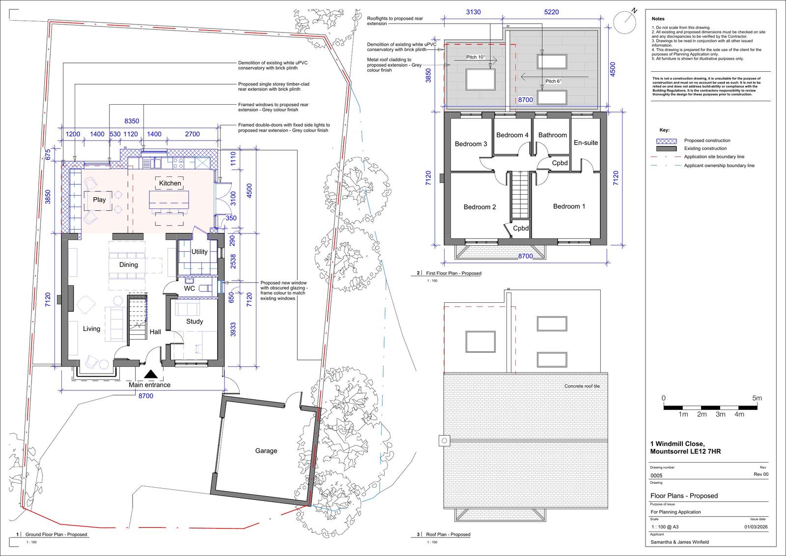
Erection of single storey rear extension

Documents

Elevation plan
Archived · Original link
Block plan
Archived · Original link
Elevation plan
Archived · Original link
Application plans
Archived · Original link
Block plan
Archived · Original link
Site location plan
Archived · Original link

Have your say

Your comment matters. Councils must consider every representation that raises material planning considerations.

Write a comment