← Charnwood Borough Council

Status

Pending House extension
Received
Last month
New homes
0

Full proposal

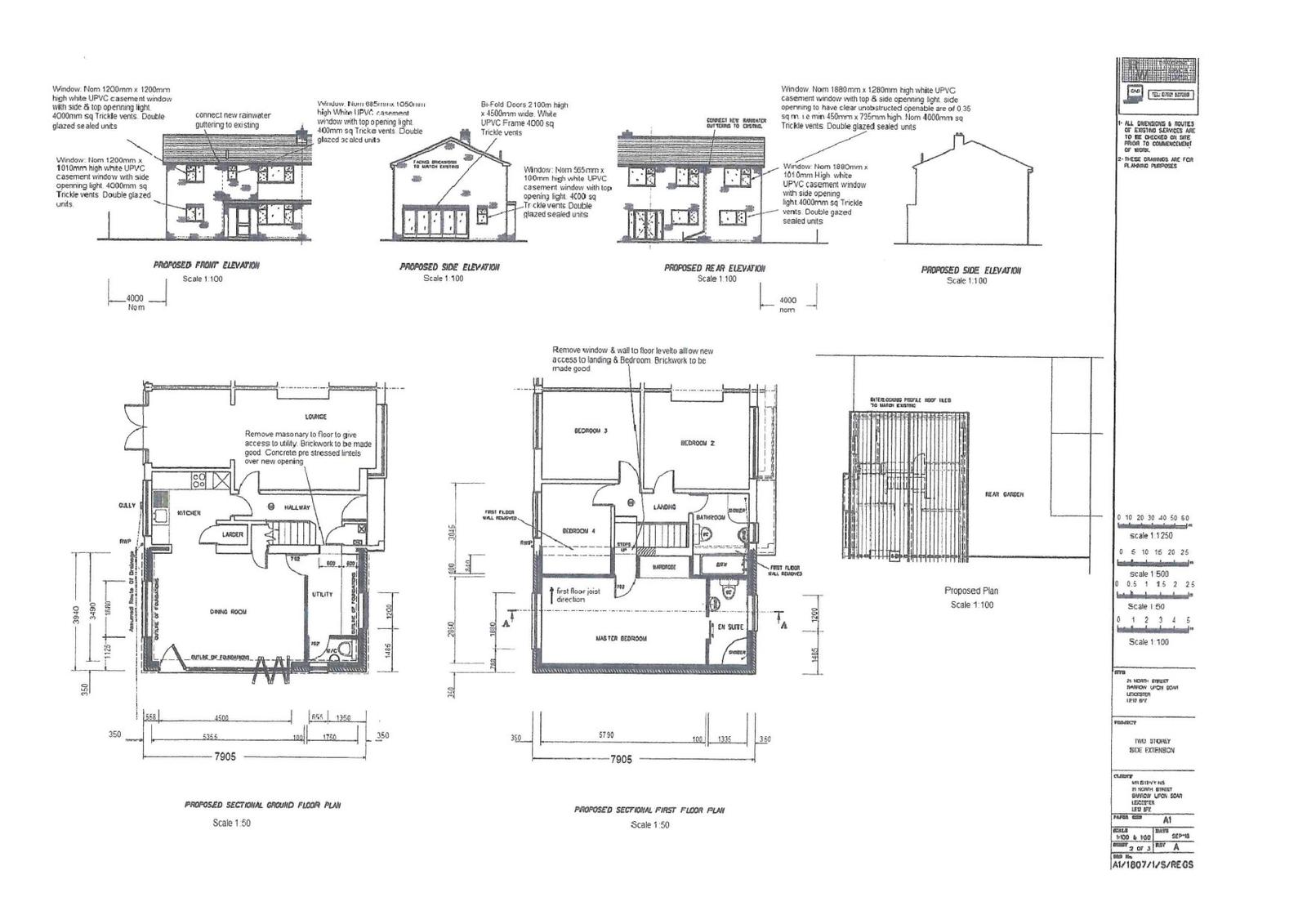
Erection of two storey side extension

Documents

Block plan
Archived · Original link
Comments - Environmental Health
Archived · Original link
Application form
Archived · Original link
Site location plan
Archived · Original link

Have your say

Your comment matters. Councils must consider every representation that raises material planning considerations.

Write a comment