← Charnwood Borough Council

Status

Pending House extension
Received
Last month
New homes
0

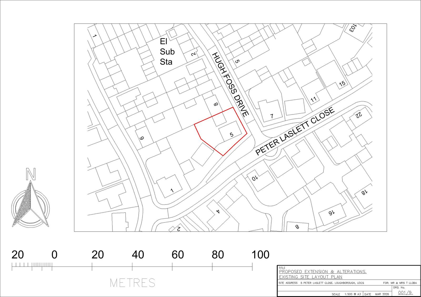
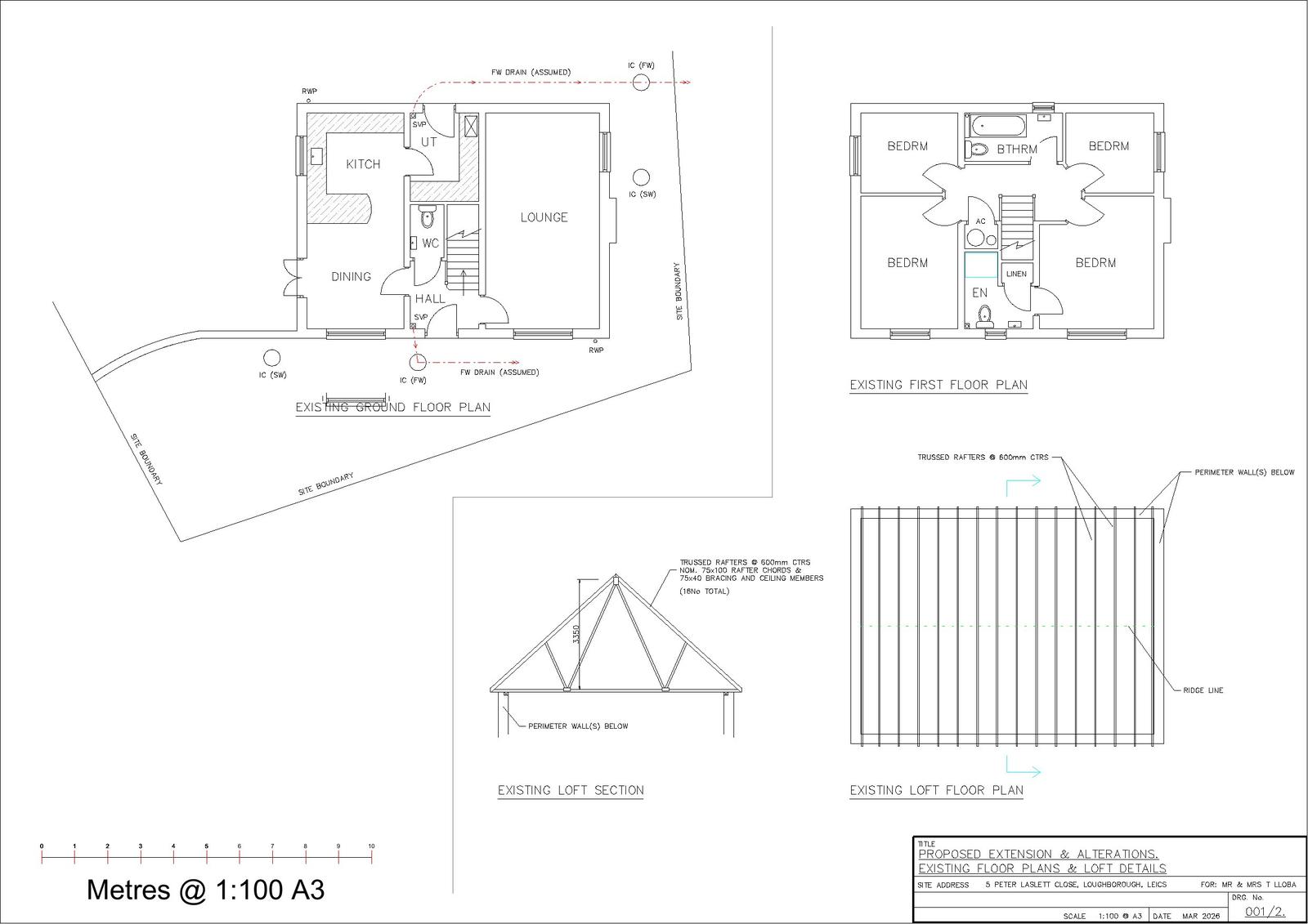
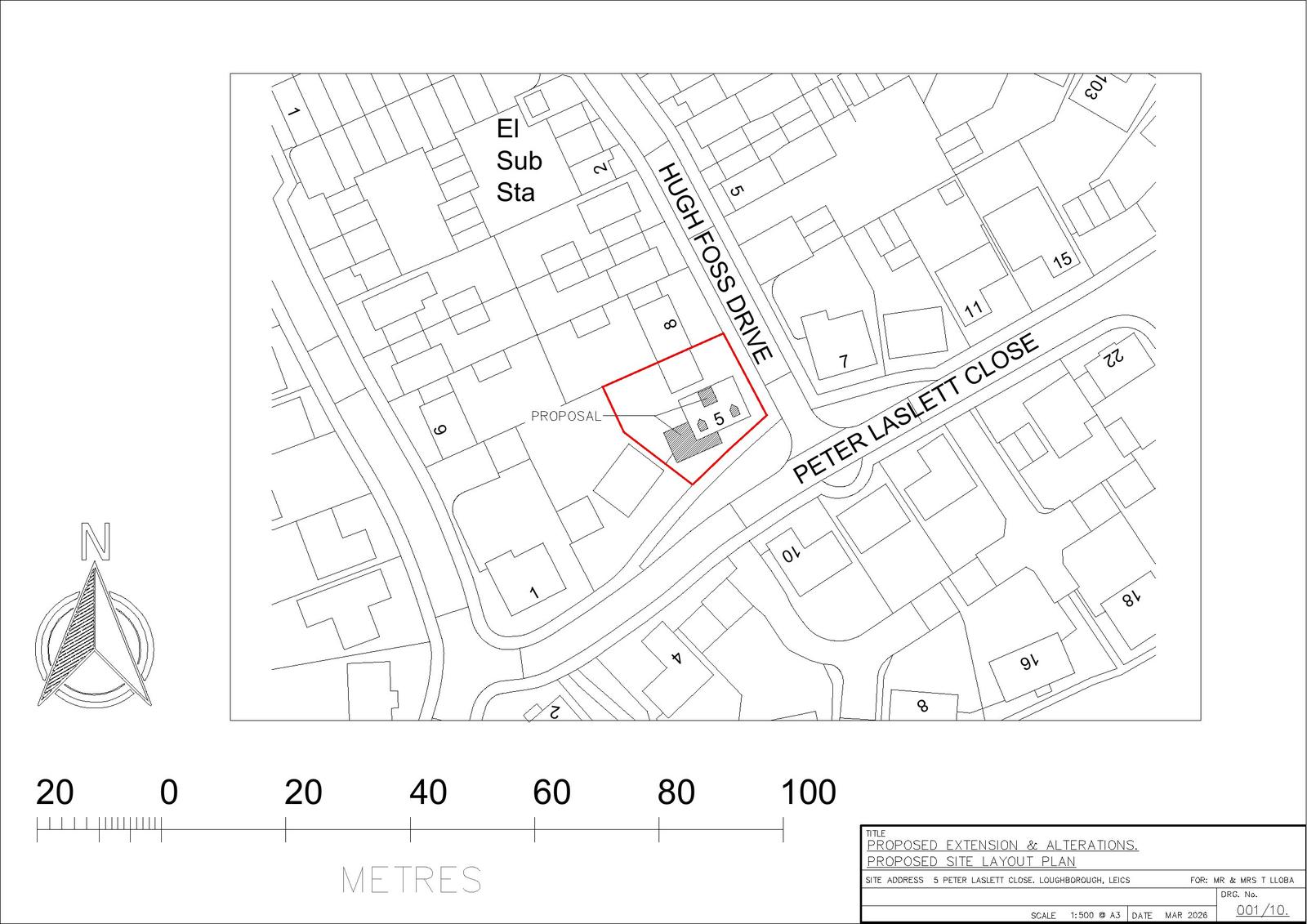
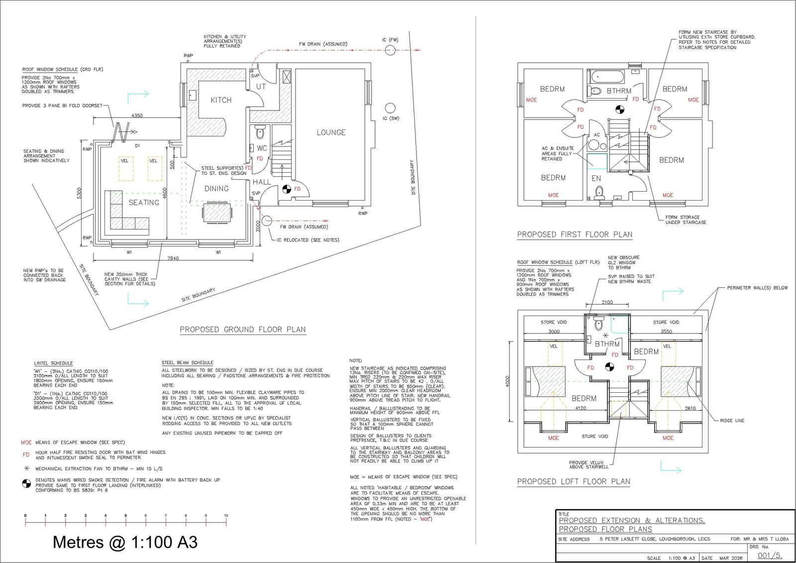
Full proposal

Erection of single storey front and side extension and loft conversion including insertion of dormers to front and rear.

Have your say

Your comment matters. Councils must consider every representation that raises material planning considerations.

Write a comment