← Cheltenham Borough Council

Status

Permit House extension
Received
20 Dec 2024
New homes
0

Full proposal

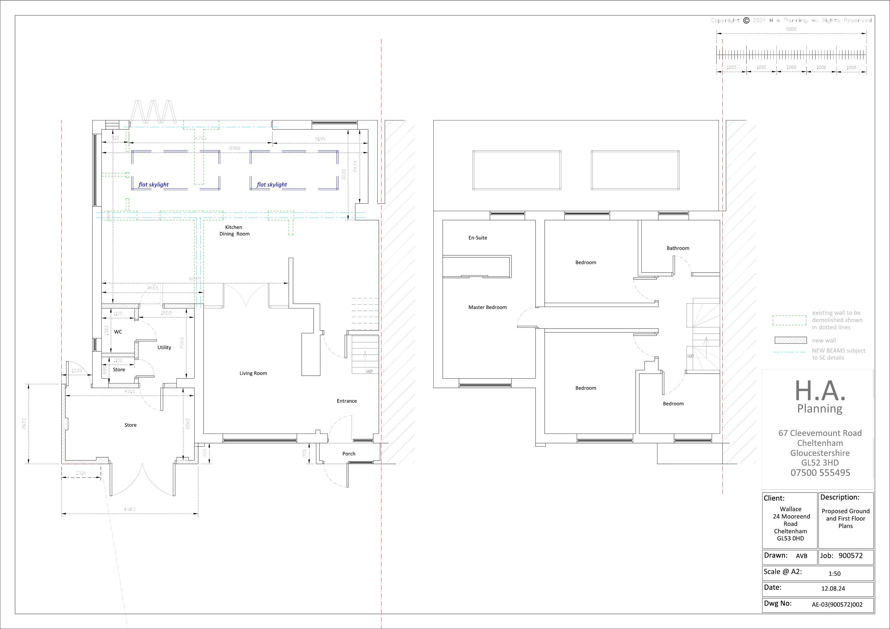
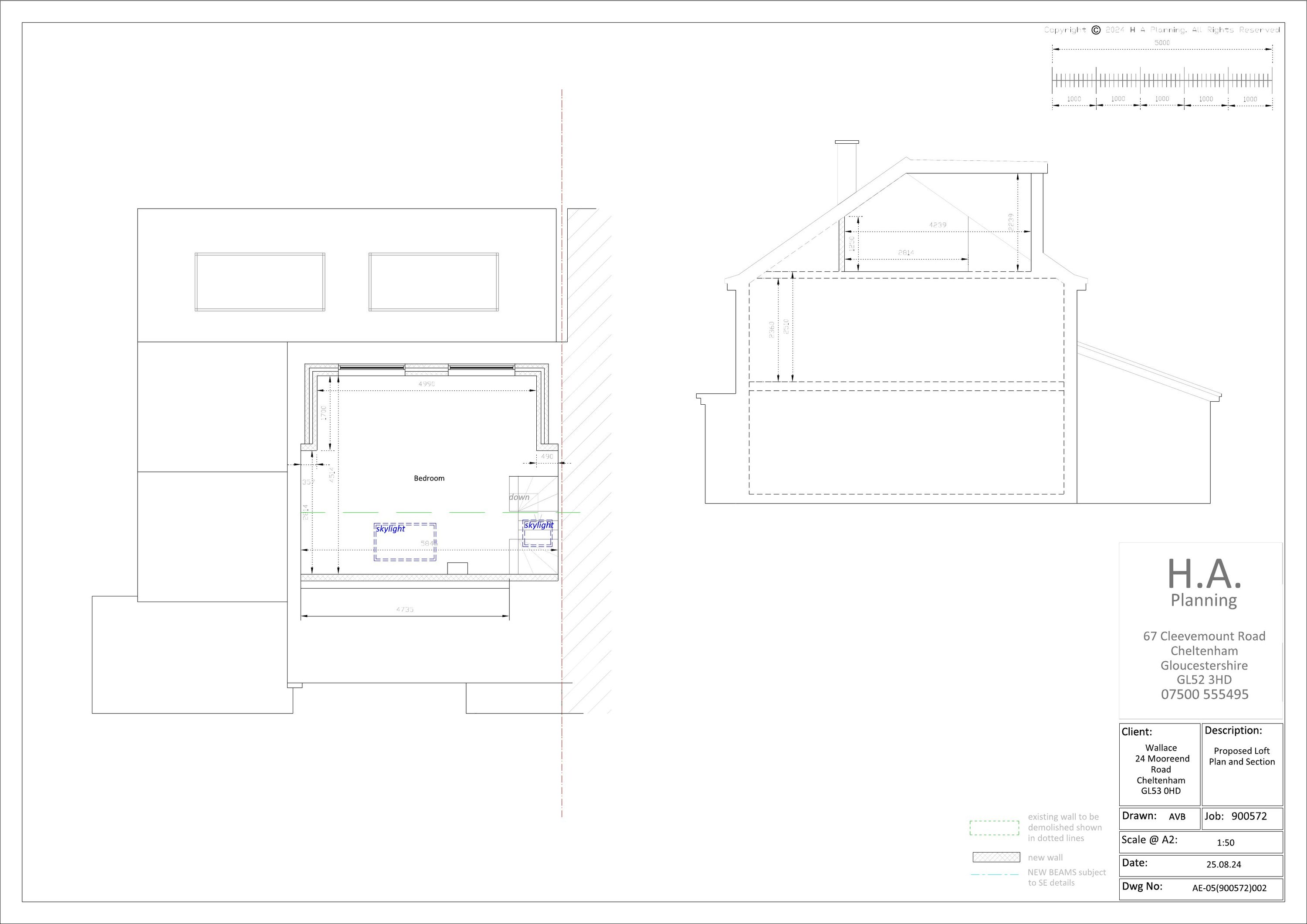
Single storey rear and front extensions with dormer loft conversion and internal alterations. (Revised Application of 24/01514/FUL).

Documents

Application Form
Archived · Original link
Decision Notice
Archived · Original link
Drawing
Archived · Original link
Drawing
Archived · Original link
Report
Archived · Original link
Approved Drawing
Archived · Original link
Approved Drawing
Archived · Original link
Approved Drawing
Archived · Original link
Approved Drawing
Archived · Original link
Sustainability statement
BackGround Papers
Not yet archived · Original link

Have your say

Your comment matters. Councils must consider every representation that raises material planning considerations.

Write a comment