← Back to Cheltenham Borough Council

Status

Grant
Received 06 Jan 2025
New dwellings n/a

What you can do

Take Action

Make your voice heard. Authorities need to hear from people who support new homes.

Summary

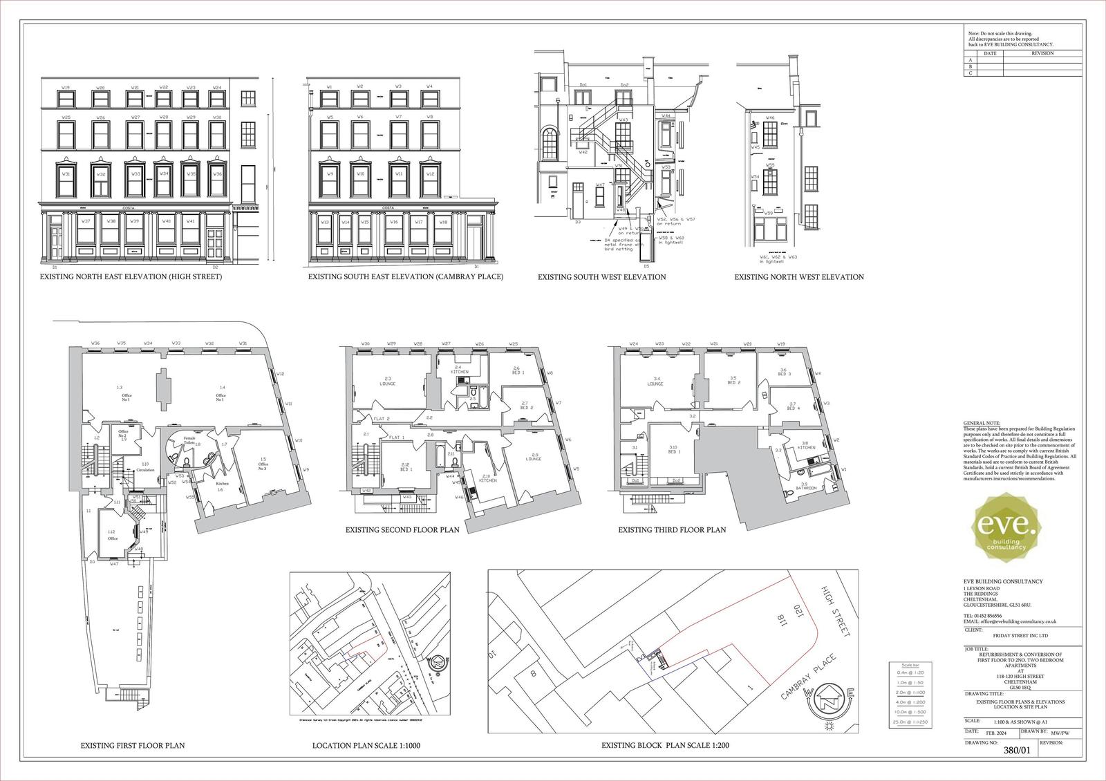
Create two two-bedroom apartments on first floor and refurbish common parts.

Full Proposal

Creation of 2no. two bed apartments on the first floor, refurbishment of common parts. (Revised application of 24/00437/LBC).

Detail pages

Documents

Application form
Application Form
Not downloaded · Council link
Community infrastructure levy (cil) - form 1: cil additional information
BackGround Papers
Not downloaded · Council link
Construction details refuse & recycling area
Approved Drawing
Not downloaded · Council link
Covering letter
Correspondence
Not downloaded · Council link
Decision notice
Decision Notice
Not downloaded · Council link
Existing layouts, elevations and floor plans
Drawing
Not downloaded · Council link
Floor plans showing heritage assets and alterations to existing structure
Drawing
Not downloaded · Council link
Officer report
Report
Not downloaded · Council link
Proposed doors
Approved Drawing
Not downloaded · Council link
Proposed layouts, elevations and floor plans
Superseded Documents
Not downloaded · Council link
Proposed layouts, elevations and floor plans
Approved Drawing
Not downloaded · Council link