← Cheltenham Borough Council

Status

Permit House extension
Received
07 Jan 2025
New homes
0

Full proposal

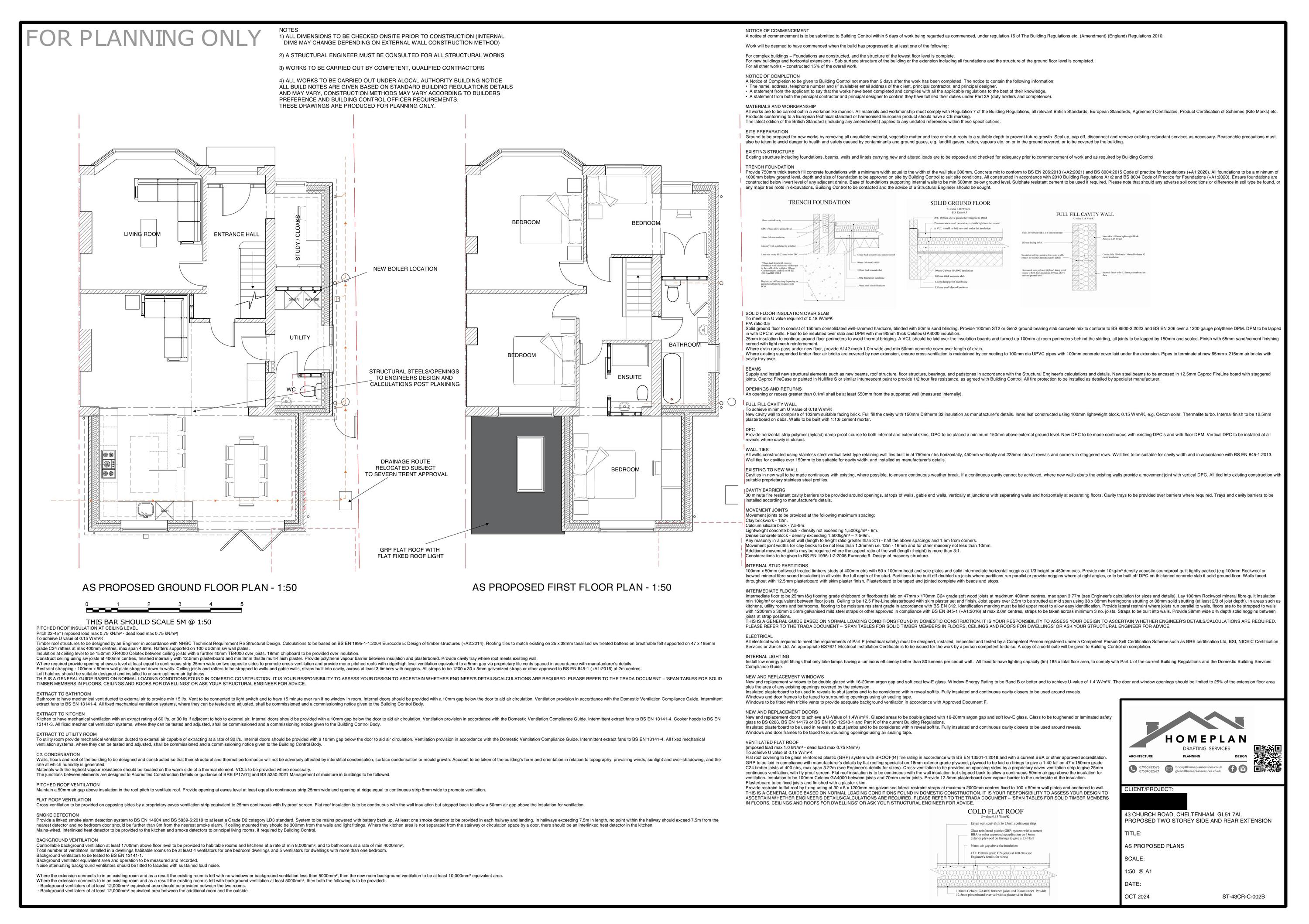
Proposed demolition of garage, proposed two storey side and rear extension with internal layout alterations.

Documents

Application Form
Archived · Original link
Consultee Comment
Archived · Original link
Decision Notice
Archived · Original link
Report
Archived · Original link
Approved Drawing
Archived · Original link

Have your say

Your comment matters. Councils must consider every representation that raises material planning considerations.

Write a comment