← Cheltenham Borough Council

Status

Permit House extension
Received
13 Jan 2025
New homes
0

Full proposal

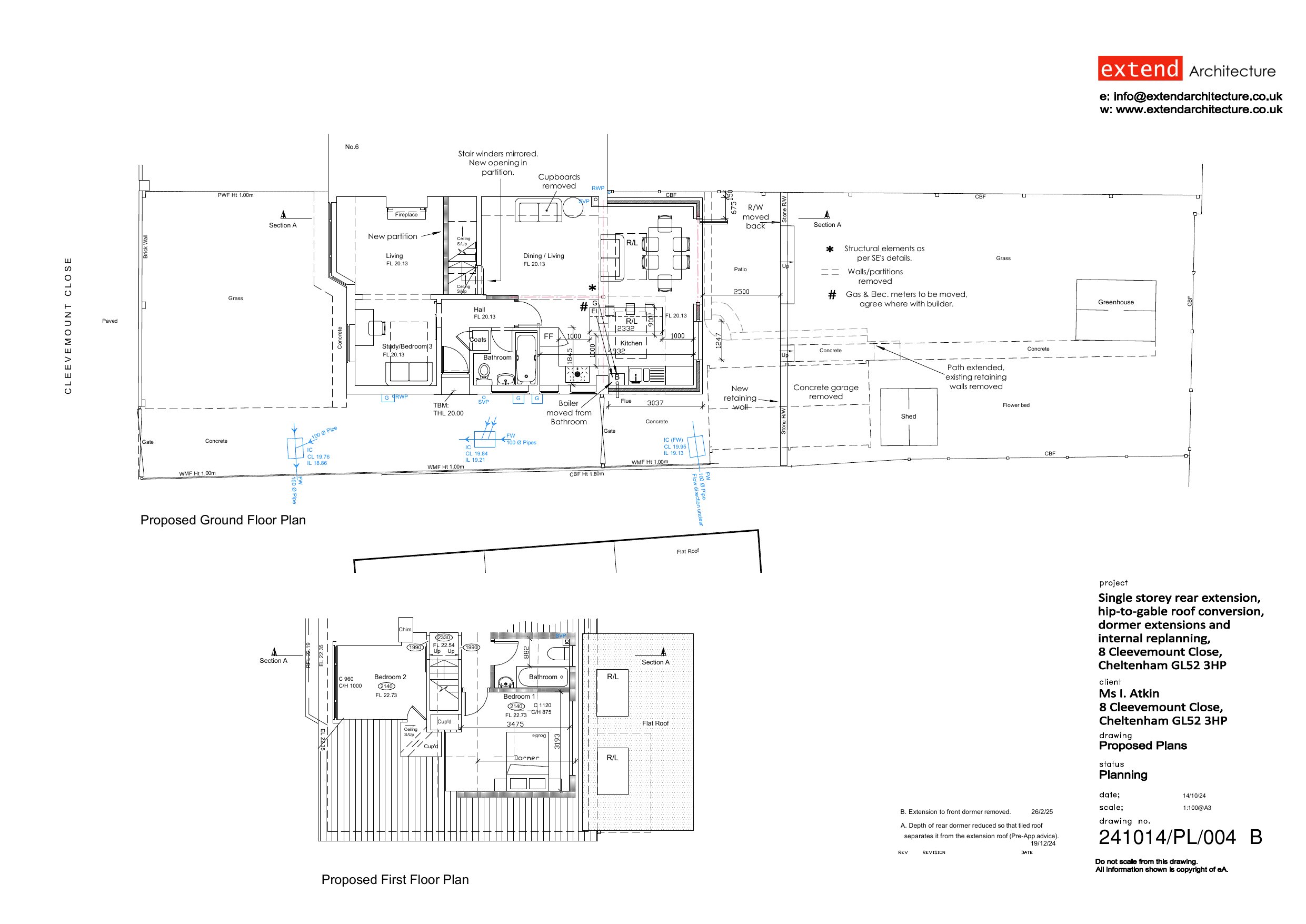
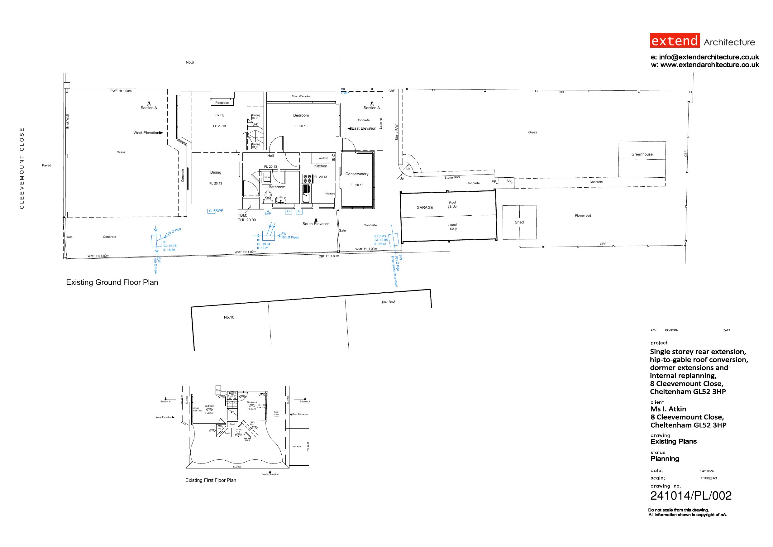
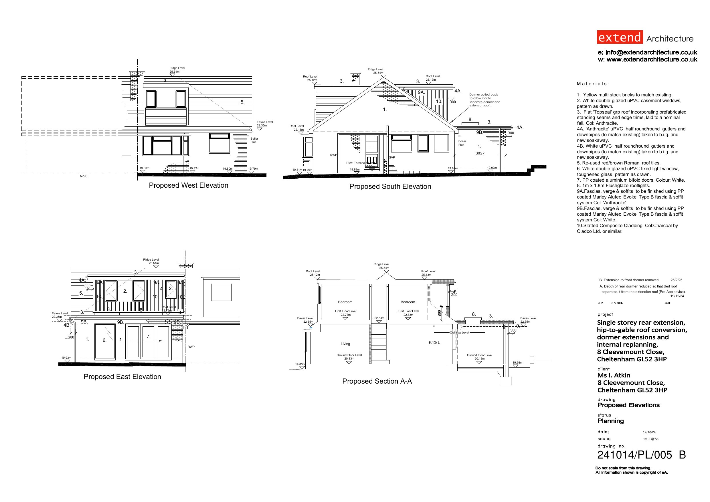
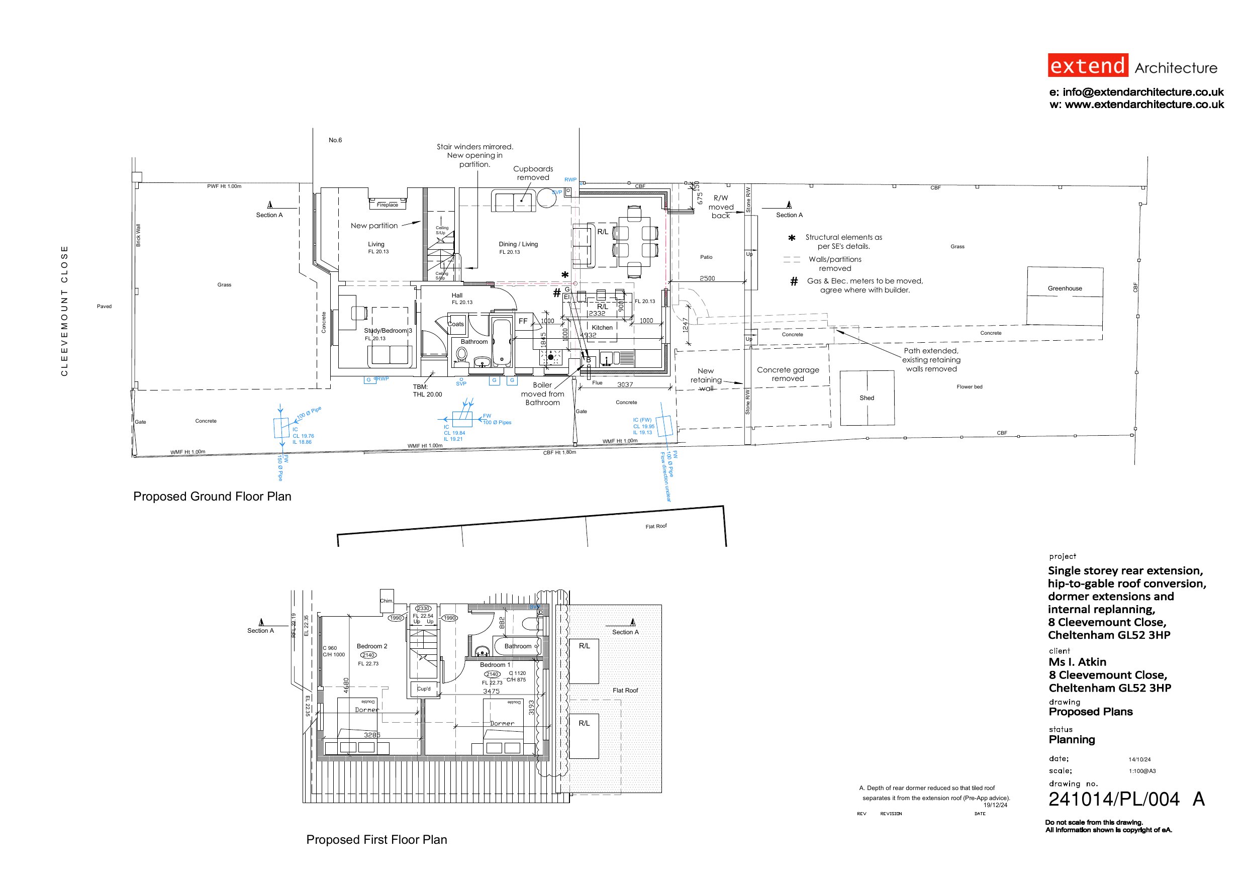
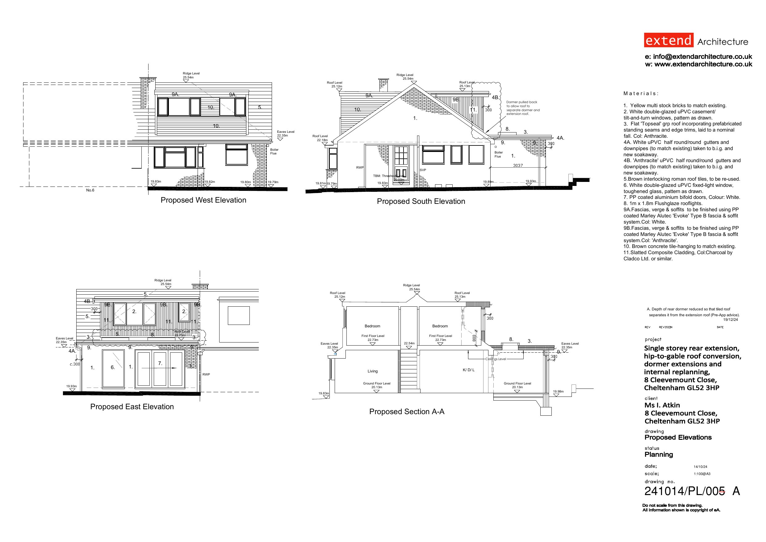
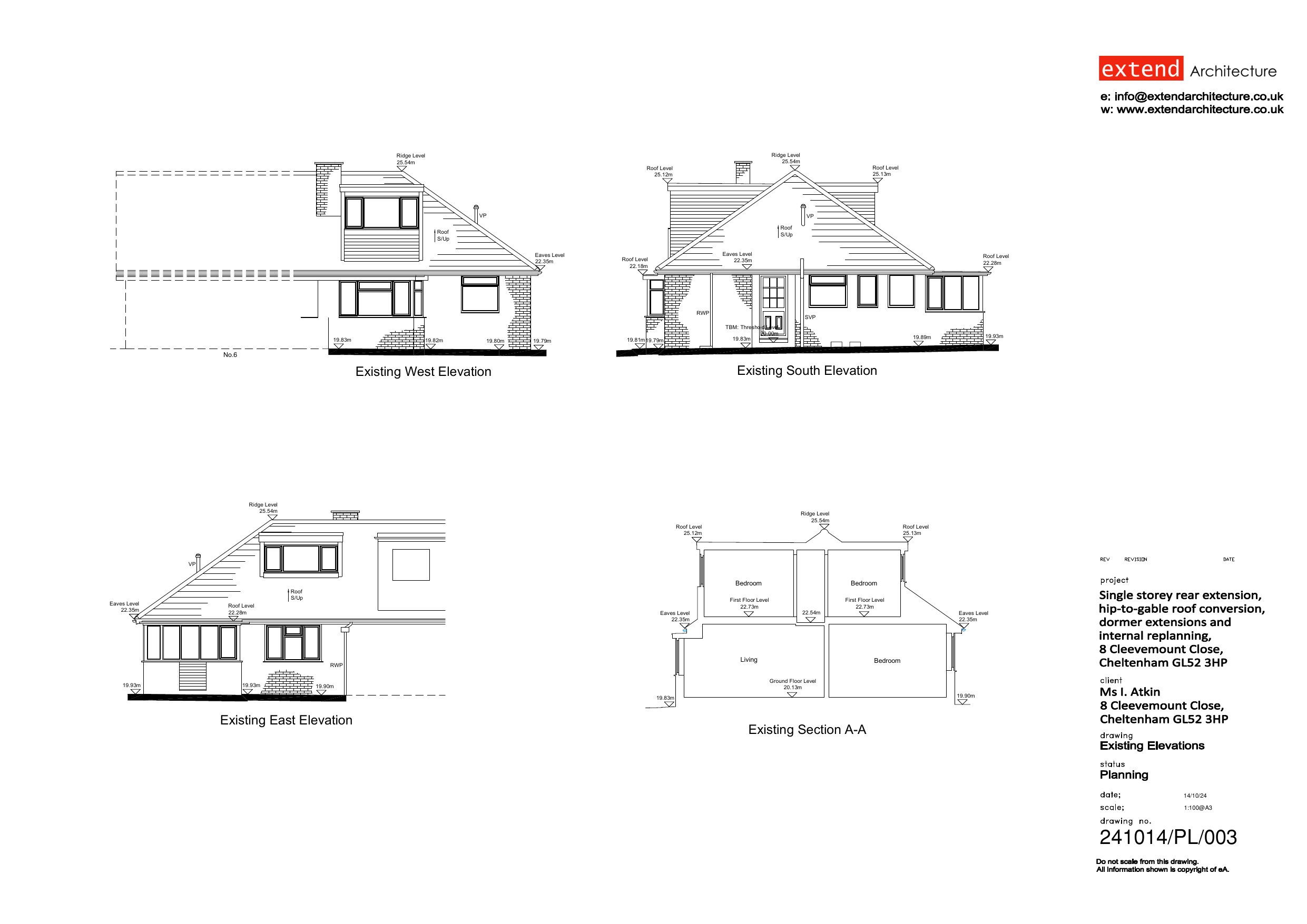
Single storey rear extension, hip-to-gable roof conversion, and rear dormer extension.

Documents

Application Form
Archived · Original link
Decision Notice
Archived · Original link
BackGround Papers
Archived · Original link
Drawing
Archived · Original link
Drawing
Archived · Original link
Report
Archived · Original link
Drawing
Archived · Original link
Approved Drawing
Archived · Original link
Approved Drawing
Archived · Original link
Photo
Archived · Original link
Superseded Documents
Archived · Original link
Superseded Documents
Archived · Original link
BackGround Papers
Archived · Original link

Have your say

Your comment matters. Councils must consider every representation that raises material planning considerations.

Write a comment