← Back to Cheltenham Borough Council

Status

Grant
Received 22 Jan 2025
New dwellings n/a

What you can do

Take Action

Make your voice heard. Authorities need to hear from people who support new homes.

Summary

Listed building consent for converting three flats into one dwelling; retain two basement flats.

Full Proposal

Conversion of 3 flats into a single dwelling with associated internal alterations and retention of two flats at basement level.

Detail pages

Documents

Application form
Application Form
Not downloaded · Council link
Bin and bike store locations
Approved Drawing
Not downloaded · Council link
Decision notice
Decision Notice
Not downloaded · Council link
Design access and heritage statement
BackGround Papers
Not downloaded · Council link
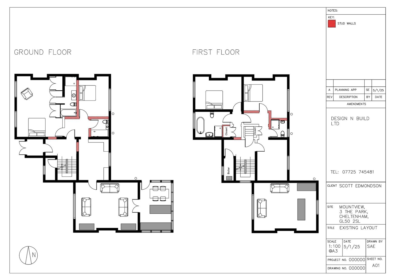
Existing ground floor and first floor
Drawing
Not downloaded · Council link
Officer report
Report
Not downloaded · Council link
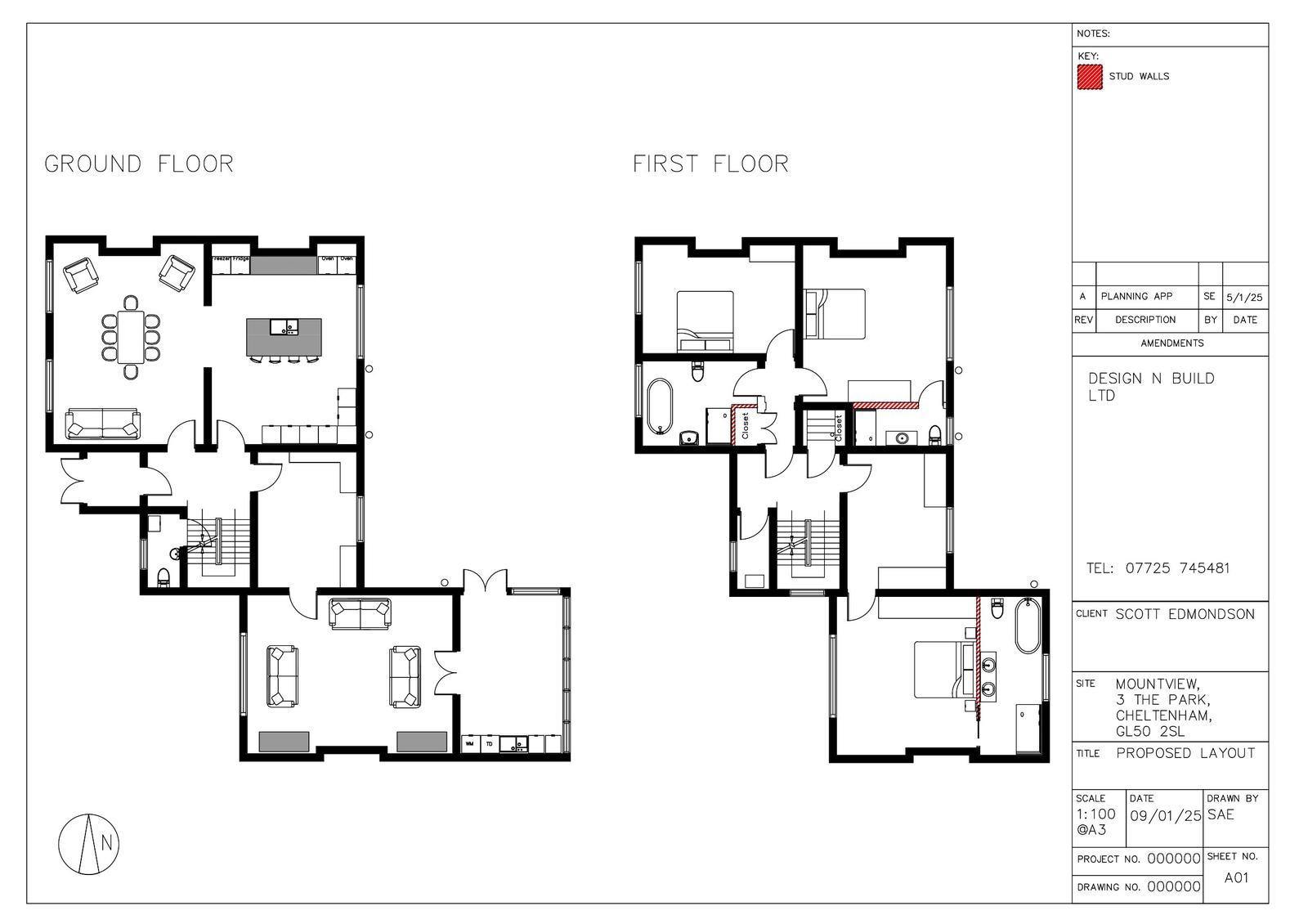
Proposed ground and first floor layout plan
Approved Drawing
Not downloaded · Council link
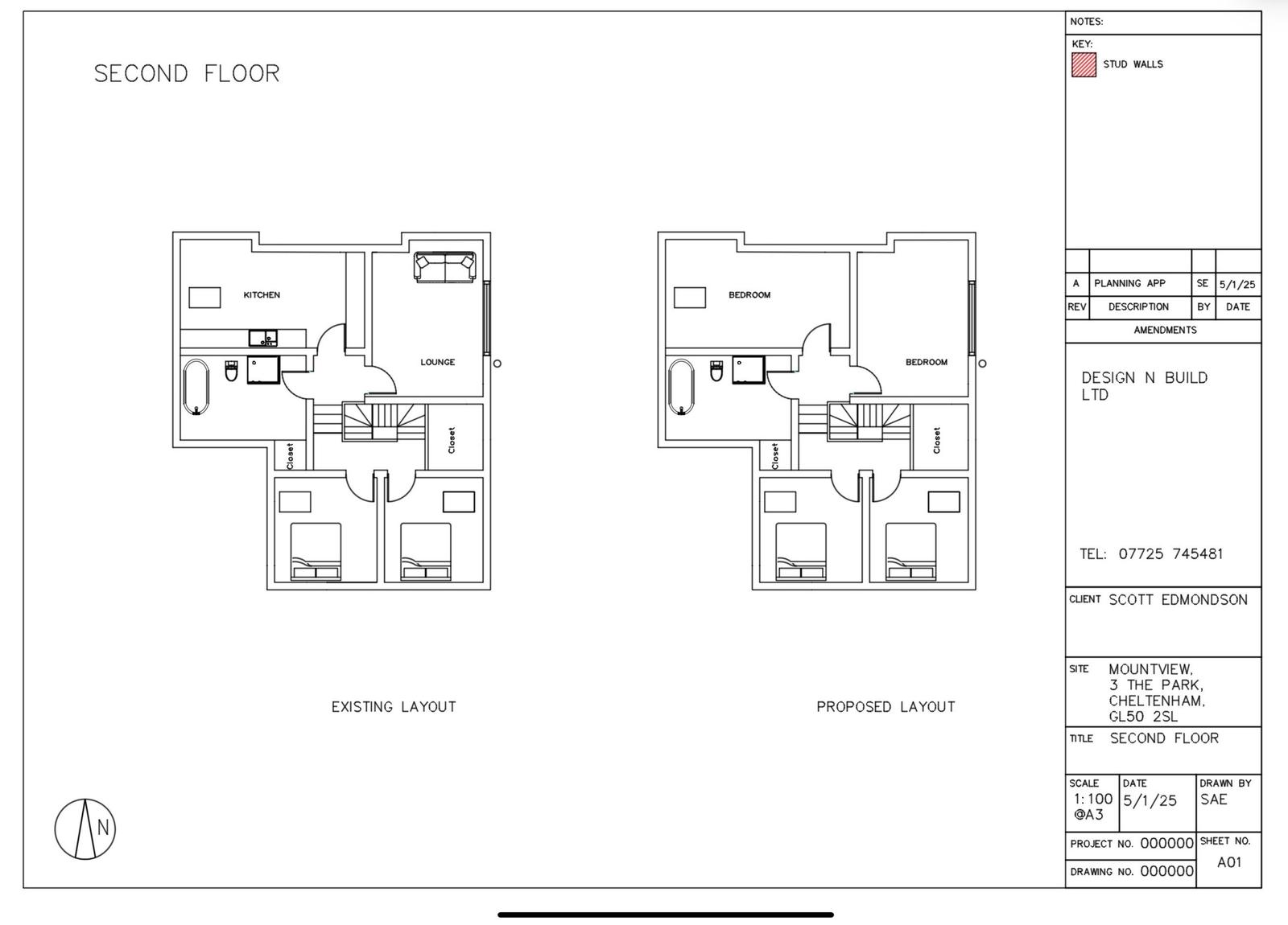
Second floor plan - existing and proposed
Approved Drawing
Not downloaded · Council link
Site location plan
Approved Drawing
Archived copy · Council link