← Cheltenham Borough Council

Status

Decision Awaiting Issue Change of use
Received
17 Jun 2025
New homes
1

Full proposal

Conversion of commercial unit into a 2 bedroom dwelling unit with internal remodeling

Documents

Additional damp report november 2025
BackGround Papers
Not yet archived · Original link
Additional photo
BackGround Papers
Not yet archived · Original link
Additional photo
BackGround Papers
Not yet archived · Original link
Additional structural calculations
BackGround Papers
Not yet archived · Original link
Application form
Application Form
Not yet archived · Original link
Cbc hra document
Other
Not yet archived · Original link
Community infrastructure levy - completed form
BackGround Papers
Not yet archived · Original link
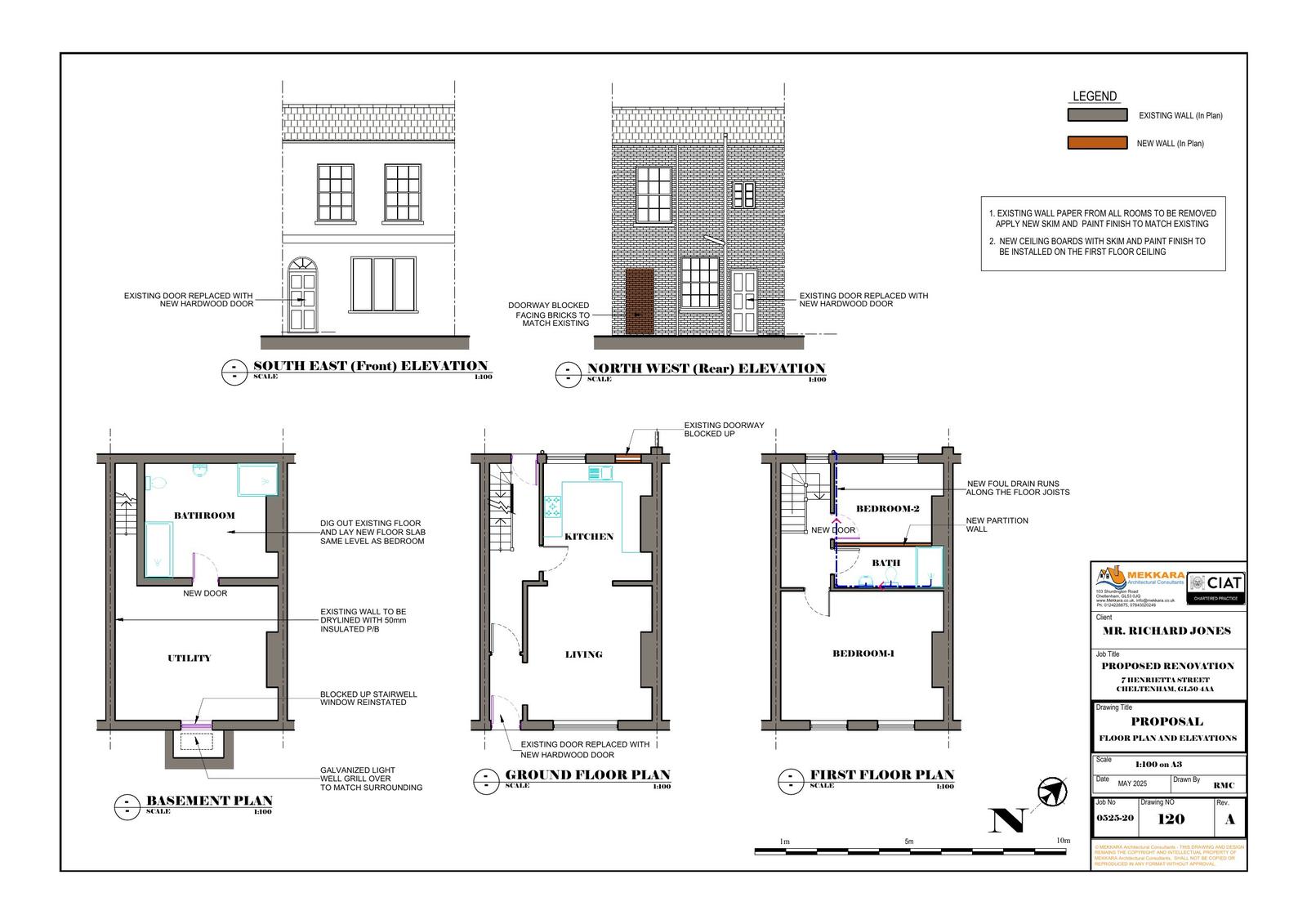
Existing elevations and floor plans
Drawing
Not yet archived · Original link
Gcc highways response
Consultee Comment
Not yet archived · Original link
Gcer report
Consultee Comment
Not yet archived · Original link
Natural england response
Consultee Comment
Not yet archived · Original link
Natural england response
Consultee Comment
Not yet archived · Original link
Planning and heritage statement
Superseded Documents
Not yet archived · Original link
Planning and heritage statement
Superseded Documents
Not yet archived · Original link
Planning and heritage statement
Superseded Documents
Not yet archived · Original link
Proposed block plan of the site
Superseded Documents
Not yet archived · Original link
Proposed elevations and floor plans
Superseded Documents
Not yet archived · Original link
Revised planning and heritage statement
Revised Documents
Not yet archived · Original link
Revised proposed block plan
Revised Drawing
Not yet archived · Original link
OS Extract
Archived · Original link
Site/block plan - existing
Drawing
Not yet archived · Original link

Have your say

Your comment matters. Councils must consider every representation that raises material planning considerations.

Write a comment